Seaside HMO scheme with planning and strong projected rental yield.
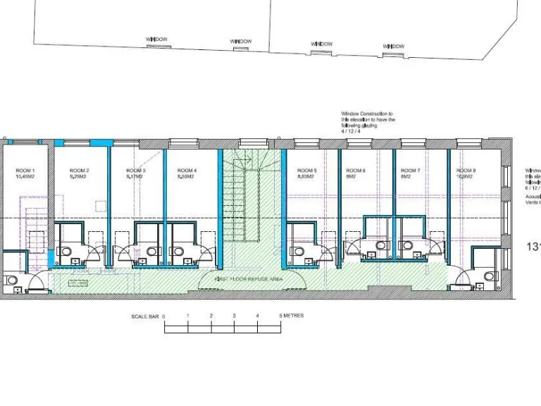
Planning granted (24/P/1501/FUL) for 8-bed, 8-bath HMO (appeal allowed)
Estimated income c.£70,000 pa (circa £730 pcm/room) — vendor guidance
Freehold Victorian mid-terrace; c.2,376 sq ft over three floors
Vacant; requires full modernisation and refurbishment throughout
Large roof void — scope for extra rooms subject to consents
Small rear yard only; narrow town-centre footprint, limited external amenity
High-crime, very deprived location — consider lettings risk and management
Auction sale: buyer’s premium payable; extended 8-week completion
Located on the High Street in Weston-super-Mare, this Victorian mid-terrace commercial freehold comes with planning granted (ref 24/P/1501/FUL) for conversion to an 8-bed, 8-bath HMO with office and communal ground-floor space. The property offers c.2,376 sq ft over three floors, high ceilings and a narrow town-centre footprint with a small rear yard. Planning includes an appeal allowed decision (10 Oct 2024) — buyers should verify full drawings in the legal pack.
This is a renovation-led investment: vendors estimate c.£70,000 pa rental income once completed (circa £730 pcm per room). There is additional upside from the large roof void where extra rooms may be possible subject to consents. The building is vacant and requires modernisation throughout; services and building safety details should be checked in the legal pack before bidding.
Material considerations: the property sits in a very deprived, high-crime town-centre area and has a small plot with limited external amenity. The sale is by online auction (19 Nov 2025) with a buyer’s premium of £1,500 + VAT payable on exchange and an extended eight-week completion period. Prospective purchasers must allow for refurbishment costs, statutory checks, and any further consents for loft conversion.
This lot suits a specialist investor or developer comfortable with an HMO conversion and town-centre refurbishment. The planning consent and seaside location create clear rental potential, but the scheme will require capital expenditure, compliance work and active asset management to realise forecast income.
8 bedroom house for sale in PLANNING | 8 BED HMO | £70K pa | WSM, BS23 — £285,000 • 8 bed • 8 bath • 2376 ft²
18 bedroom flat for sale in MIXED USE INVESTMENT | £185,840 pa - £204,840 pa INCOME, BS21 — £1,950,000 • 18 bed • 12 bath • 11912 ft²
Commercial property for sale in MIXED USE INVESTMENT | £185,840 pa - £204,840 pa INCOME, BS21 — £1,950,000 • 18 bed • 12 bath • 11912 ft²
3 bedroom flat for sale in Mixed Use With Potential | Wsm, BS23 — £285,000 • 3 bed • 3 bath • 2535 ft²
3 bedroom flat for sale in 2 X Vacant Flats | Wsm, BS23 — £147,000 • 3 bed • 2 bath • 1085 ft²
3 bedroom terraced house for sale in Boulevard, Weston-super-Mare, Somerset, BS23 — £300,000 • 3 bed • 2 bath • 2121 ft²






























































































































