BS23 1RJ - 3 bedroom flat for sale in 2 X Vacant Flats | Wsm, BS23

View on Property Piper

3 bedroom flat for sale in 2 X Vacant Flats | Wsm, BS23

Summary - 57 ORCHARD STREET WESTON-SUPER-MARE BS23 1RJ

3 bed 2 bath Flat

**Standout Features:**
- Freehold terraced property comprising one 1-bedroom garden flat and one 2-bedroom flat
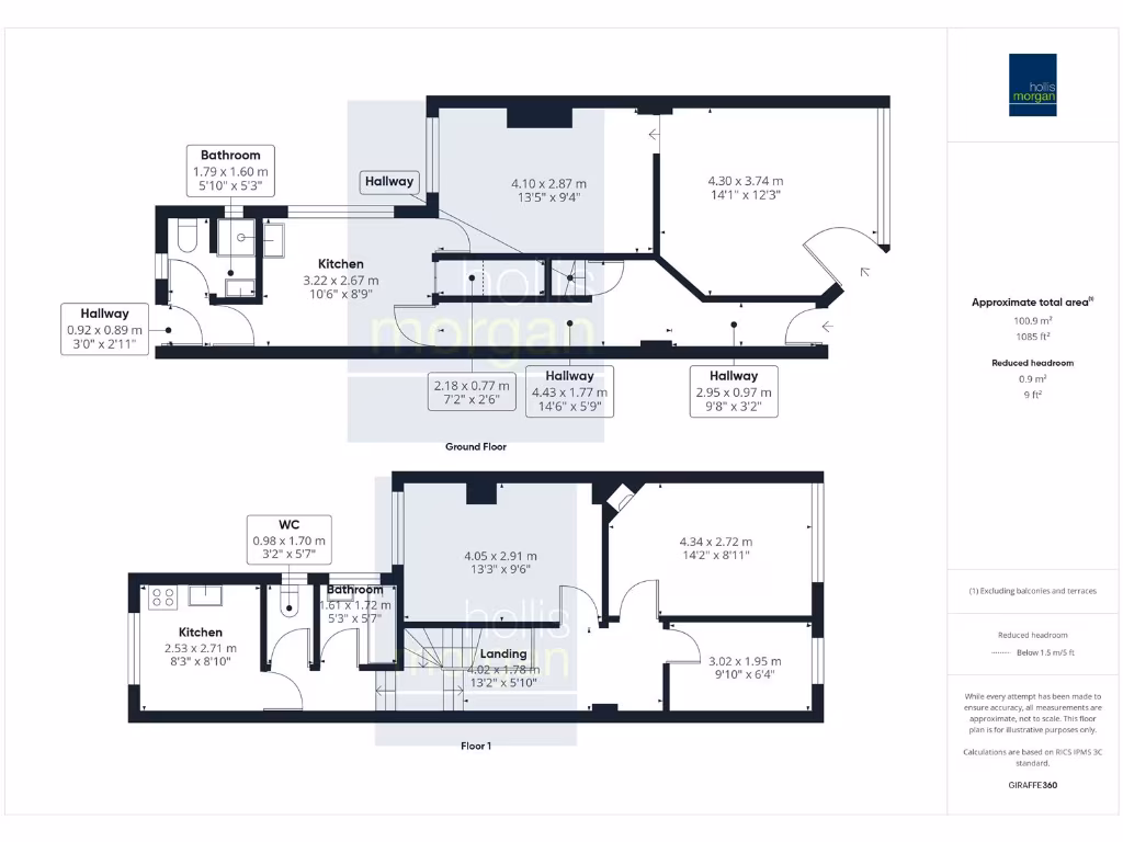
- Total living space of 1,085 sq ft
- Requires basic updating, presenting renovation potential
- Located in popular seaside town of Weston-super-Mare
- Recently vacated; dual rental potential
- Planning permission in place for converting adjacent commercial space to residential

**Potential Concerns:**
- Property needs substantial updating and renovation
- High crime rate in the area
- Electric room heaters may require updates or alternative heating solutions
- Historical 'Improvement Notice' now rescinded but could raise questions for investors

This unique investment opportunity offers two separate flats within a freehold terraced property located just moments from Weston-super-Mare’s scenic beachfront. With potential for dual rental income, the ground-floor garden flat and first-floor flat both present updated living spaces ripe for investor enhancement. While the property requires some modernization, its excellent layout accommodates future improvements that could significantly increase value.

Seize this chance to invest in a property with historical rental success in a desirable coastal town, now available with competitive auction pricing. The seaside allure of Weston-super-Mare combined with development potential makes this an attractive option for both seasoned investors and first-time buyers looking to create their ideal home or lucrative rental. Act now—properties with this level of potential don't stay on the market long!

Property Details

Brochure Descriptions

Image Descriptions

Floorplan Description

Rooms

Textual Property Features

Detected Visual Features

EPC Details

Nearby Schools

Nearest Bars And Restaurants

,,,,}

Nearest General Shops

,,}

Nearest Grocery shops

,,}

Nearest Supermarkets

,,}

Nearest Religious buildings

,,}

Nearest Medical buildings

,,,}

Nearest Airports

,}

Nearest Leisure Facilities

,,,,}

Nearest Tourist attractions

,,}

Nearest Train stations

,,,,}

Nearest Bus stations and stops

,,,,}

Nearest Hotels

,,}

Tags

Local Market Stats

AirBnB Data

Similar Properties

Meta

High Res Images

Compatible Images

Low res Images

Thumbnails

Raw Images

High Res Floorplan Images

Compatible Floorplan Images

Low res Floorplan Images

FloorplanImages Thumbnail

Raw Floorplan Images