Town-centre HMO with permitted conversion and strong income potential for hands-on investors.
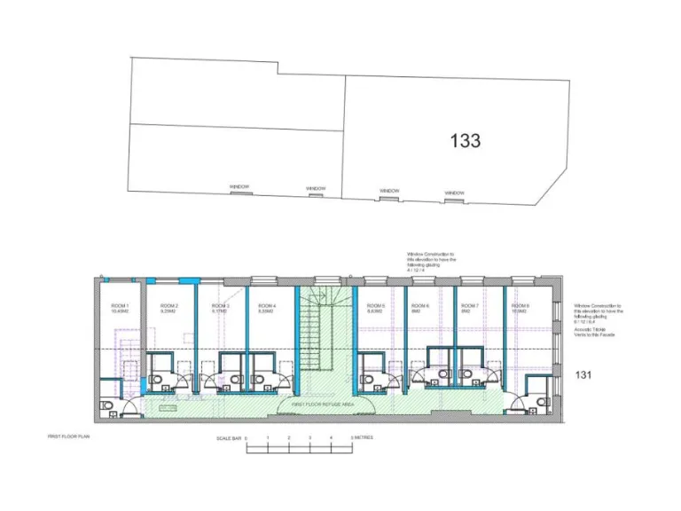
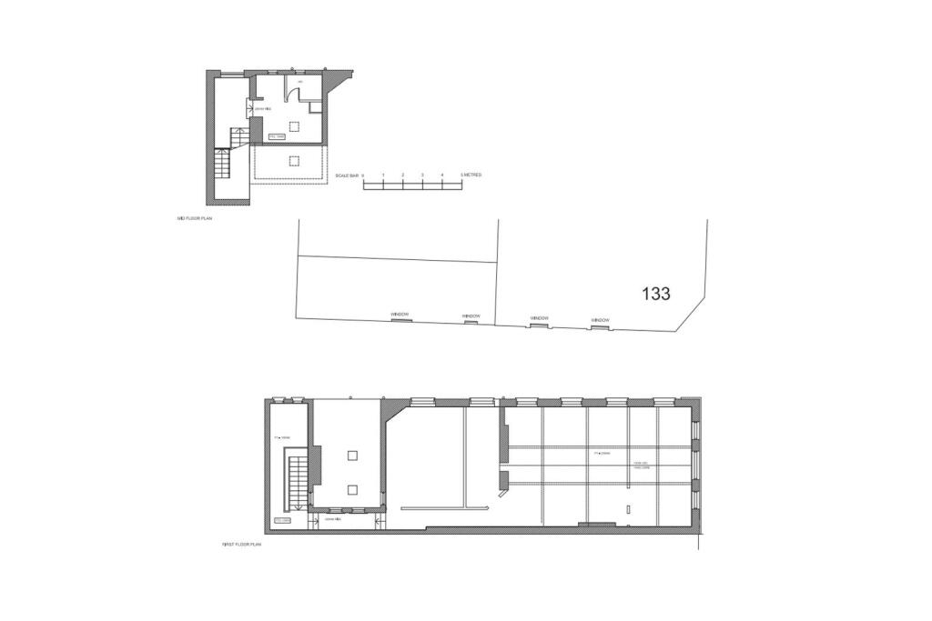
Planning granted for 8-bed, 8-bath HMO (ref 24/P/1501/FUL)
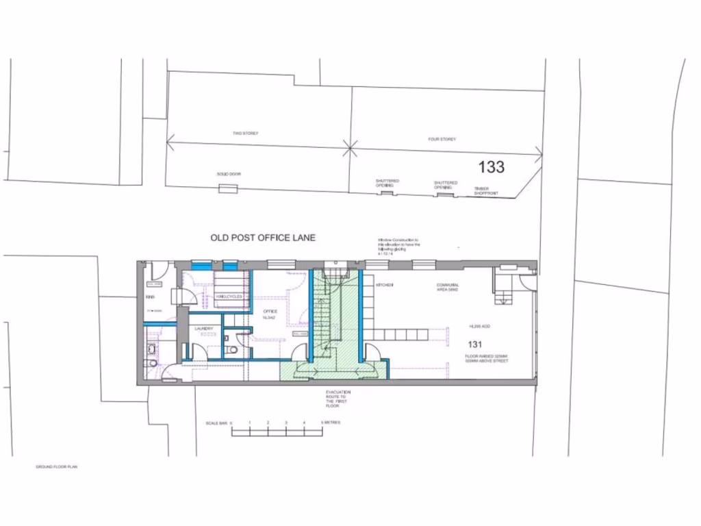
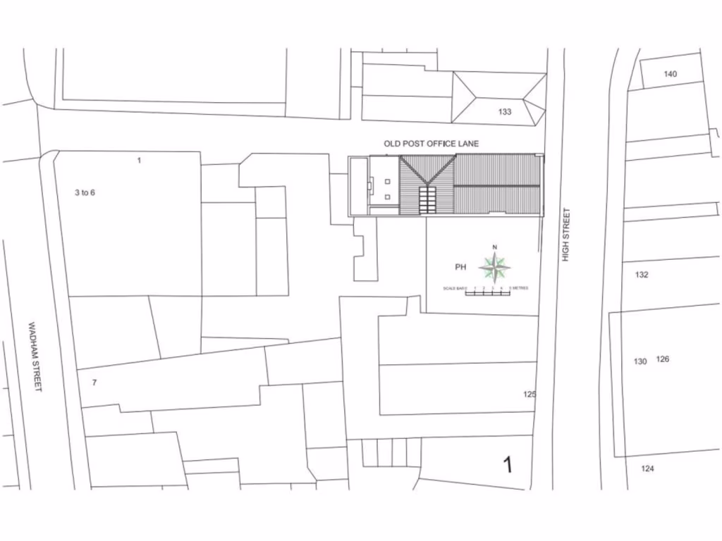
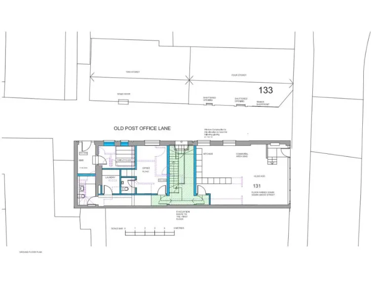
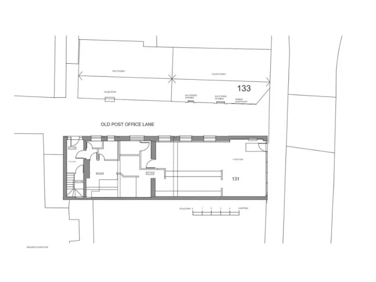
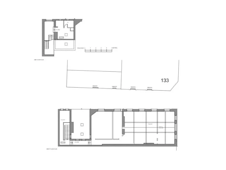
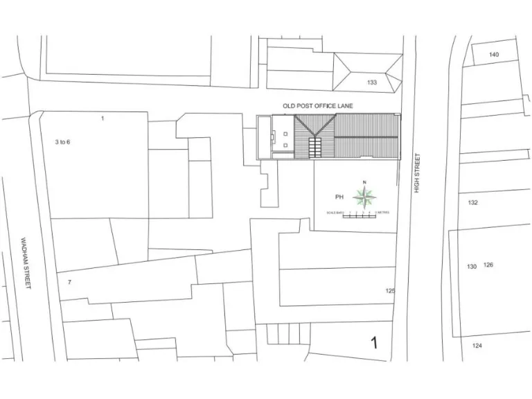
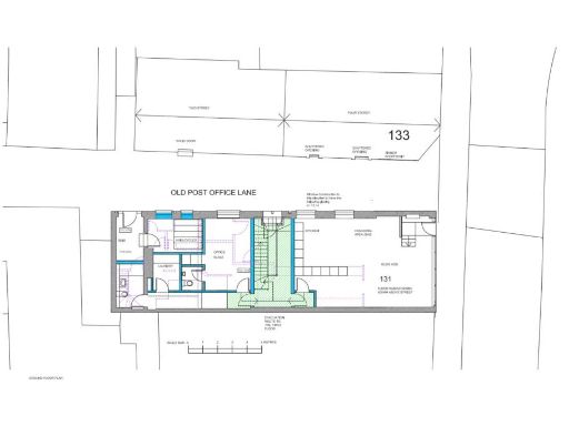
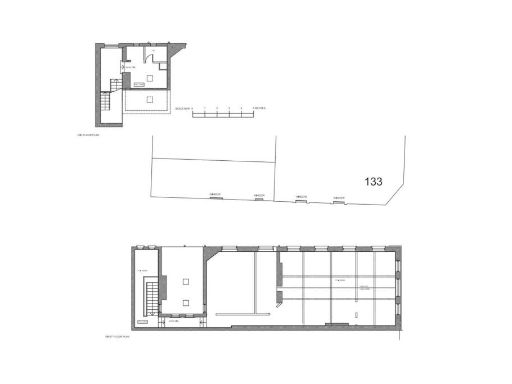
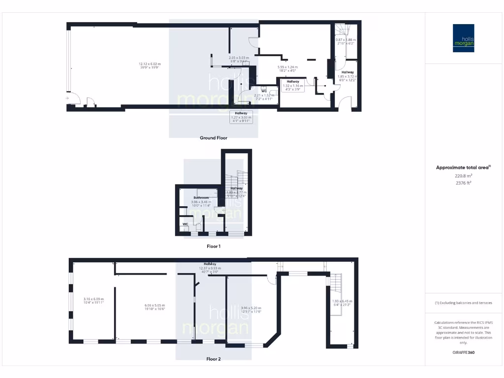
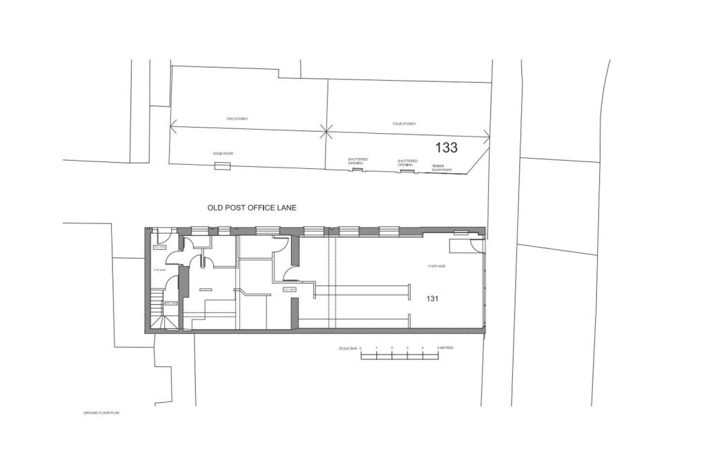
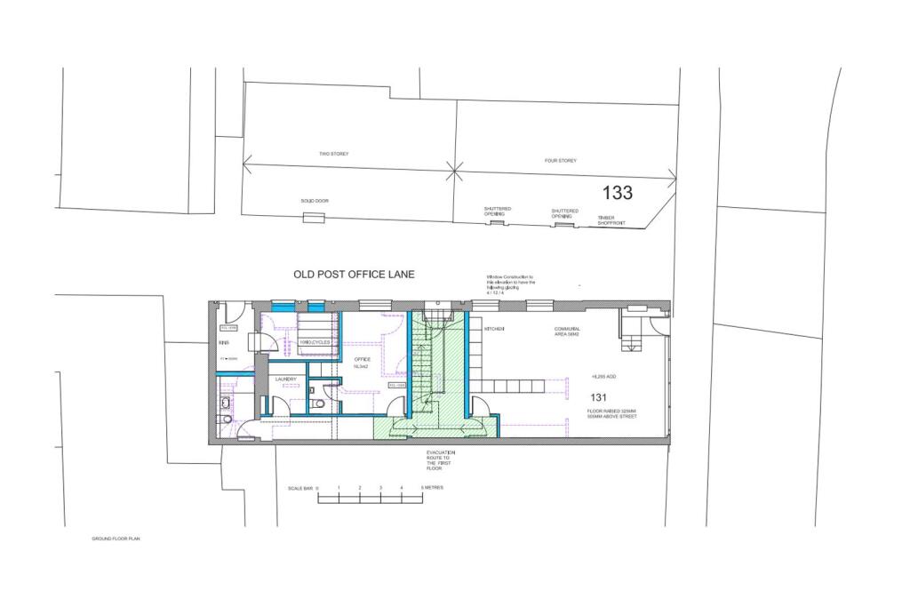
An end-of-terrace Victorian high‑street building offered as a freehold development opportunity with planning granted for an 8-bed, 8-bath HMO. The property occupies about 2,376 sq ft over two storeys with side access from Old Post Office Lane and a commercial ground‑floor frontage. Planning reference 24/P/1501/FUL was allowed on appeal, meaning a permitted HMO layout and ground-floor communal/office space can be delivered once works are completed.
This is an investor-focused refurbishment project. The listing projects circa £70,000 pa income (circa £730 pcm per room) once converted; there is also scope to add further rooms in the large roof void subject to consents. The building retains period character and high ceilings, offering rental appeal in a town‑centre, close‑to‑seafront location in Weston‑super‑Mare.
Buyers should be clear about the practical downsides: the property requires full modernisation, room sizes will be compact, and the plot provides only a small rear service area — there is no garden. The neighbourhood scores high for crime and the wider area is classified as very deprived, which will influence management, insurance and tenant risk considerations.
Sale is by online auction with a buyer’s premium payable. Legal pack is complete and completion is extended to eight weeks. This suits investors or developer-buyers prepared to budget for conversion works, compliance, and ongoing HMO management to realise the advertised rental yield.
Commercial property for sale in PLANNING | 8 BED HMO | £70K pa | WSM, BS23 — £285,000 • 8 bed • 8 bath • 2376 ft²
End of terrace house for sale in High Street and Waterloo Street, Weston-super-Mare, North Somerset, BS23 — £475,000 • 1 bed • 1 bath • 6183 ft²
3 bedroom flat for sale in Mixed Use With Potential | Wsm, BS23 — £285,000 • 3 bed • 3 bath • 2535 ft²
Commercial property for sale in MIXED USE INVESTMENT | £185,840 pa - £204,840 pa INCOME, BS21 — £1,800,000 • 18 bed • 12 bath • 11912 ft²
6 bedroom semi-detached house for sale in 6 Bed | 6 Bath | Hmo | £40K | Wsm, BS23 — £295,000 • 6 bed • 6 bath • 1417 ft²
18 bedroom flat for sale in MIXED USE INVESTMENT | £185,840 pa - £204,840 pa INCOME, BS21 — £1,800,000 • 18 bed • 12 bath • 11912 ft²










































































































































































