SO32 2SX - 5 bed spacious five bedroom detached in Meon Valley, SO32 2…

View on Property Piper

5 bedroom detached house for sale in Botley, Southampton, SO32

Summary - 19, Oakland Road,Botley,SOUTHAMPTON,SO32 2SX SO32 2SX

5 bed 3 bath Detached

Chain-free modern family home with large garden and double garage.
Five bedrooms and three bathrooms, generous family proportions
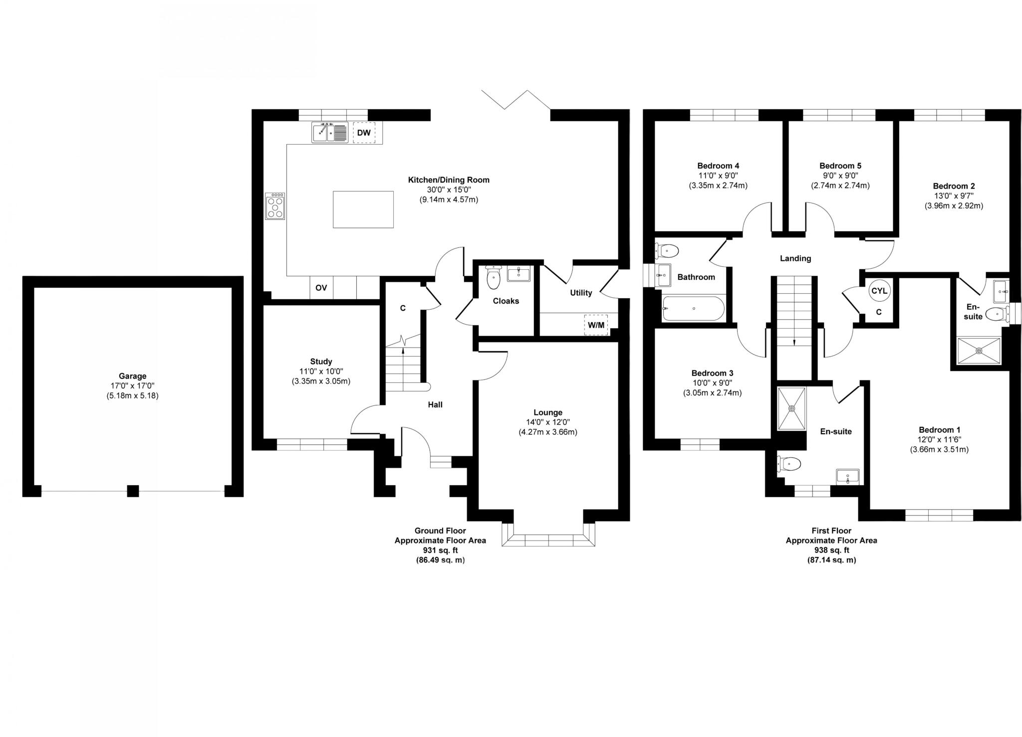
A substantial five-bedroom detached house on a very large plot, this modern family home combines generous living space with contemporary fittings. The ground floor opens to a bright open-plan kitchen/dining/family area with quartz worktops, Neff appliances and bi-folding doors to a paved seating area — ideal for indoor-outdoor family life. A large sitting room, separate study and utility provide practical everyday spaces, while three upstairs bathrooms ease morning routines for a busy household.

Practical strengths include a double garage, additional off-road parking, gas central heating, UPVC double glazing and solar panels that support an Energy Rating B. The property is offered freehold and chain-free, helping to simplify a swift move. Local schools rated Good and the town-fringe location suit family life with fast broadband and excellent mobile signal.

Buyers should note council tax band F (expensive) and that the loft has not been inspected. Floorplan measurements are a guide only and should be checked for exact furniture or carpet ordering. Otherwise the house appears well cared for and ready to occupy, with scope to personalise finishes if desired.

This home will suit a family seeking space, modern convenience and strong local schools, or buyers wanting a roomy property with potential to adapt internal layouts. The large plot and elevated views also offer landscaping or extension potential subject to consents.

Property Details

Image Descriptions

Floorplan Description

Rooms

Textual Property Features

Target Audience

AI Tags

Detected Visual Features

Nearby Schools

Nearest Bars And Restaurants

,,,,}

Nearest General Shops

,,}

Nearest Grocery shops

,,}

Nearest Supermarkets

,,}

Nearest Religious buildings

,,}

Nearest Medical buildings

,,,}

Nearest Airports

}

Nearest Leisure Facilities

,,,,}

Nearest Tourist attractions

,,}

Nearest Train stations

,,,,}

Nearest Bus stations and stops

,,,,}

Nearest Hotels

,,}

Tags

Local Market Stats

Similar Properties

Meta

High Res Images

Compatible Images

Low res Images

Thumbnails

Raw Images

High Res Floorplan Images

Compatible Floorplan Images

Low res Floorplan Images

FloorplanImages Thumbnail

Raw Floorplan Images