SO32 2TG - 5 bed modern five bedroom home in Kingsman Drive, SO32 2TG

View on Property Piper

5 bedroom detached house for sale in Kingsman Drive, Boorley Park, SO32

Summary - 177, Kingsman Drive, Botley SO32 2TG

5 bed 3 bath Detached

Contemporary family home with outdoor kitchen, solar panels and double garage.
Five double bedrooms, two with en-suites and built-in wardrobes
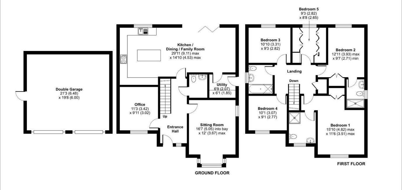
This modern five-bedroom detached house, built in 2020, offers a bright, flexible layout designed for family life. The ground floor centres on a large open-plan kitchen/living/dining area with bi-folding doors to a sunny rear garden, plus a separate living room and a home office. Two bedrooms have en-suites and built-in wardrobes, supporting multi-generation or guest use.

Outdoor space is low-maintenance and built for entertaining: an outdoor kitchen, paved entertaining patio and an AstroTurf lawn sit alongside a detached double garage and driveway parking. Practical, energy-saving features include solar panels and an EV charger, helping running costs and sustainability. EPC A (95).

The property sits in Boorley Park with a leafy front outlook and easy access to nearby villages (Botley, Bishops Waltham, Hedge End). Good local schools, leisure facilities and motorway links make the location family-friendly. Broadband is fast and crime is very low.

Notable drawbacks: the overall plot is compact and the home sits in an area classified as an ageing rural neighbourhood — local amenities are focused in nearby settlements rather than on-site. Council tax is described as expensive. These points are worth factoring into long-term running and lifestyle plans.

Property Details

Image Descriptions

Floorplan Description

Rooms

Textual Property Features

Target Audience

AI Tags

Detected Visual Features

EPC Details

Nearby Schools

Nearest Bars And Restaurants

,,,,}

Nearest General Shops

,,}

Nearest Grocery shops

,,}

Nearest Supermarkets

,,}

Nearest Religious buildings

,,}

Nearest Medical buildings

,,,}

Nearest Airports

}

Nearest Leisure Facilities

,,,,}

Nearest Tourist attractions

,,}

Nearest Train stations

,,,,}

Nearest Bus stations and stops

,,,,}

Nearest Hotels

,,}

Tags

Local Market Stats

Similar Properties

Meta

High Res Images

Compatible Images

Low res Images

Thumbnails

Raw Images

High Res Floorplan Images

Compatible Floorplan Images

Low res Floorplan Images

FloorplanImages Thumbnail

Raw Floorplan Images