Move-in ready home with a long private garden and loft storage.
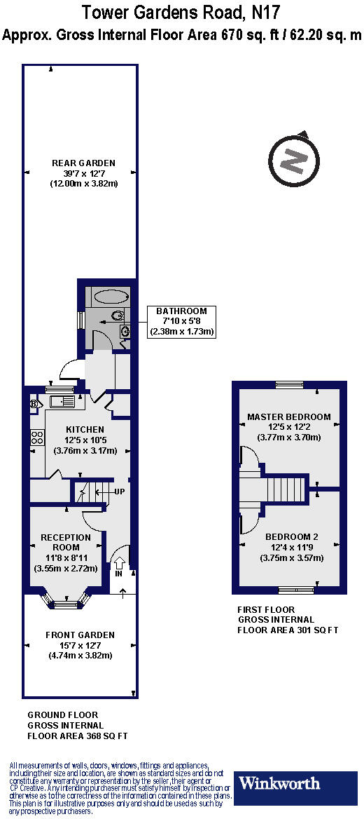
- Chain free freehold terrace with 670 sq ft internal space
- Two double bedrooms plus loft storage
- Modern kitchen-diner opening to private 39ft rear garden
- Contemporary bathroom and separate utility area
- Edwardian period features, bay windows and character details
- Solid brick walls with no assumed insulation — retrofit likely
- Local area: very deprived with higher-than-average crime rates
- Average-sized plot and mid-terrace position, limited front garden
This chain-free, freehold Edwardian terrace offers a practical and well-presented home for a first-time buyer. The layout is traditional and efficient, with a front reception room and a modern kitchen-diner that opens directly onto a private 39ft rear garden — a rare outdoor space for this property size.
Upstairs are two double bedrooms that run the full width of the house and a loft for additional storage. The interior has been maintained and includes a contemporary bathroom and a useful utility area, making the property move-in ready for many buyers.
Be clear about the trade-offs: the mid-terrace was built before 1900 with solid brick walls and no assumed insulation, which could mean higher running costs and potential retrofit work. The local area is classed as very deprived and records higher crime rates; prospective buyers should factor local context into purchasing and security decisions.
Location strengths include proximity to Bruce Castle Park and Lordship Recreation Ground, fast broadband, excellent mobile signal and several well-rated primary and secondary schools nearby. For buyers willing to invest in insulation or cosmetic updates, this terrace offers good long-term potential in an improving neighbourhood.
2 bedroom terraced house for sale in Poynton Road, N17 — £550,000 • 2 bed • 1 bath • 797 ft²
2 bedroom terraced house for sale in Rosebery Avenue, London, N17 — £575,000 • 2 bed • 1 bath • 810 ft²
2 bedroom end of terrace house for sale in Siward Road, London, N17 — £500,000 • 2 bed • 1 bath • 700 ft²
2 bedroom terraced house for sale in Reform Row, London, N17 — £475,000 • 2 bed • 1 bath • 658 ft²
2 bedroom end of terrace house for sale in Chesthunte Road, London, N17 — £435,000 • 2 bed • 1 bath • 576 ft²
3 bedroom house for sale in Greyhound Road, London, N17 — £625,000 • 3 bed • 1 bath • 1019 ft²






















































