N17 6XR - 3 bed victorian terrace with garden in Greyhound Road, N17…

View on Property Piper

3 bedroom house for sale in Greyhound Road, London, N17

Summary - 83 GREYHOUND ROAD LONDON N17 6XR

3 bed 1 bath House

Spacious three-bed Victorian home with 30ft garden, close to Downhills Park and Seven Sisters.
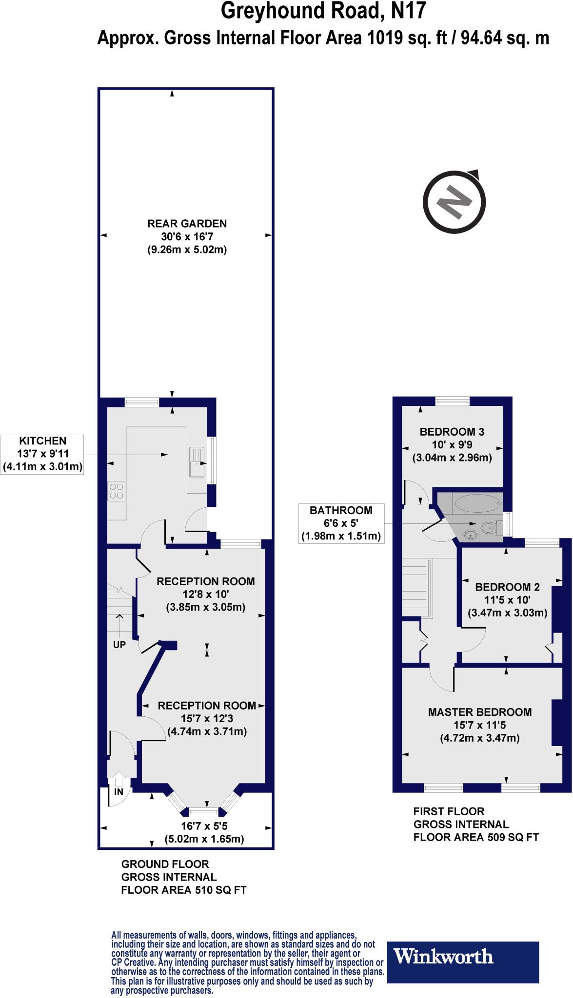
- Over 1,019 sq ft internal space across multiple levels
- Bright through lounge and generous fitted kitchen
- Private 30ft rear garden, pleasant outdoor space
- Three well-proportioned bedrooms; good natural light
- Modern three-piece family bathroom; single bathroom only
- Freehold Victorian terrace with original period features
- Small plot; modest external footprint compared to modern builds
- Area classified as deprived; local crime level average
This classic Victorian terrace in Tottenham offers more than 1,000 sq ft of comfortable, well-laid-out living space across multiple levels. The ground floor’s bright through lounge and generous fitted kitchen flow onto a private 30ft rear garden — a rare outdoor asset for this part of N17. Three double/large bedrooms and a modern three-piece bathroom make the house well suited to growing families or buyers seeking long-term space in North London.

Positioned close to Downhills Park, Bruce Castle Park and several highly regarded schools, the location supports family life and easy green-space access. Seven Sisters station (Victoria line) is about 0.9 miles away, giving straightforward links into central London and quick commuting options. Local shops, cafés and community amenities are within walking distance.

The property retains period features such as a bay window and Edwardian garden brickwork, offering scope to enhance character through sympathetic refurbishment. The house is freehold and appears well maintained, though the plot is modest and there is one family bathroom only — factors buyers should weigh when comparing nearby homes. The surrounding area is undergoing regeneration, presenting potential for value growth alongside changing local amenities.

Practical considerations: the neighbourhood is inner-city and classified as deprived, with average local crime levels. Broadband and mobile signal are strong. Overall, this is a roomy, characterful Victorian family home in a convenient North London location, best suited to buyers wanting space, garden access and proximity to schools and transport, with some potential to update and personalise.

Property Details

Image Descriptions

Floorplan Description

Rooms

Textual Property Features

Target Audience

AI Tags

Detected Visual Features

Nearby Schools

Nearest Bars And Restaurants

,,,,}

Nearest General Shops

,,}

Nearest Grocery shops

,,}

Nearest Supermarkets

,,}

Nearest Religious buildings

,,}

Nearest Medical buildings

,,,}

Nearest Airports

,}

Nearest Leisure Facilities

,,,,}

Nearest Tourist attractions

,,}

Nearest Train stations

,,,,}

Nearest Bus stations and stops

,,,,}

Nearest Hotels

,,}

Tags

Local Market Stats

AirBnB Data

Similar Properties

Meta

High Res Images

Compatible Images

Low res Images

Thumbnails

Raw Images

High Res Floorplan Images

Compatible Floorplan Images

Low res Floorplan Images

FloorplanImages Thumbnail

Raw Floorplan Images