Contemporary family living with parking and energy-efficient finishes.
Three generous bedrooms including top-floor master with ensuite
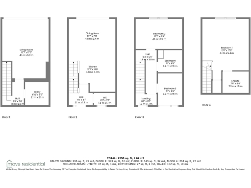
This bright three-bedroom terraced townhouse in sought-after Woolton offers contemporary family living across multiple levels. The open-plan kitchen-diner with bi-fold doors creates a sociable hub that flows directly onto a private deck, while a separate reception and lower-level lounge provide flexible living space for family life.
The top-floor master suite includes a useful ensuite, complemented by two further well-proportioned bedrooms and a deluxe main bathroom. Built in modern brick with double glazing and an EPC Band B rating, the home is energy efficient and presented to a high standard, helping to keep running costs down.
Practical benefits include secure allocated off-street parking, a handy utility room and a convenient ground-floor WC. The property is offered chain-free, ready for a new family to move in and personalise.
Buyers should note this is a leasehold property and prospective purchasers should check lease terms and any service charges. The rear outdoor area is decked but modest in size, and the multi-storey layout may be less suitable for anyone with limited mobility. The local area shows higher deprivation indicators and average crime levels, factors to consider for long-term resale and schooling choices.
3 bedroom semi-detached house for sale in North Manor Way, Woolton, Liverpool, L25 — £275,000 • 3 bed • 1 bath • 727 ft²
3 bedroom end of terrace house for sale in Quarry Street, Liverpool, Merseyside, L25 — £290,000 • 3 bed • 1 bath • 809 ft²
3 bedroom detached house for sale in Church Road, Woolton, Liverpool, L25 — £675,000 • 3 bed • 1 bath • 1590 ft²
3 bedroom town house for sale in Church Road, Woolton, Liverpool, Merseyside, L25 — £499,999 • 3 bed • 2 bath • 1404 ft²
4 bedroom detached house for sale in Mount Park, Woolton, Liverpool, L25 — £690,000 • 4 bed • 3 bath • 1806 ft²
3 bedroom semi-detached house for sale in Manor Crescent, Woolton, Liverpool, L25 — £385,000 • 3 bed • 1 bath • 992 ft²














































































