Spacious traditional home with private garden and parking for family living.
Detached three-bedroom Tudor-style house on a large plot
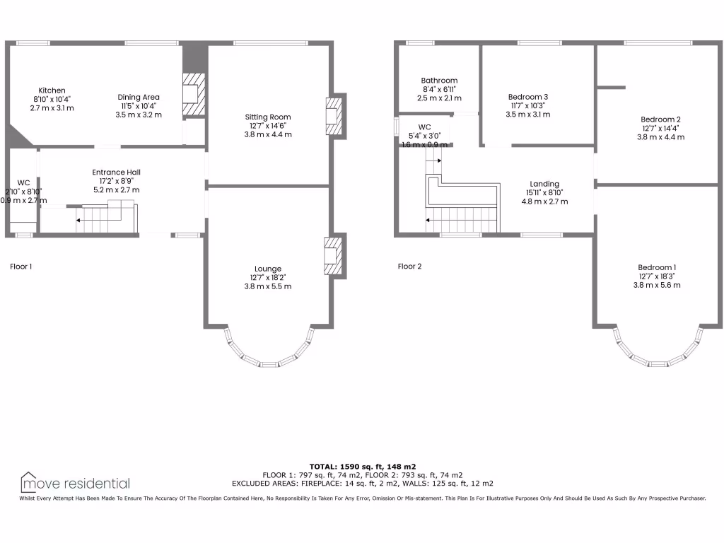
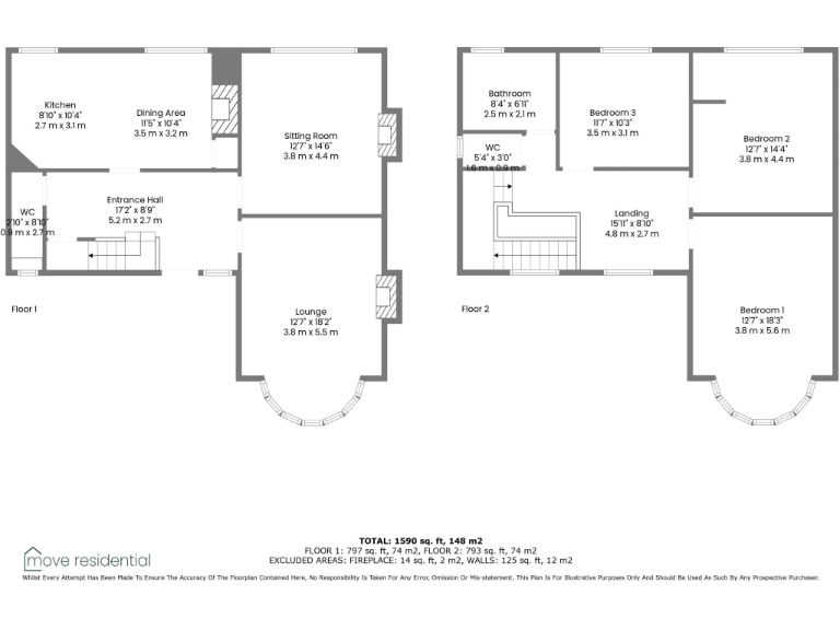
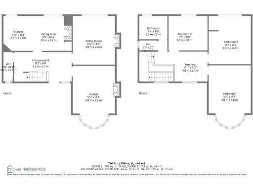
Set on Church Road in sought-after Woolton, this detached three-bedroom home offers generous, characterful living spaces across a substantial footprint. High ceilings, bay windows and two reception rooms create a comfortable, traditional family layout with strong curb appeal and a gated driveway for multiple vehicles.
The large kitchen-diner provides a social hub overlooking the private rear garden but retains dated cabinetry and a retro feel — an ideal area for sympathetic updating to suit modern family life. There is a ground-floor WC and a single three-piece family bathroom on the first floor, so buyers should note limited bathroom provision for a three-bedroom home.
Outside, the level, well-maintained rear garden and patio are private and family-friendly, and the large plot offers potential for further landscaping or extension (subject to planning). Practical positives include freehold tenure, no onward chain, fast broadband and low local crime.
Important considerations: the kitchen and some internal fittings will likely require modernisation to unlock full value, and the property sits in a higher council tax band. Overall this is a roomy, traditional detached house with strong family appeal and clear scope for improvement.
5 bedroom detached house for sale in Blackwood Avenue, Woolton, Liverpool, L25 — £775,000 • 5 bed • 1 bath
3 bedroom detached house for sale in Vale Road, Woolton, Liverpool, L25 — £285,000 • 3 bed • 1 bath • 1010 ft²
4 bedroom detached house for sale in Meadow Oak Drive, Woolton, Liverpool., L25 — £700,000 • 4 bed • 2 bath • 1667 ft²
3 bedroom detached house for sale in Cuckoo Close, Woolton, Liverpool, L25 — £415,000 • 3 bed • 1 bath • 1338 ft²
3 bedroom semi-detached house for sale in Rockhill Road, Woolton, Liverpool., L25 — £275,000 • 3 bed • 1 bath • 957 ft²
3 bedroom semi-detached house for sale in Manor Crescent, Woolton, Liverpool, L25 — £385,000 • 3 bed • 1 bath • 992 ft²


















































































