Corner-plot family home with extension potential near excellent schools.
Three bright bedrooms with good natural light
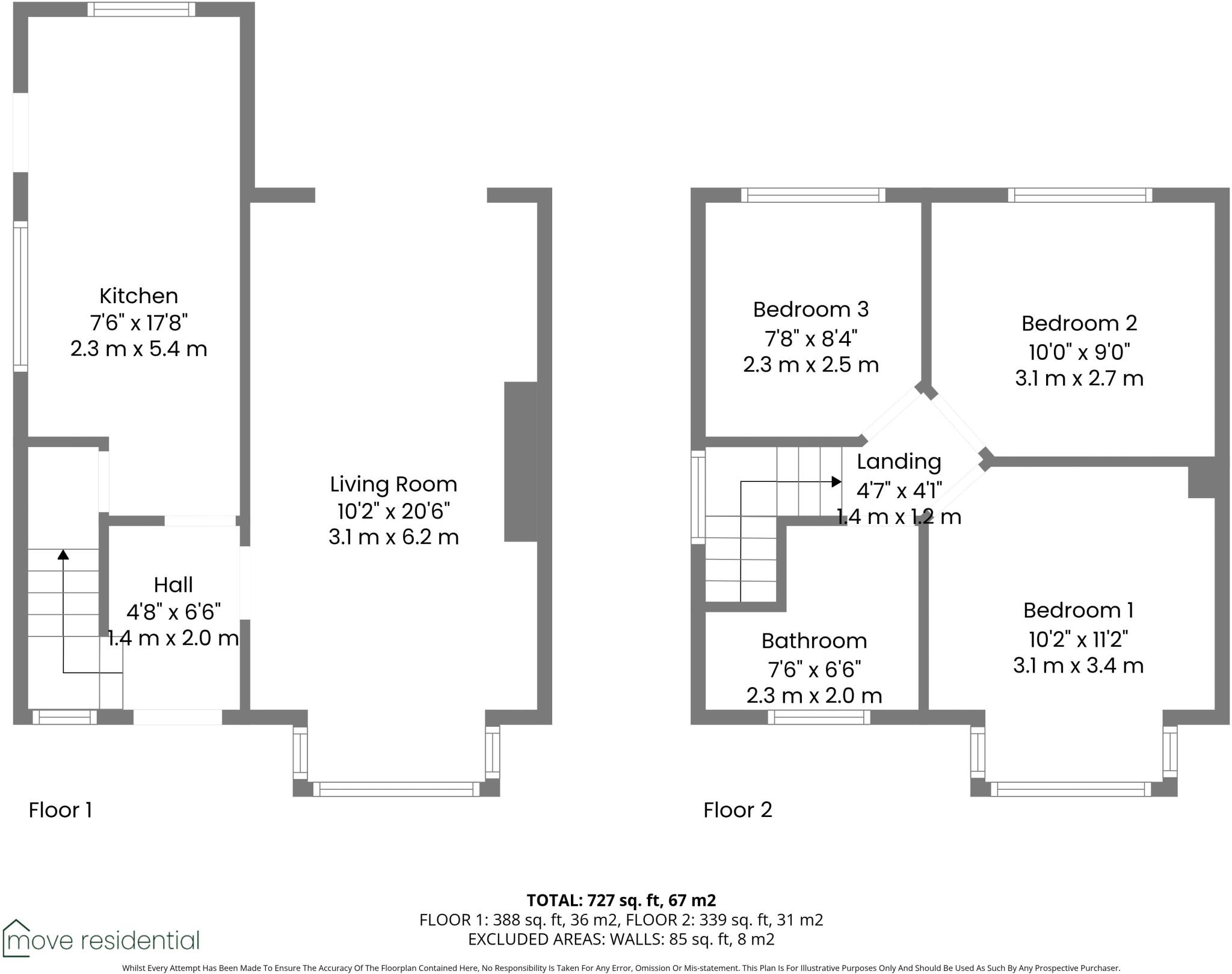
Set on a sizeable corner plot in desirable Woolton, this three-bedroom semi delivers ready-to-live-in accommodation with clear scope to add value. The extended kitchen and generous lounge/dining room create practical family living, while the rear garden and detached garage provide outdoor space and storage. The home sits in an affluent, low-crime neighbourhood close to well-rated primary and secondary schools.
The property is presented in good decorative order throughout and benefits from driveway parking, fast broadband and excellent mobile signal — practical assets for modern family life. At 727 sq ft the overall footprint is modest, so rooms feel efficient rather than expansive; this is important for buyers to note when comparing space and storage needs.
A material advantage is existing planning permission for a single-storey side extension and a single/part two-storey rear extension, offering a straightforward route to enlarge living space and increase value. There is one contemporary family bathroom only, so larger families may want to consider how that will work day-to-day or plan for an additional bathroom when extending.
Overall this freehold home will suit growing families seeking a well-located, low-maintenance base with development potential, or investors looking for a stable, desirable letting address. Prospective viewers should note the modest internal size and single bathroom when assessing suitability.
3 bedroom semi-detached house for sale in Rockhill Road, Woolton, Liverpool., L25 — £275,000 • 3 bed • 1 bath • 957 ft²
3 bedroom semi-detached house for sale in Kilmory Avenue, Liverpool, L25 — £250,000 • 3 bed • 1 bath • 786 ft²
3 bedroom semi-detached house for sale in Millcroft Road, Liverpool, Merseyside, L25 — £260,000 • 3 bed • 2 bath • 1105 ft²
3 bedroom semi-detached house for sale in Grassington Crescent, Woolton, Liverpool, L25 — £235,000 • 3 bed • 1 bath • 832 ft²
3 bedroom semi-detached house for sale in Manor Crescent, Woolton, Liverpool, L25 — £385,000 • 3 bed • 1 bath • 992 ft²
4 bedroom semi-detached house for sale in Budworth Drive, Woolton, Liverpool, L25 — £300,000 • 4 bed • 2 bath • 1192 ft²


































































