**Standout Features:**
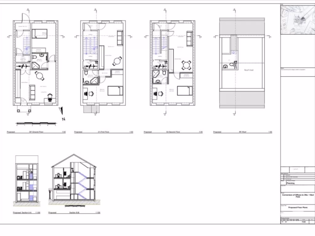
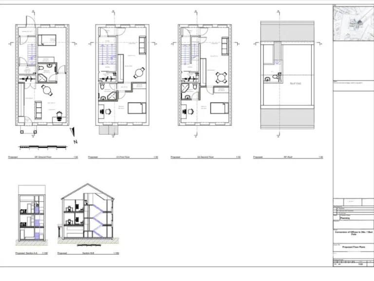
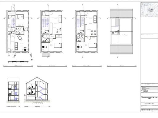
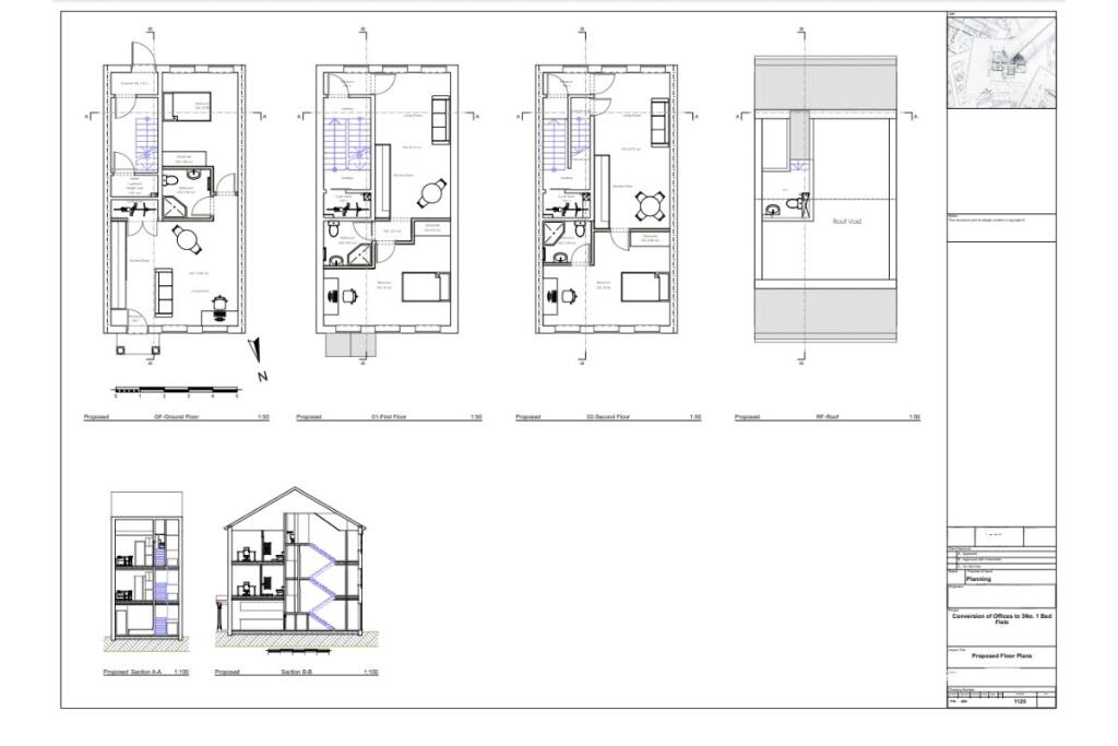
- Vacant possession with planning permission granted for conversion into three apartments
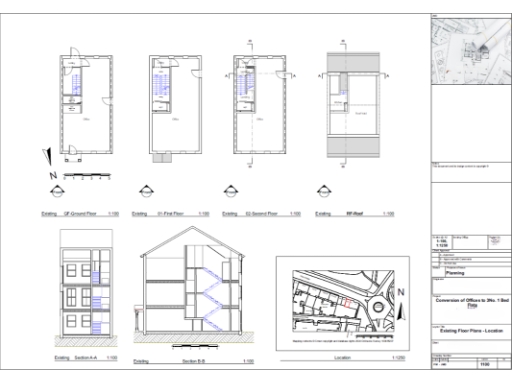
- Three-story modern townhouse with a stylish brick facade
- Prime location near Aldershot Town Centre and mainline station
- Excellent road links via A331
- Strong rental potential ideal for investors or first-time buyers
This remarkable opportunity invites you to unleash the potential of a three-story townhouse in a vibrant urban setting, just a stone’s throw from Aldershot Town Centre. With planning permission already secured for the conversion into three separate apartments, this property is a blank canvas ready for your vision—imagine transforming it to maximize space and value.
The building boasts a modern exterior and is conveniently located within a short walk to the mainline station, making it a great choice for commuters. Families will appreciate nearby schools rated 'Good' to 'Outstanding,' enhancing its appeal to potential renters.
While the property currently requires some maintenance—especially on the exterior—its advantageous position and redevelopment possibilities make it a thrilling investment that won’t be available for long. Don’t miss your chance to capitalize on this unique offering and create a future of comfort and security in a thriving community.
Studio apartment for sale in High Street, Aldershot, Hampshire, GU11 — £280,000 • 1 bed • 1 bath
Land for sale in 3 bedroom Semi-Detached Land in Aldershot, GU11 — £325,000 • 3 bed • 2 bath
4 bedroom terraced house for sale in Grosvenor Road, Aldershot, Hampshire, GU11 — £350,000 • 4 bed • 3 bath • 1202 ft²
3 bedroom terraced house for sale in High Street, Aldershot, Hampshire, GU12 — £325,000 • 3 bed • 1 bath • 940 ft²
2 bedroom apartment for sale in Ascot Court, Aldershot, Hampshire, GU11 — £145,000 • 2 bed • 1 bath • 523 ft²
Shop for sale in Fountain Hair Salon, 4 Union Street, Aldershot, Hampshire, GU11 — £895,000 • 6 bed • 6 bath • 2949 ft²














