Freehold two-unit buy-to-let with loft potential and immediate rental income..
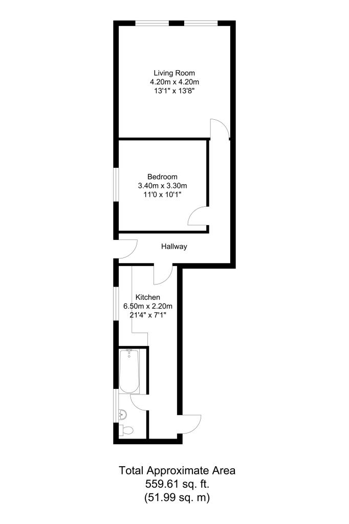
Freehold: two maisonettes (1-bed ground, 2-bed first) on one title
Current combined rent £1,785 per month, immediate income
Built/converted 1988; both units need modernisation
Potential loft conversion on first floor, subject to planning
Town-centre location; short walk to Aldershot station and amenities
Very large plot offering development or extension potential
Parking limited: one full space plus smaller space for ground floor
Area classified as very deprived; constrained neighbourhood risk
A rare freehold investment in Aldershot town centre, offered as two self-contained maisonettes: a ground-floor one-bedroom and a first-floor two-bedroom. The buildings date from the 1988 conversion and sit on a very large plot, providing scope for external improvements or possible extension subject to planning.
Current combined rent is £1,785 pcm, giving an immediate income stream for a hands-on investor. Both units are double-glazed and gas-heated but need modernising to lift rental values; kitchens are dated and bathrooms will benefit from refurbishment. Parking is available but limited to one full space and one small-space configuration.
The first-floor maisonette has potential for a loft conversion, subject to planning — neighbouring properties have completed similar works. The property’s town-centre location places shops, cafes and Aldershot mainline station within a short walk, supporting lettability.
Buyers should note the surrounding context: the wider area is classified as constrained and very deprived, with average crime levels. These factors affect long-term capital growth and tenant demand. Renovation and active asset management will be necessary to unlock higher rental yields and value uplift.
Studio apartment for sale in High Street, Aldershot, Hampshire, GU11 — £280,000 • 1 bed • 1 bath
2 bedroom flat for sale in Queens Road, Aldershot, GU11 — £160,000 • 2 bed • 1 bath • 493 ft²
2 bedroom apartment for sale in Ascot Court, Aldershot, Hampshire, GU11 — £145,000 • 2 bed • 1 bath • 523 ft²
Shop for sale in Fountain Hair Salon, 4 Union Street, Aldershot, Hampshire, GU11 — £895,000 • 6 bed • 6 bath • 2949 ft²
2 bedroom apartment for sale in Ascot Court, Aldershot, Hampshire, GU11 — £180,000 • 2 bed • 1 bath • 532 ft²
Studio apartment for sale in High Street, Aldershot, Hampshire, GU11 — £300,000 • 1 bed • 1 bath






































































