**Standout Features:**
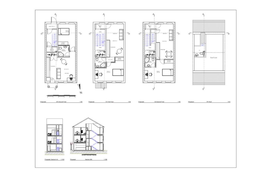
- Excellent investment opportunity with planning permission to convert into three apartments.
- Vacant possession available immediately.
- Convenient location near Aldershot Town Centre and mainline train station.
- Great connectivity via A331 road links.
- Modern three-storey brick exterior, poised for rental potential.
This three-storey building presents a remarkable investment opportunity in a vibrant urban setting. With planning permission already granted for conversion into three separate apartments, this property offers immense potential for a savvy investor or developer. The location is ideal, just a short walk from Aldershot Town Centre and the mainline train station, making it attractive to future tenants or buyers.
While the building currently boasts one bedroom and one bathroom, the renovation potential is what truly sets it apart. Its modern design and brick façade ensure a contemporary appeal, while vacant possession means you can begin your project immediately. The urban atmosphere includes diverse local amenities, from retail shops to leisure activities, ensuring residents have everything they need within reach.
**Considerations:** The area is classified as a constrained neighbourhood, with average crime rates and relatively high levels of deprivation. Interested parties should evaluate their vision for the property and the local market dynamics. Don’t miss out on this unique opportunity to shape a future rental gem in a developing area!
Studio apartment for sale in High Street, Aldershot, Hampshire, GU11 — £300,000 • 1 bed • 1 bath
Land for sale in 3 bedroom Semi-Detached Land in Aldershot, GU11 — £325,000 • 3 bed • 2 bath
Shop for sale in Fountain Hair Salon, 4 Union Street, Aldershot, Hampshire, GU11 — £895,000 • 6 bed • 6 bath • 2949 ft²
2 bedroom apartment for sale in Ascot Court, Aldershot, Hampshire, GU11 — £145,000 • 2 bed • 1 bath • 523 ft²
1 bedroom ground floor flat for sale in Ascot Court, Aldershot, Hampshire, GU11 — £140,000 • 1 bed • 1 bath • 330 ft²
2 bedroom apartment for sale in Frederick Street, Aldershot, Hampshire, GU11 — £200,000 • 2 bed • 1 bath • 553 ft²










