**Standout Features:**
- No upward chain
- Recently redecorated and carpeted
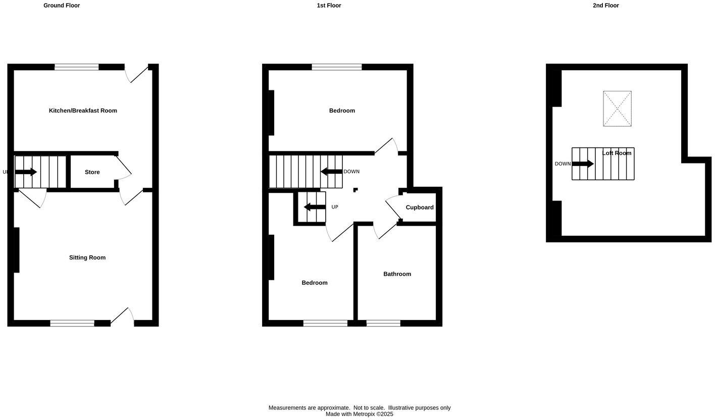
- Useful loft space
- Low-maintenance rear garden
- Convenient location close to shops and transport
Nestled in the desirable Wollaston area, this charming two-bedroom mid-terrace offers modern comforts with the added appeal of being move-in ready. The home is freshly decorated and features a welcoming living room and a contemporary kitchen with fitted units, ensuring ease of living. Upstairs, you'll find two cozy bedrooms alongside a well-sized bathroom, complemented by additional storage in the useful loft space.
The low-maintenance rear garden is an ideal retreat for relaxation without the fuss of extensive upkeep. Enjoy the convenience of being just a short walk from local shops, cafes, and parks, with easy access to transport links to Stourbridge and beyond. Perfect for first-time buyers seeking comfort and convenience, this freehold property promotes a sense of security and community. With council tax at a low band B and great potential for affordability, this home won't be on the market for long! Act fast to embrace a lifestyle of ease in this well-presented residence.
2 bedroom terraced house for sale in WOLLASTON - High Street, DY8 — £199,950 • 2 bed • 1 bath • 576 ft²
2 bedroom end of terrace house for sale in STOURBRIDGE - Mamble Road, DY8 — £195,000 • 2 bed • 1 bath • 581 ft²
2 bedroom terraced house for sale in Bridgnorth Road, Wollaston, Stourbridge, DY8 3PW, DY8 — £225,000 • 2 bed • 1 bath • 630 ft²
2 bedroom terraced house for sale in Richardson Drive, Stourbridge, DY8 4DW, DY8 — £210,000 • 2 bed • 1 bath • 571 ft²
2 bedroom terraced house for sale in Bridle Road, Stourbridge, West Midlands, DY8 — £230,000 • 2 bed • 1 bath • 890 ft²
2 bedroom semi-detached house for sale in High Street, Wollaston, Stourbridge, DY8 4PF, DY8 — £260,000 • 2 bed • 1 bath • 640 ft²










































































