Compact two-bedroom with rear garden and no upward chain.
No upward chain, ready for immediate sale
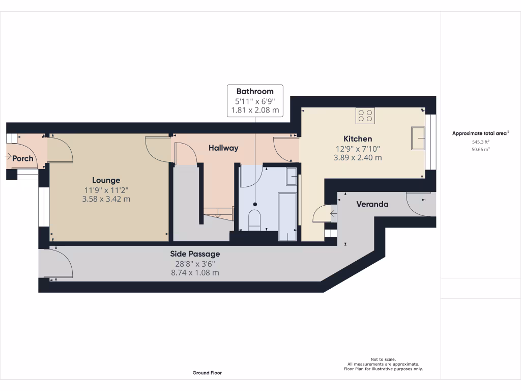
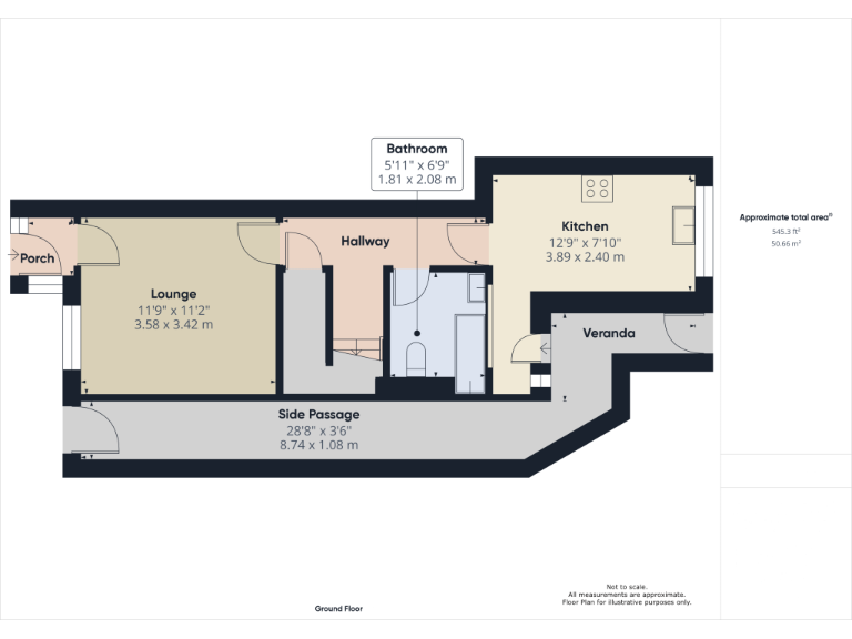
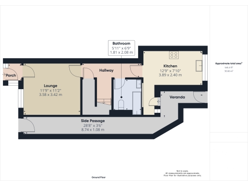
This tidy mid-terrace two-bedroom house on Wollaston High Street is presented chain-free and ready for immediate occupation. The ground floor offers a cosy living room with a feature fireplace, a well-appointed dining kitchen and a ground-floor bathroom. Upstairs are two generous double bedrooms with built-in wardrobes. Outside there is a paved patio, shared pathway to lawned gardens and a useful rear store building.
Well suited to a first-time buyer or investor seeking a compact, low-maintenance home in the village centre. The property benefits from mains gas central heating, double glazing and a low council tax band B, keeping running costs modest. Local amenities, shops and good primary and secondary schools are all within easy reach.
Practical considerations are clear: the overall footprint is small (576 sq ft) and the walls are described as system-built with no insulation assumed, which helps explain the EPC D rating. There is a shared alleyway and shared garden access, and the double glazing appears to pre-date 2002. These points mean some buyers may want to budget for improvement works, insulation upgrades or cosmetic modernisation to increase comfort and long-term value.
In short, this property offers an affordable, central village base with immediate occupancy and scope to add value through energy and cosmetic upgrades. Viewing is recommended for buyers wanting a compact, well-located home with straightforward ownership (freehold) and no upward chain.
2 bedroom terraced house for sale in Bridgnorth Road, Wollaston, Stourbridge, DY8 3PW, DY8 — £225,000 • 2 bed • 1 bath • 630 ft²
2 bedroom terraced house for sale in Vicarage Road, Wollaston, Stourbridge, DY8 4NS, DY8 — £195,000 • 2 bed • 1 bath • 625 ft²
2 bedroom semi-detached house for sale in WOLLASTON - Cobden Street, DY8 — £199,500 • 2 bed • 1 bath • 603 ft²
3 bedroom terraced house for sale in Cobden Street, Stourbridge, DY8 3RU, DY8 — £250,000 • 3 bed • 1 bath • 665 ft²
2 bedroom semi-detached house for sale in High Street, Wollaston, Stourbridge, DY8 4PF, DY8 — £250,000 • 2 bed • 1 bath • 640 ft²
3 bedroom semi-detached house for sale in WOLLASTON - High Street, DY8 — £390,000 • 3 bed • 1 bath • 980 ft²


































































