TS25 1DN - 2 bed spacious seaton bungalow in Station Lane, TS25 1DN

View on Property Piper

2 bedroom semi-detached bungalow for sale in Station Lane, Seaton Carew, Hartlepool, TS25

Summary - 117 STATION LANE HARTLEPOOL TS25 1DN

2 bed 2 bath Semi-Detached Bungalow

South-facing garden and attic rooms with summerhouse near seafront and station.
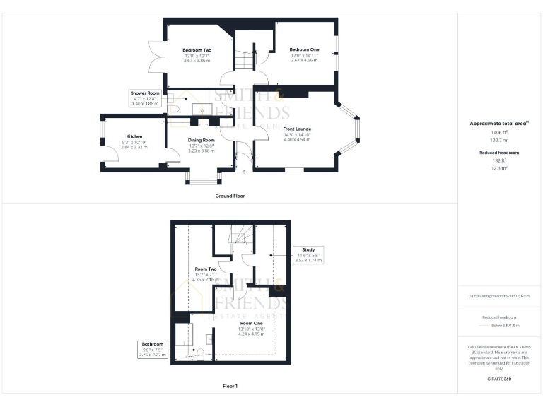
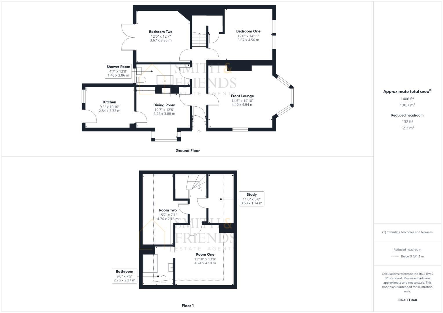
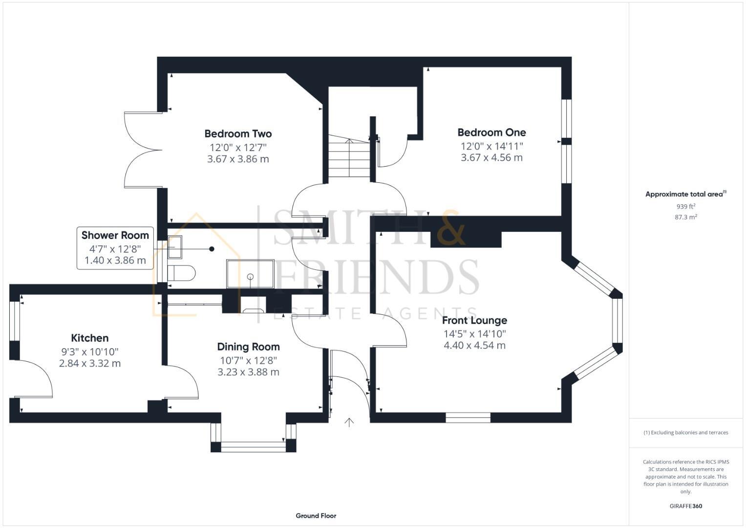
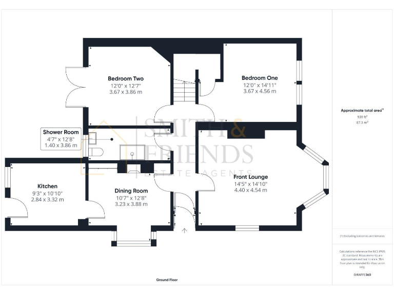
Two large ground-floor bedrooms and two reception rooms
This well-proportioned semi‑detached bungalow sits in a sought-after part of Seaton Carew, a short walk from the seafront and local amenities. The ground floor offers two generous reception rooms, two sizable bedrooms and a modern shower room — ideal for buyers wanting single-storey living with flexible living space.

A notable feature is the cleverly converted attic, which provides three additional rooms and an en-suite bathroom. These spaces add versatility for guests, home working or occasional family use, but they are accessed by a turned staircase, so they are not true single‑level accommodation.

Outside, the south‑facing rear garden with patio, lawn and a divided summerhouse creates private outdoor space and a useful home‑office or hobby room. Practical extras include off‑street parking, gas central heating and uPVC double glazing. The property is freehold and shows as presented in good order, making it attractive to downsizers seeking convenience or buy‑to‑let investors.

Buyers should note the house dates from the 1930s–40s and cavity walls are assumed to lack insulation; adding insulation would improve energy efficiency. While the interior is tidy, some buyers may want to update fixtures or heating controls over time to suit modern standards.

Property Details

Brochure Descriptions

Image Descriptions

Floorplan Description

Rooms

Textual Property Features

Target Audience

AI Tags

Detected Visual Features

EPC Details

Nearby Schools

Nearest Bars And Restaurants

,,,,}

Nearest General Shops

,,}

Nearest Grocery shops

,,}

Nearest Supermarkets

,,}

Nearest Religious buildings

,,}

Nearest Medical buildings

,,,}

Nearest Leisure Facilities

,,,,}

Nearest Tourist attractions

,,}

Nearest Train stations

,,,,}

Nearest Bus stations and stops

,,,,}

Nearest Hotels

,,}

Tags

Local Market Stats

AirBnB Data

Similar Properties

Meta

High Res Images

Compatible Images

Low res Images

Thumbnails

Raw Images

High Res Floorplan Images

Compatible Floorplan Images

Low res Floorplan Images

FloorplanImages Thumbnail

Raw Floorplan Images