Newly renovated three‑bed family home with open plan living and ample parking..
Chain free vacant possession assured
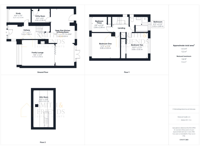
Three bedrooms plus large attic room, versatile use
Newly renovated throughout with quality finishes
Luxurious refitted four‑piece bathroom (single bathroom)
Open plan kitchen/diner with separate utility room
Lounge with log burner and oak bi‑folding doors
Block‑paved driveway for multiple cars; generous rear garden
Attic has reduced headroom; consider for occasional use only
This extended semi‑detached house on Bilsdale Road offers flexible family living across three bedrooms plus a large attic room. The home has been newly renovated with quality finishes: herringbone oak flooring, oak staircase with glass panelling, modern double glazing and gas central heating with traditional column radiators. The open‑plan kitchen/dining space and separate utility make daily living and entertaining straightforward.
The property benefits from a luxurious recently refitted four‑piece bathroom with roll‑top bath, plus a generous lounge with a recessed log burner and oak bi‑folding doors into the kitchen/diner. Practical features include a study/reception room on the ground floor, off‑street parking for multiple cars on a block‑paved driveway and a sizeable rear garden with patio areas — enough space for family play, garden furniture or a freestanding hot tub (available by separate negotiation).
There are some points to note: accommodation includes a single bathroom serving three bedrooms and an attic room with some reduced headroom; the attic is suitable for occasional or flexible use (currently a home cinema). The property was constructed in the late 1960s/early 1970s, so while many elements are newly upgraded, buyers should consider age‑related items when budgeting for long‑term maintenance.
Overall the house will appeal to growing families seeking move‑in ready accommodation near Seaton Carew’s seafront and local amenities. Vacant possession and a chain‑free sale make for a straightforward purchase process for buyers wanting quick occupation or letting potential.
3 bedroom semi-detached house for sale in Bilsdale Road, Seaton Carew, Hartlepool, TS25 — £225,000 • 3 bed • 1 bath • 1367 ft²
3 bedroom semi-detached house for sale in Bilsdale Road, Seaton Carew, Hartlepool, TS25 — £190,000 • 3 bed • 1 bath • 1125 ft²
2 bedroom semi-detached bungalow for sale in Station Lane, Seaton Carew, Hartlepool, TS25 — £195,000 • 2 bed • 2 bath • 1278 ft²
3 bedroom semi-detached house for sale in Broomhill Gardens, Hartlepool, TS26 — £142,500 • 3 bed • 1 bath • 940 ft²
3 bedroom semi-detached house for sale in Broomhill Gardens, Hartlepool, TS26 — £185,000 • 3 bed • 1 bath • 1192 ft²
3 bedroom semi-detached house for sale in Wharton Terrace, Hartlepool, TS24 — £135,000 • 3 bed • 1 bath • 1054 ft²






































































































































































