Superior six‑bed home with private annexe, verandah and generous living spaces near Debenham village..
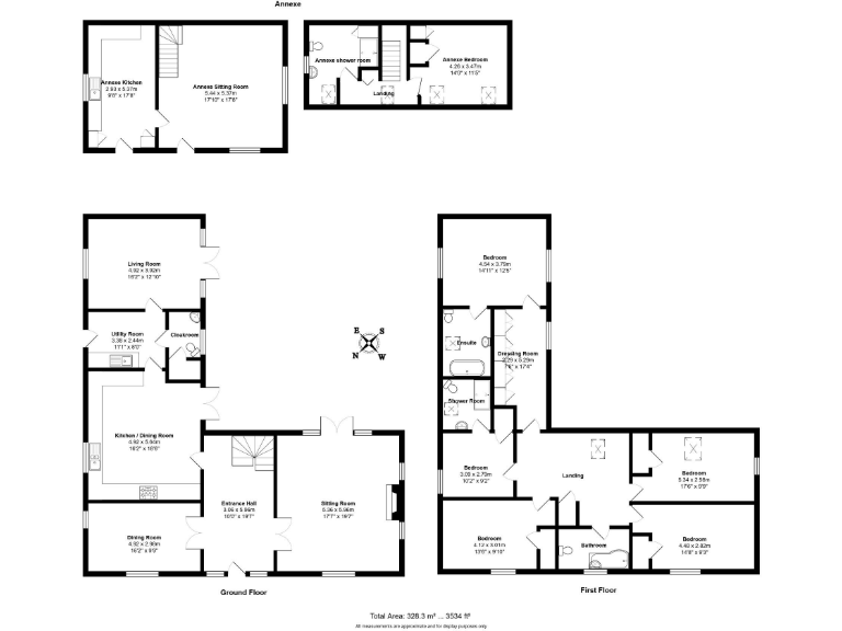
Individually designed detached house with 3,500 sq ft including annexe
Secluded one‑bedroom annexe — potential guest unit or income source
Three reception rooms; sitting room with inglenook and wood burner
Kitchen/breakfast plus utility; doors open onto large decked verandah
Ground‑floor zoned underfloor heating; double glazing throughout
Oil‑fired boilers for both properties — ongoing fuel and maintenance cost
Small plot for property size; limited garden expansion potential
Council Tax Band F — relatively expensive ongoing charge
A superior individually designed detached house offering 3,500 sq ft including a secluded one‑bedroom annexe — ideal for multigenerational living or rental income. The main house has generous living space with three reception rooms, a marble entrance hall and a sitting room with an inglenook fireplace and wood burner. Ground‑floor zoned underfloor heating, double glazing and an EV charging point add modern convenience.
The kitchen/breakfast room and family room both open onto a large decked verandah and paved patio, creating an attractive indoor‑outdoor flow for family life and entertaining. The first floor provides five bedrooms, a principal bedroom suite with dressing room and three bathrooms. The annexe includes a fitted kitchen, spacious sitting room and a first‑floor bedroom with shower room, tucked privately within the grounds.
Practical points to note: both properties use oil-fired boilers (main house and annexe) and the council tax band is high (Band F). The plot is described as small for the overall property size and broadband speeds are average, which may affect home working. Constructed in the 1980s, the house appears well maintained but would benefit from buyer inspection to confirm services and finishes.
Set quietly near Debenham village centre in an affluent, low‑crime area with good local schools and amenities, the house suits families seeking spacious accommodation with an annexe for guests, staff or rental use. Viewings are recommended to appreciate the layout, verandah and versatile annexe accommodation.
4 bedroom detached house for sale in Great Back Lane, Debenham, IP14 — £625,000 • 4 bed • 3 bath • 2192 ft²
3 bedroom detached house for sale in Debenham, IP14 — £385,000 • 3 bed • 2 bath • 1147 ft²
3 bedroom character property for sale in Cross Green, Debenham, STOWMARKET, IP14 — £525,000 • 3 bed • 1 bath • 1583 ft²
5 bedroom detached house for sale in Debenham, IP14 — £425,000 • 5 bed • 4 bath • 1556 ft²
5 bedroom village house for sale in High Street, Debenham, Stowmarket, IP14 — £610,000 • 5 bed • 3 bath • 2714 ft²
5 bedroom detached house for sale in Church Green, Bramford, IP8 — £580,000 • 5 bed • 3 bath • 2418 ft²


















































































