Immaculate, newly renovated throughout with quality fittings
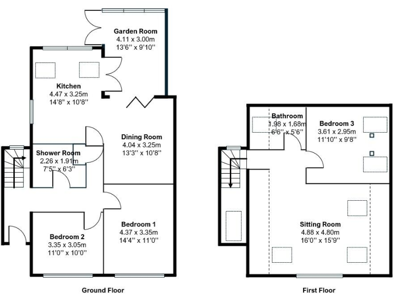
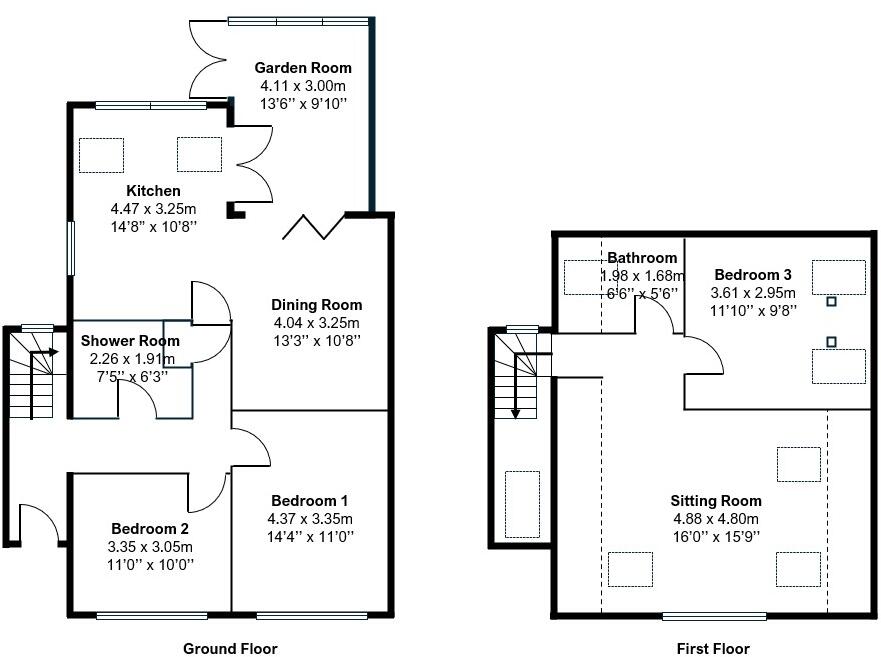
A recently modernised detached chalet bungalow offering well‑appointed split‑level living in a quiet Debenham location. The ground floor houses two good-sized bedrooms, a large shower room and an exceptional kitchen/breakfast room that opens to a tiled garden room and dining area — an easy, sociable layout for family life. An upstairs sitting room and third bedroom provide privacy and flexible space for teenagers, home working or guests.
The property has been upgraded with energy-saving features including solar panels and an air source heat pump, giving notably lower running costs (circa 2,100 kWh generation in the first eight months of 2025) and an EPC rating of C. Finished throughout to a high standard, internal fittings include Miele appliances, Grohe sanitaryware and solid oak floors in the first‑floor sitting room and bedroom.
Outside, a secluded rear garden with raised paved patio, pergola, ornamental pond and hot tub point creates a private family outdoor area. Parking is available via a garage en bloc and the property sits on a decent plot within easy walking distance of the village centre and well-regarded local schools.
Practical points to note: the house dates from 1976–82 and, while newly renovated internally, the exterior retains a mid‑century character that may benefit from cosmetic updating. Broadband speeds are average for the area. Council Tax Band B and freehold tenure make this a straightforward purchase for families seeking comfortable, low‑cost running living in a prosperous countryside setting.
3 bedroom semi-detached house for sale in Debenham, IP14 — £310,000 • 3 bed • 2 bath • 1211 ft²
3 bedroom bungalow for sale in Wardlaw Court, Debenham, Stowmarket, Suffolk, IP14 — £400,000 • 3 bed • 2 bath • 1150 ft²
4 bedroom detached house for sale in Debenham, IP14 — £560,000 • 4 bed • 2 bath • 1523 ft²
6 bedroom detached house for sale in Debenham, IP14 — £850,000 • 6 bed • 5 bath • 3500 ft²
5 bedroom detached house for sale in Wells Way, Debenham, Stowmarket, Suffolk, IP14 — £450,000 • 5 bed • 3 bath • 1706 ft²
3 bedroom semi-detached house for sale in Priory Lane, Debenham, IP14 — £425,000 • 3 bed • 2 bath • 1217 ft²


































































