**Standout Features:**
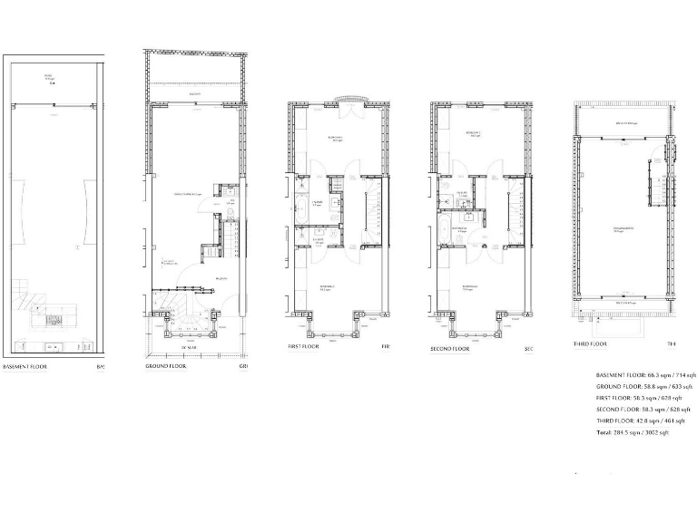
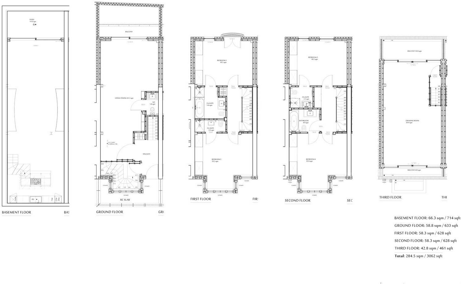
- Newly built luxury mid-terrace townhouse over five floors (3,062 SQFT)
- Four spacious bedrooms with en-suite bathrooms
- Modern Italian kitchen with high-end appliances
- Stylish finishes, oak flooring, marble bathrooms
- Air conditioning and underfloor heating throughout
- Four private outdoor spaces including balconies and a terrace
- Located near Chalk Farm (0.1 miles) and Camden Station (0.5 miles)
- Excellent local amenities in the vibrant Camden area
**Potential Downsides:**
- High crime rate in the area
- Small plot size with limited outdoor space
This newly built luxury townhouse offers an impressive 3,062 square feet of living space, elegantly designed across five floors, making it the ideal home for families seeking both space and modern comfort. With four generously sized bedrooms each featuring en-suite bathrooms, this property is perfect for those looking for convenience and privacy. The contemporary Italian kitchen, equipped with premium Bora and Miele appliances, complements the stunning interiors flaunting oak flooring and marble finishes.
Nestled in the vibrant heart of Camden, enjoy the ease of access to Chalk Farm and Camden Station, providing effortless connections to the city's heart. The property boasts four private outdoor areas, including balconies and a terrace—perfect for entertaining or simply relaxing. While the area enjoys a wealth of amenities, including boutique shops, cafes, and proximity to lush green spaces, it's important to note the high crime rate, which may be a consideration for some buyers.
This exceptional property not only showcases luxury but also presents immense potential for a comfortable urban lifestyle. Don't miss out on this exclusive opportunity to own a piece of modern living in one of London’s most eclectic and dynamic neighborhoods.
4 bedroom town house for sale in Belmont Street, Camden, London, NW1 — £2,250,000 • 4 bed • 4 bath • 2917 ft²
4 bedroom town house for sale in Belmont Street, Camden, London, NW1 — £2,350,000 • 4 bed • 4 bath • 3062 ft²
4 bedroom town house for sale in Belmont Street, Camden, London, NW1 — £2,250,000 • 4 bed • 4 bath • 2917 ft²
4 bedroom terraced house for sale in Belmont Street, London, NW1 — £2,350,000 • 4 bed • 4 bath • 3062 ft²
4 bedroom terraced house for sale in Belmont Street, London, NW1 — £2,250,000 • 4 bed • 4 bath • 3062 ft²
4 bedroom town house for sale in Chappell Lofts, Belmont Street, Chalk Farm, London, NW1, United Kingdom, NW1 — £2,350,000 • 4 bed • 4 bath • 3062 ft²










































