**Standout Features:**
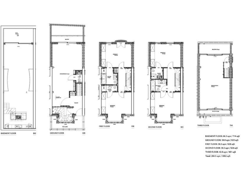
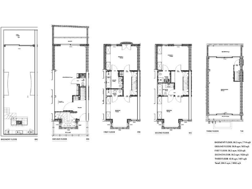
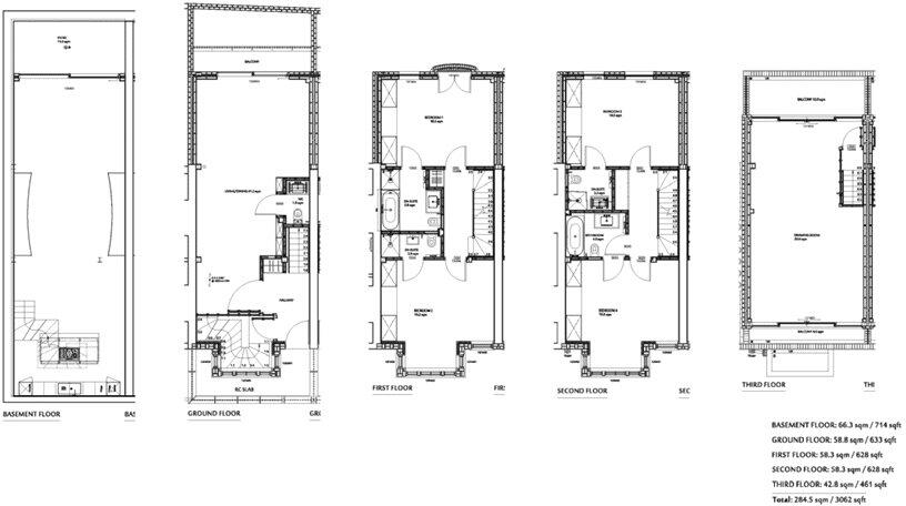
- Expansive 4-bedroom terraced home in Camden
- 3,062 sq. ft. of modern, exquisitely finished living space
- Share of Freehold and chain-free
- State-of-the-art open-plan kitchen with high ceilings
- Four en-suite bathrooms and generous wardrobe space
- Quiet residential street near vibrant Camden High Street
- Excellent mobile signal and fast broadband
**Concise Summary:**
Discover a remarkable 4-bedroom terraced home in the heart of Camden, NW1, offering a generous 3,062 square feet of contemporary living space. With superb finishes throughout, this modern family residence features a light-filled open-plan kitchen and an expansive living area, all enhanced by tall ceilings and premium design elements. Each bedroom boasts its own en-suite bathroom, providing exceptional comfort for family and guests alike.
Positioned on the tranquil Belmont Street, just moments from the bustling Camden High Street and iconic Round House venue, this property combines the best of city living with a serene environment. You'll find an array of shops, restaurants, and amenities on your doorstep, along with excellent transport links for easy commuting.
While the council tax is high and the area experiences some crime, the vibrant culture and community appeal add compelling value. This chain-free opportunity is perfect for families seeking comfort and exclusivity in a prime location. Don’t miss your chance to own this stunning property—where luxury meets lifestyle in one of London's most dynamic neighborhoods.
4 bedroom terraced house for sale in Belmont Street, London, NW1 — £2,350,000 • 4 bed • 4 bath • 3062 ft²
4 bedroom town house for sale in Belmont Street, Camden, London, NW1 — £2,350,000 • 4 bed • 4 bath • 3062 ft²
4 bedroom town house for sale in Belmont Street, Camden, London, NW1 — £2,250,000 • 4 bed • 4 bath • 2917 ft²
5 bedroom house for sale in Belmont Street, Camden Town, London, NW1 — £2,350,000 • 5 bed • 4 bath • 2922 ft²
4 bedroom town house for sale in Belmont Street, Camden, London, NW1 — £2,250,000 • 4 bed • 4 bath • 2917 ft²
4 bedroom town house for sale in Belmont Street, Camden, London, NW1 — £2,350,000 • 4 bed • 4 bath • 3062 ft²






























