**Standout Features:**
- Exceptional 4-bedroom, 4-bathroom Victorian townhouse in Camden NW1
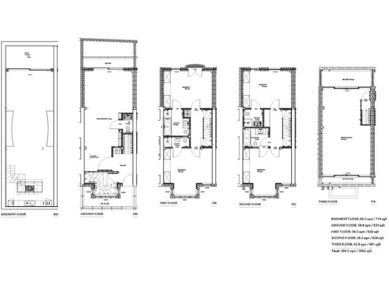
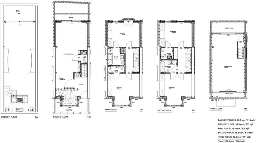
- Over 3,000 sq ft of interior space across five levels
- High ceilings throughout and pristine modern finishes
- Spacious open-plan kitchen with state-of-the-art appliances
- Dedicated reception rooms, including a top-floor TV room and courtyard access
- Share of Freehold with extensive local amenities and transport links
**Concerns:**
- Council Tax Band G; relatively high maintenance costs
- Located in an area with noted high crime rates
Discover a remarkable opportunity with this expansive Victorian townhouse in the heart of Camden. Spanning over 3,000 sq ft, this beautifully finished home showcases high ceilings, modern design elements, and an open-plan layout ideal for family living or entertaining. The property features a state-of-the-art kitchen, four generous bedrooms with en-suites, and versatile reception spaces, including a serene courtyard for outdoor relaxation.
Perfectly positioned on a quiet residential street just steps away from the vibrant Camden High Street and renowned Round House venue, you’ll enjoy convenient access to a multitude of shops, restaurants, and the eclectic Camden Stables Market. Commuters will appreciate the short stroll to Camden Tube station, ensuring seamless connections across London.
While the property is in excellent condition, prospective buyers should consider the higher council tax and the noted crime rates in the area. This family home not only promises comfort and style but also offers ample renovation potential should you wish to personalize your space further. Don’t miss this rare opportunity to own a stylish urban oasis where the best of Camden’s lively atmosphere meets contemporary living!
4 bedroom terraced house for sale in Belmont Street, London, NW1 — £2,250,000 • 4 bed • 4 bath • 3062 ft²
5 bedroom house for sale in Belmont Street, Camden Town, London, NW1 — £2,350,000 • 5 bed • 4 bath • 2922 ft²
4 bedroom town house for sale in Belmont Street, Camden, London, NW1 — £2,350,000 • 4 bed • 4 bath • 3062 ft²
4 bedroom property for sale in Belmont Street, London, NW1 — £2,350,000 • 4 bed • 3 bath • 2917 ft²
4 bedroom town house for sale in Belmont Street, Camden, London, NW1 — £2,250,000 • 4 bed • 4 bath • 2917 ft²
5 bedroom house for sale in Belmont Street, London, NW1 — £2,250,000 • 5 bed • 5 bath • 2917 ft²










































