ST16 1NU - 1 bed spacious self build plot in Stafford, ST16 1NU

View on Property Piper

Land for sale in Pulteney Drive, Stafford, ST16

Summary - Pulteney Drive, Stafford, ST16 ST16 1NU

1 bed 1 bath Land

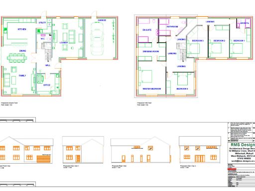
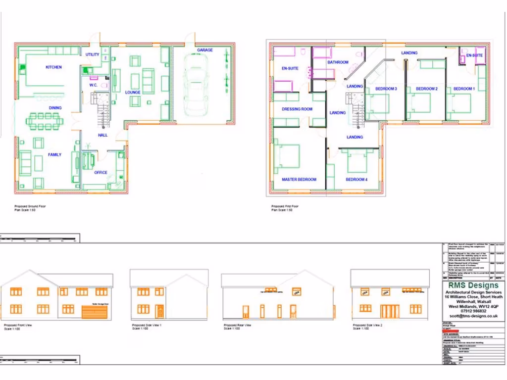
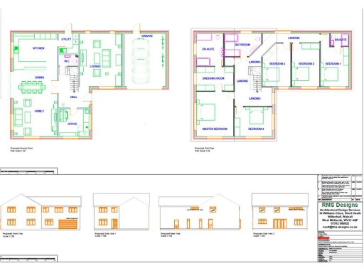
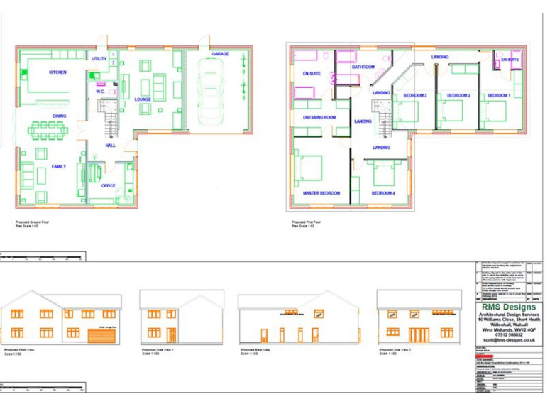
Generous freehold plot with approved plans for a five-bedroom family home in sought-after Stafford.
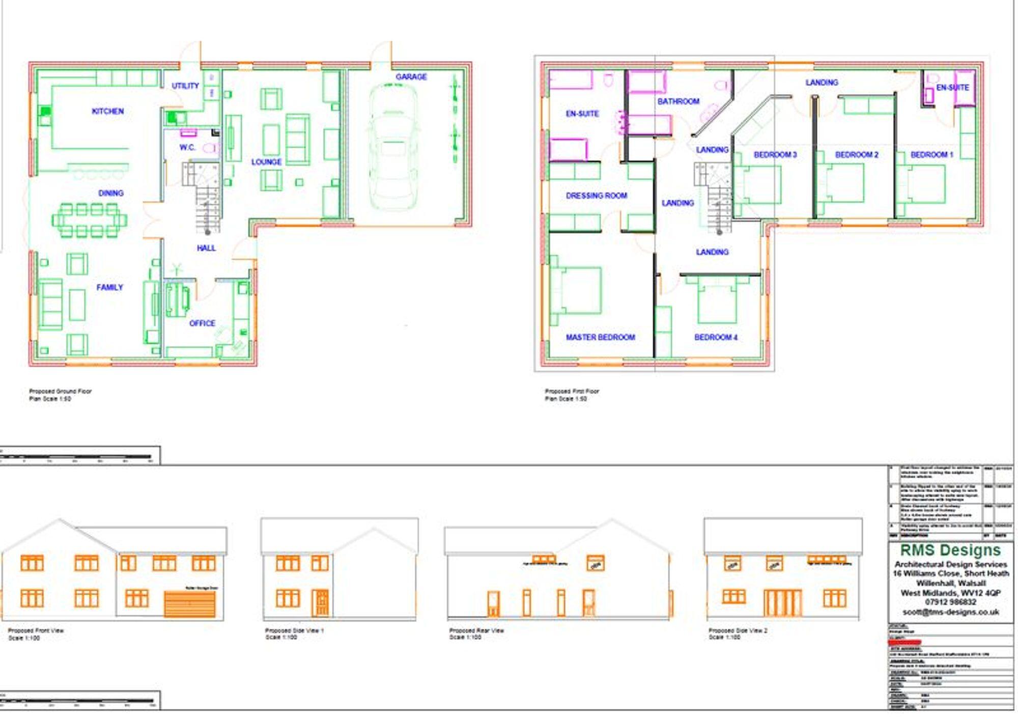
Full planning permission for a five-bed detached house (Ref: 24/39395/FUL)
An unusually generous freehold plot in Pulteney Drive, Stafford, with full planning permission for a two-storey, five-bedroom detached home (Ref: 24/39395/FUL). The site is well positioned for commuter routes, the mainline station and local shops, and offers a south-facing garden, off-street parking and an existing garden shed that could be repurposed as a workshop or garden room.

This opportunity suits a self-build buyer or developer wanting to create a substantial family home (approx. 300m²). The dropped curb is already in place, broadband and mobile signals are strong, and the area records low crime and an affluent profile. The owner’s estimated end value is £650,000 but this is indicative and depends on finish quality and market conditions — buyers should verify valuations independently.

Important practical points: the plot is sold as land requiring construction work; budgeting for build costs, professional fees, and local authority requirements is essential. Some nearby primary provision has mixed Ofsted outcomes, so confirm school place details if schooling is a priority. Flood risk is nil and tenure is freehold.

Rare in this popular Stafford location, the plot delivers development flexibility and scope to personalise layout and finishes. If you are prepared to manage a self-build or appoint a contractor, this site provides the space and permissions to deliver a large, bespoke family home in a well-connected suburb.

Property Details

Image Descriptions

Textual Property Features

Target Audience

AI Tags

Detected Visual Features

Nearby Schools

Nearest Bars And Restaurants

,,,,}

Nearest General Shops

,,}

Nearest Grocery shops

,,}

Nearest Supermarkets

,,}

Nearest Religious buildings

,,}

Nearest Medical buildings

,,,}

Nearest Leisure Facilities

,,,,}

Nearest Tourist attractions

,,}

Nearest Train stations

,,,,}

Nearest Bus stations and stops

,,,,}

Nearest Hotels

,,}

Tags

Local Market Stats

AirBnB Data

Similar Properties

Meta

High Res Images

Compatible Images

Low res Images

Thumbnails

Raw Images

High Res Floorplan Images

Compatible Floorplan Images

Low res Floorplan Images

FloorplanImages Thumbnail

Raw Floorplan Images