ST18 9DZ - 4 bed village building plot bradley in Smithy Lane, ST18 9DZ

View on Property Piper

Land for sale in Jasmine House, Smithy Lane, Bradley, Staffordshire, ST18 9DZ, ST18

Summary - The Old Cottage, Smithy Lane, Bradley, STAFFORD ST18 9DZ

4 bed 4 bath Land

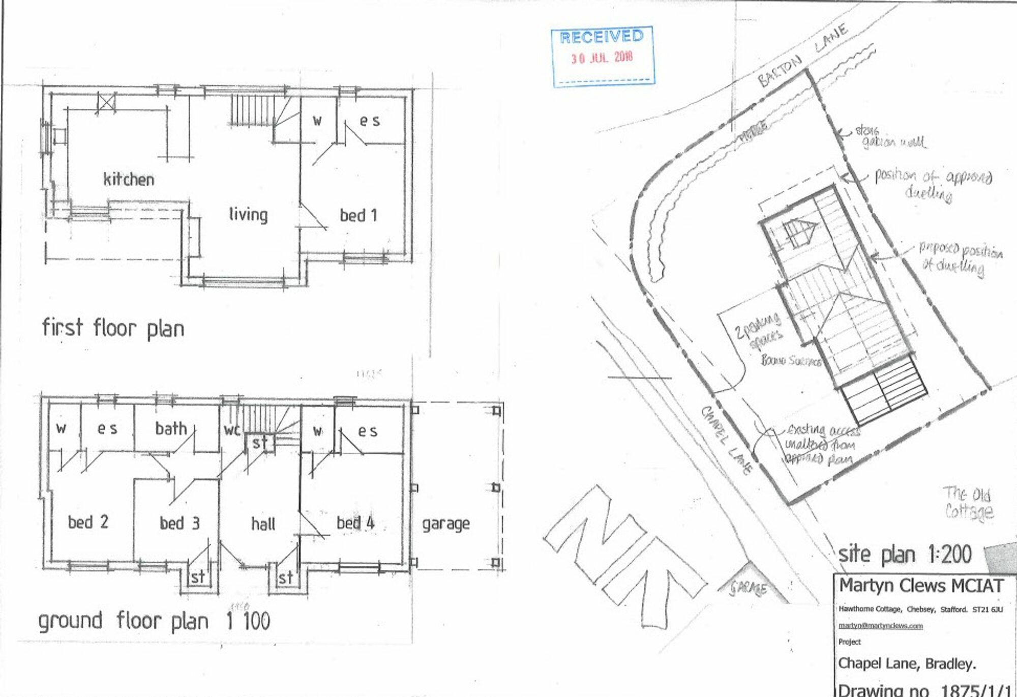
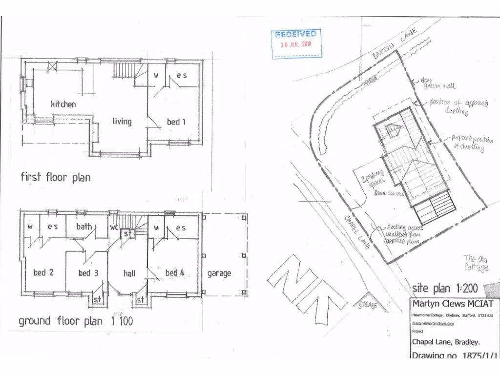
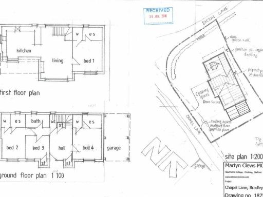
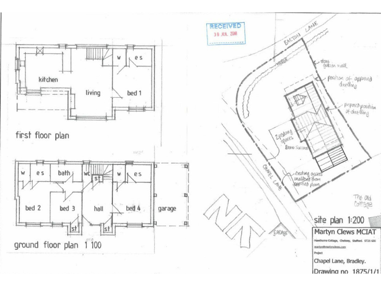
Ready-prepared village plot with full planning permission for a spacious four-bedroom home..
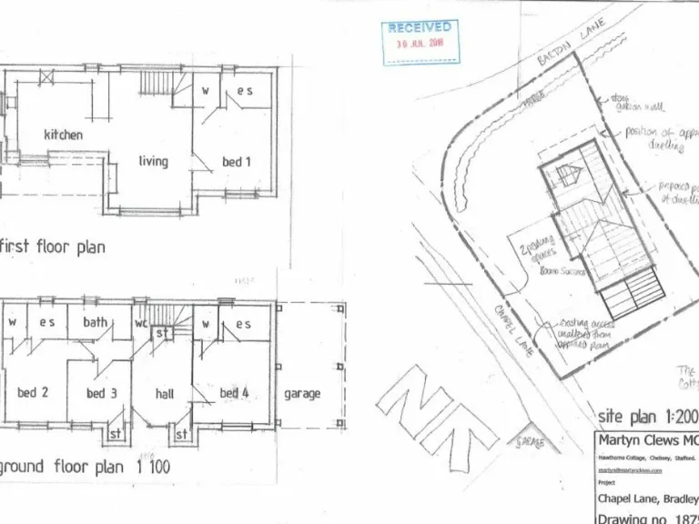
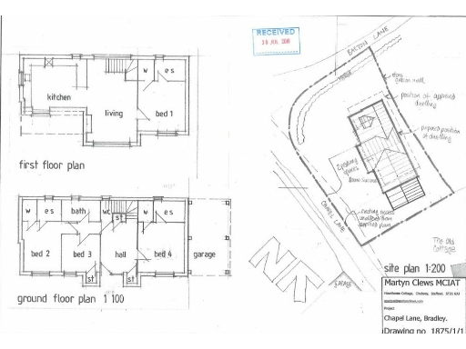
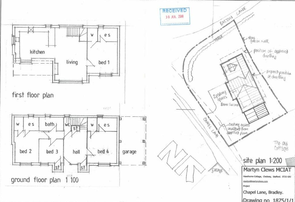
- Full planning permission for detached four-bedroom house (ref 24/38871/FUL)
- Approved build size approx 192m2 (excludes carport)
- Substantial engineering works completed: stone gabion retaining walls
- Freehold plot in attractive Bradley village location
- Fast broadband; mobile phone signal reported as none
- Price £225,000; low flood risk and low local crime
- Vendor can build for extra cost; separate garaging may be negotiable
- Close to Stafford and Newport; primary school rated Good
A rare chance to buy a ready-prepared building plot in the heart of Bradley with full planning permission for a detached four-bedroom house (planning ref 24/38871/FUL). The approved design provides roughly 192m2 of living space excluding a carport, giving scope for a spacious family home or a strong rental proposition in an affluent rural village.

Significant engineering work has already been completed on site, including stone gabion retaining walls and groundwork to level and stabilise the plot, which reduces early-stage cost and complexity. The plot is freehold, lies in a low-crime area, and benefits from fast broadband — useful for home working — while being within easy reach of Stafford and Newport and local amenities such as a pub, village hall and primary school rated Good.

Buyers should note some important practical points: mobile phone signal on site is reported as none, and the vendor’s offer to build the house is available only at additional cost and would be negotiated separately. There may also be separate negotiation required for an additional range of garaging across the lane. Services and connections are not described here, so purchasers should verify utilities and any remaining site preparation costs.

This plot suits a family seeking a bespoke home in a quiet village setting or an investor looking to develop a desirable four-bedroom detached property for sale or long-term let. Full planning permission is in place, reducing planning risk and speeding development for a buyer ready to progress.

Property Details

Image Descriptions

Rooms

Textual Property Features

Target Audience

AI Tags

Detected Visual Features

Nearby Schools

Nearest Bars And Restaurants

,,,,}

Nearest General Shops

,,}

Nearest Grocery shops

,,}

Nearest Supermarkets

,,}

Nearest Religious buildings

,,}

Nearest Medical buildings

,,,}

Nearest Leisure Facilities

,,,,}

Nearest Tourist attractions

,,}

Nearest Train stations

,,,,}

Nearest Bus stations and stops

,,,,}

Nearest Hotels

,,}

Tags

Local Market Stats

Similar Properties

Meta

High Res Images

Compatible Images

Low res Images

Thumbnails

Raw Images

High Res Floorplan Images

Compatible Floorplan Images

Low res Floorplan Images

FloorplanImages Thumbnail

Raw Floorplan Images