**Standout Features:**
- Expansive 2.8-acre plot with granted planning permission for an eco-friendly, 10,000 sq. ft. designer home.
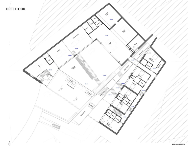
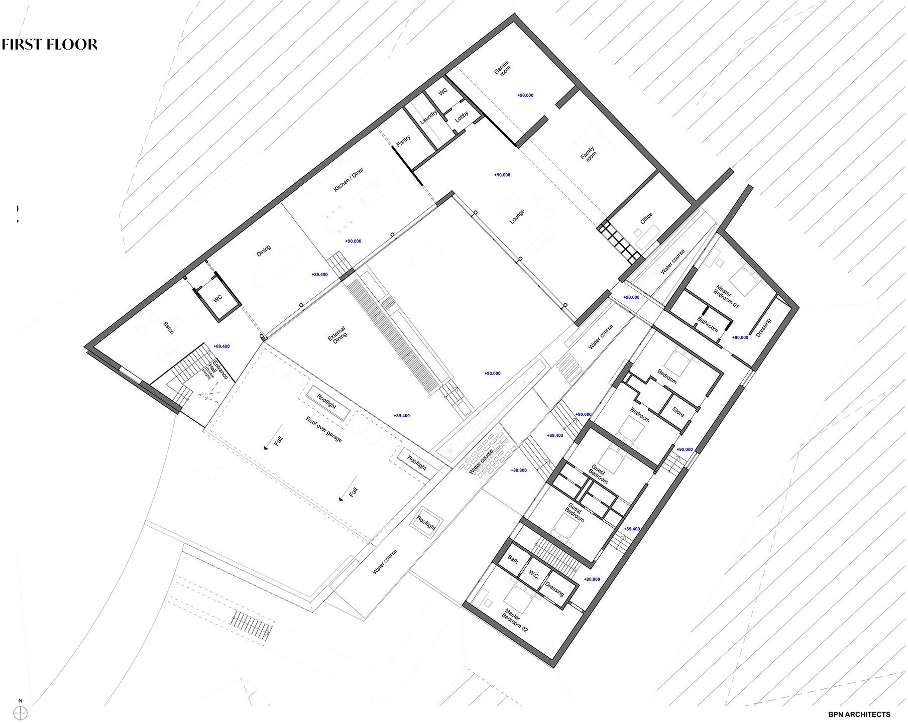
- Designed by award-winning BPN Architects, featuring 6 bedrooms and numerous luxury living spaces.
- Sustainable features including solar panels, ground source heat pump, triple glazing, and a natural grass roof.
- Situated in a serene rural setting with unspoiled views, offering maximum privacy.
- Close proximity to local amenities, schools, and outdoor recreation.
**Summary:**
This exceptional 2.8-acre building plot offers a rare opportunity to create your dream home in the picturesque Staffordshire countryside. With planning permission granted under Paragraph 80, envision Marl House—a stunning 10,000 sq. ft. eco-friendly residence designed by the renowned BPN Architects. This future home will boast six spacious bedrooms, multiple living areas including a cinema and gym, and high-spec amenities that promote luxurious living in harmony with nature.
The property’s sustainability features, such as PV solar panels and a ground source heat pump, not only enhance energy efficiency but also integrate seamlessly into the tranquil landscape. For families, the area is served by highly rated local schools and is just a stone's throw from charming village amenities, outdoor pursuits, and excellent transport links.
While the site does not have known mains services, this offers a unique chance to customize your home to your preference. Be prepared to explore this extraordinary opportunity where luxury meets eco-conscious living—this unique plot won't be available for long!
Land for sale in Newlands Lane, Stockwell Heath, Rugeley, Staffordshire, WS15 3LZ, WS15 — £600,000 • 1 bed • 1 bath • 10000 ft²
Land for sale in Drayton Lane, Drayton Bassett, B78 — £450,000 • 1 bed • 1 bath • 4187 ft²
5 bedroom detached house for sale in Haddon Lane, Chapel Chorlton, ST5 — £895,000 • 5 bed • 5 bath • 7500 ft²
Detached house for sale in The Walled Garden Plot, Rangemore, Staffordshire, DE13 — £975,000 • 1 bed • 1 bath • 6023 ft²
Detached house for sale in Building Plot at Pipehill, Walsall Road, Lichfield, WS13 — £450,000 • 1 bed • 1 bath • 4112 ft²
Land for sale in The Walled Garden, Elmhurst, WS13 — £1,700,000 • 5 bed • 5 bath • 10000 ft²


















































