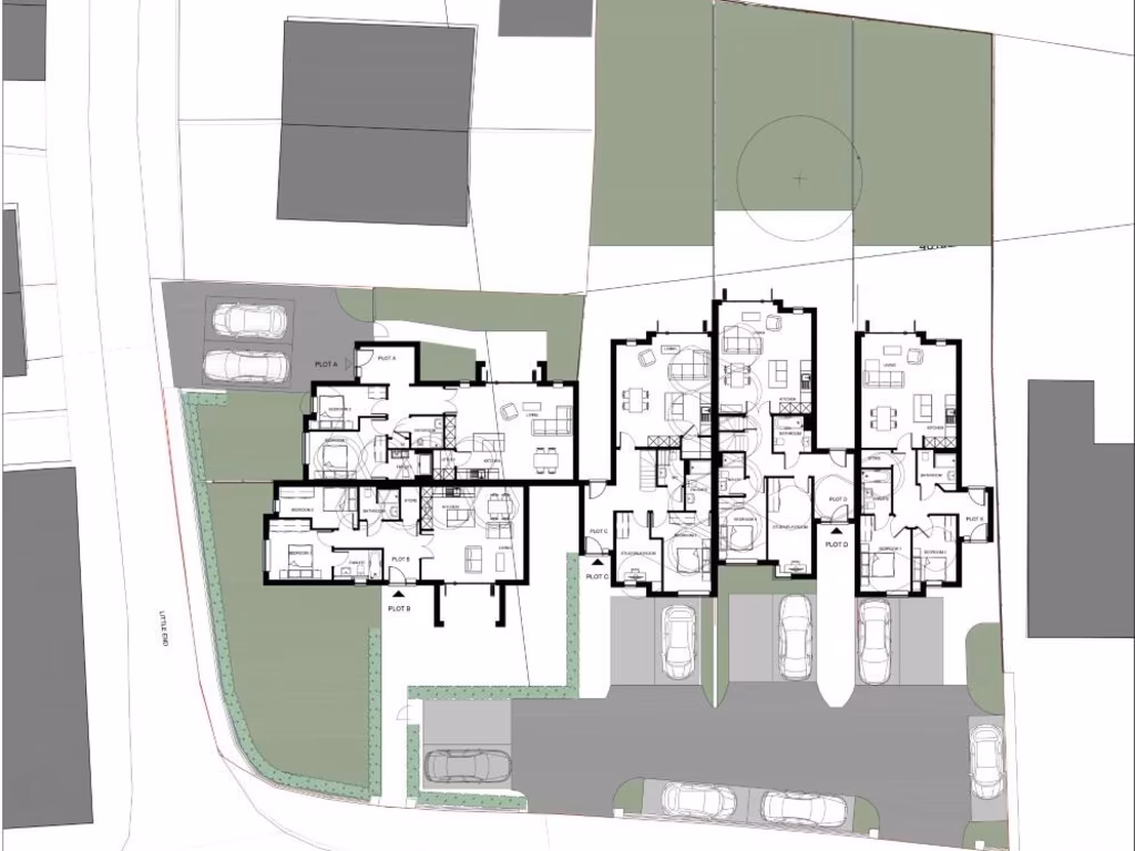
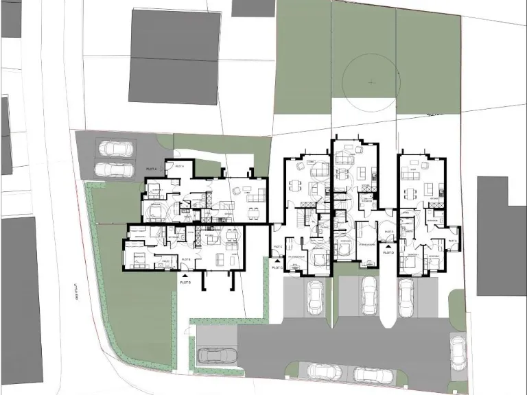
Five approved homes on a large 0.4-acre plot near Holme-on-Spalding Moor.
Full planning consent for five dwellings (Application 20/01450/PLF)
A rare redevelopment plot of about 0.4 acres in a quiet hamlet, granted full planning consent for five dwellings. Consent covers demolition of the former public house and erection of five modern homes, with two plots revised to two-storey designs to increase unit sizes. Approved dwellings range from two-bed bungalows to a five-bed house, with sizes from c.820 to c.1,382 sqft.
This opportunity suits developers or investor-builders seeking a small new-build scheme in an affluent rural setting close to Holme-on-Spalding Moor. The architect’s designs prioritise light with vaulted ceilings and large glazing. Local amenities include a primary school, shops, post office and pubs; Market Weighton and Howden are within easy reach.
Important considerations: the existing building has recorded fire damage throughout the former pub and will require demolition as per planning. An archaeological condition has been discharged but purchasers should review the legal pack for remaining obligations. Broadband speeds in the area are very slow; mobile signal is excellent. Services are believed available locally, but buyers must confirm connections and costs.
Sale will be by online auction; buyers should note additional purchaser fees (administration charge and buyer’s premium) and that the lot is freehold. This is a cleared-planning, high-potential site for a small developer or investor prepared to manage construction, connections and the residual site works.
Healthcare facility for sale in Langdale House, River Lane, Market Weighton, York YO43 4FN, YO43 — £150,000 • 6 bed • 1 bath
Cottage for sale in Site On The West Side Of The Hall, Justice Lane, Whitgift, Goole, East Riding Of Yorkshire, DN14 8HL, DN14 — £95,000 • 1 bed • 1 bath
Healthcare facility for sale in Fossdale House, River Lane, Market Weighton, York YO43 4FN, YO43 — £150,000 • 6 bed • 1 bath
Plot for sale in Everingham, York, YO42 — £300,000 • 3 bed • 3 bath • 2354 ft²
3 bedroom semi-detached house for sale in Westfield Road, Market Weighton, York, YO43 3EJ, YO43 — £270,000 • 3 bed • 1 bath • 1257 ft²
3 bedroom house for sale in Spaldington, Goole, DN14 — £300,000 • 3 bed • 1 bath • 1744 ft²














































