SE15 4HL - 3 bed victorian top floor flat in Kinsale Road, SE15 4HL

View on Property Piper

3 bedroom flat for sale in Kinsale Road, Peckham, SE15

Summary - First Floor Flat, 26 Kinsale Road SE15 4HL

3 bed 1 bath Flat

Ready to move in near parks and stations for first-time buyers.
Chain-free three-bedroom first-floor apartment
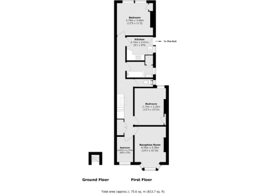
Approx 813 sq ft with high ceilings and bay window
Recently redecorated — ready to move in
Long lease: 161 years remaining
Small private garden included
Single bathroom for three bedrooms
Located near Peckham Rye Park and stations
High local crime and area deprivation — consider risks
A bright three-bedroom first-floor apartment set within a handsome Victorian terrace, freshly decorated and ready to move into. The flat spans approximately 813 sq ft, with high ceilings, a bay-windowed reception and period features that give immediate character and curb appeal.

Practical strengths include a long lease (161 years), mains gas heating with radiators, double glazing, and a small private garden. The location is a strong selling point: close to Bellenden Village, Peckham Rye Park and both East Dulwich and Peckham Rye stations, making commuting and local life straightforward.

Buyers should note this is a chain-free, leasehold property in a high-crime, deprived area; purchasers must factor local area risks into their decision. The building is solid brick with assumed lack of wall insulation and only one bathroom for three bedrooms. Council tax is affordable and broadband/mobile connectivity are good.

This home suits first-time buyers or couples who want period character without major works, or investors seeking a well-located rental asset. It’s presented to move into now but also offers scope for modest modernization to increase value.

Property Details

Brochure Descriptions

Image Descriptions

Floorplan Description

Rooms

Textual Property Features

Target Audience

AI Tags

Detected Visual Features

EPC Details

Nearby Schools

Nearest Bars And Restaurants

,,,,}

Nearest General Shops

,,}

Nearest Grocery shops

,,}

Nearest Supermarkets

,,}

Nearest Religious buildings

,,}

Nearest Medical buildings

,,,}

Nearest Airports

,,}

Nearest Leisure Facilities

,,,,}

Nearest Tourist attractions

,,}

Nearest Train stations

,,,,}

Nearest Bus stations and stops

,,,,}

Nearest Hotels

,,}

Tags

Local Market Stats

AirBnB Data

Similar Properties

Meta

High Res Images

Compatible Images

Low res Images

Thumbnails

Raw Images

High Res Floorplan Images

Compatible Floorplan Images

Low res Floorplan Images

FloorplanImages Thumbnail

Raw Floorplan Images