**Standout Features:**
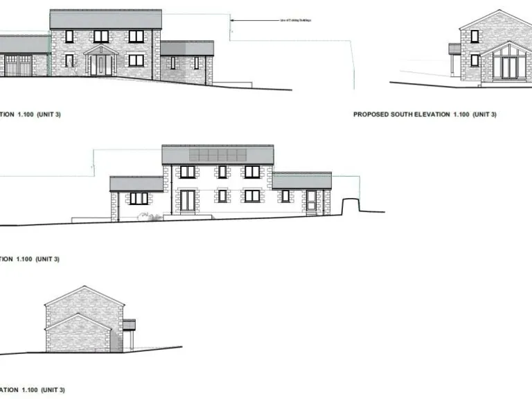
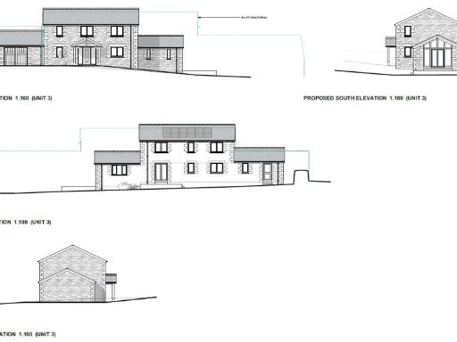
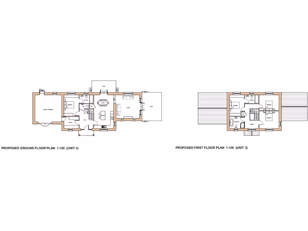
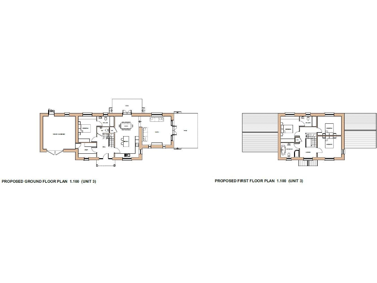
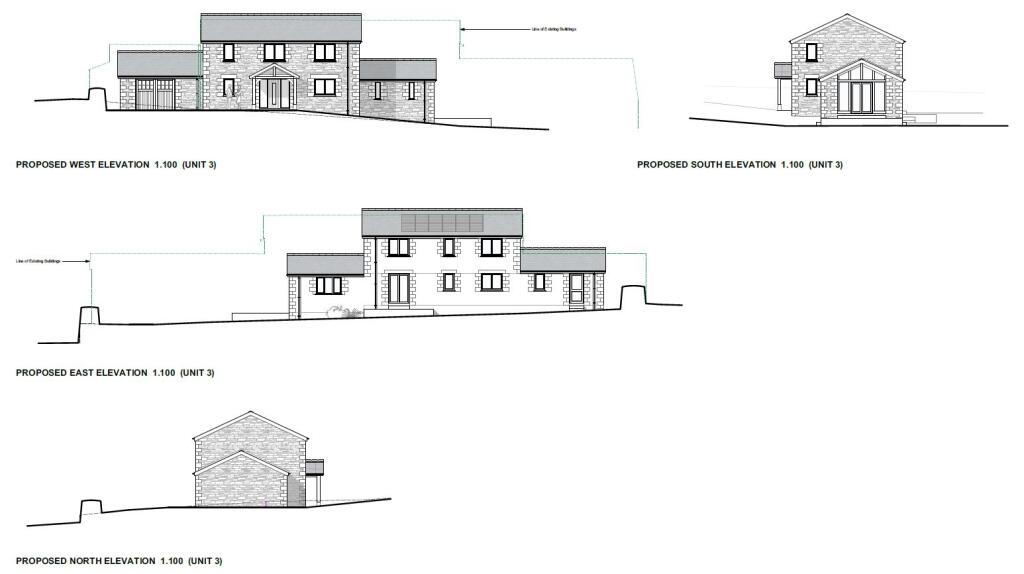
- **Development Potential**: Planning consent for three detached dwellings; drawing plans available.
- **Scenic Location**: Expansive views over surrounding farmland and countryside.
- **Rural Setting**: Situated on a quiet, no-through road in the hamlet of Burras, providing peace and privacy.
- **Versatile Barn**: Includes a detached stone barn ideal for conversion or alternative use, subject to planning.
- **Large Plot**: Approximately 0.64 acres of land.
- **Access to Amenities**: Close proximity to Helston, Redruth, and the port city of Falmouth.
**Summary Description:**
Discover the vast potential of this picturesque development site in Burras, Wendron. Set within a tranquil rural setting, the property is ideally positioned on 0.64 acres with planning permission in place for three beautifully designed detached homes, offering scenic views of lush countryside perfect for buyers looking to embrace serene living. The traditional stone barn on the plot provides additional potential for conversion or alternative uses, allowing for imaginative renovation opportunities.
While the rural charm of this site offers a wonderful retreat, it’s also conveniently located just minutes away from Helston and Redruth, ensuring easy access to various amenities and services. With low crime rates and the allure of scenic coastal walks nearby, this is an exceptional opportunity for first-time buyers or investors seeking a viable project in a cherished community. Don’t miss out on your chance to shape your dream homes in this idyllic locale. Envision your future here, as exclusive opportunities like this are in high demand and may not last long.
Plot for sale in Trevarrick, Gorran, St. Austell, PL26 — £450,000 • 1 bed • 1 bath • 3000 ft²
Plot for sale in Carnkie, Helston - Plot with countryside views , TR13 — £175,000 • 1 bed • 1 bath
Barn for sale in Leedstown, Hayle, TR27 — £550,000 • 1 bed • 1 bath
Land for sale in Exciting opportunity, Near Trannack, TR13 — £250,000 • 1 bed • 1 bath
Land for sale in Crowlas, Penzance, TR20 — £265,000 • 1 bed • 1 bath
Plot for sale in Scorrier Road, Redruth- Development site for three houses, TR16 — £240,000 • 1 bed • 1 bath






































