**Standout Features:**
- Level plot of 1.73 acres
- Planning permission for barn conversion into a one-bedroom home (PA24/02004)
- Scenic countryside views, including Stithians Reservoir
- Independent entrance to the plot
- Ideal for development or agricultural activities
**Potential Considerations:**
- Requires renovation of the existing structure
- Located in a rural setting, may have limited amenities on-site
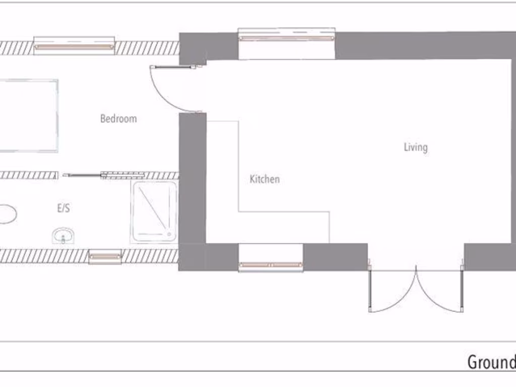
Nestled in the serene countryside of Carnkie, Helston, this generous 1.73-acre plot presents an exciting opportunity for those looking to create their own rural retreat. With planning permission in place for a barn conversion to a one-bedroom dwelling, this property provides the foundation for a cozy home with the potential for further expansion. Enjoy breathtaking views over the stunning Cornish landscape and Stithians Reservoir—perfect for nature lovers and outdoor enthusiasts alike.
This peaceful location offers an independent entrance and is just a short drive from the village of Stithians, where you'll find essential amenities such as shops, a post office, and recreational clubs. Although the existing structure requires renovation, the expansive outdoor space and picturesque surroundings promise a tranquil lifestyle. With low crime rates, excellent mobile signal, and fast broadband speeds, this plot is ideal for first-time buyers or investors aiming to develop a unique countryside residence. Don’t miss out on this rare opportunity to own a slice of Cornish paradise.
Land for sale in Exciting opportunity, Near Trannack, TR13 — £250,000 • 1 bed • 1 bath
Plot for sale in Burras, Wendron, Helston, TR13 — £595,000 • 1 bed • 1 bath • 538 ft²
Land for sale in Exciting opportunity, Near Trannack, TR13 — £50,000 • 1 bed • 1 bath
Plot for sale in Trelill, Trewennack, TR13 — £195,000 • 3 bed • 4 bath
Land for sale in Carnmeal, Breage, Helston, TR13 — £85,000 • 1 bed • 1 bath
Land for sale in Lower Carnkie, Redruth, TR16 — £50,000 • 1 bed • 1 bath


































