Private outdoor space and excellent links for first-time buyers or investors.
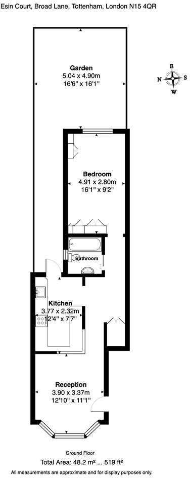
- Ground-floor one-bedroom apartment, 519 sq ft
- Private garden — unusual for this size
- Bosch integrated kitchen appliances included
- Share of freehold; very long lease (981 years)
- EPC rating C; mains gas boiler and radiators
- Permit/off-street parking available
- Recorded crime level: very high in the area
- Service charge approx £1,000 (details unconfirmed)
This well-presented ground-floor one-bedroom flat offers 519 sq ft of practical living with a private garden—rare for this size and location. The kitchen includes Bosch integrated appliances and the property benefits from double glazing (post-2002) and mains gas central heating, making it comfortable and efficient for daily life. Share of freehold with an exceptionally long lease gives ownership security.
Positioned for commuters, Tottenham Hale and Seven Sisters stations are within a short walk, with central London around 25 minutes away. Broadband speeds are fast and mobile signal is excellent, supporting remote working and streaming. Nearby Markfield Park and local shops provide green space and everyday convenience.
Be clear about local context: recorded crime levels in the area are very high and the neighbourhood is classified as deprived, which may concern some buyers and affect resale for certain markets. Service charge is around £1,000 (uncertain) and council tax band is Haringey B. EPC rating C.
This apartment suits a first-time buyer or investor seeking a low-maintenance central location with good transport links and a private outdoor space. The flat is move-in ready for most buyers, though those prioritising quiet, low-crime suburbs may prefer a different area.
1 bedroom flat for sale in Hamilton Close, London, N17 — £280,000 • 1 bed • 1 bath • 540 ft²
2 bedroom ground floor flat for sale in Antill Road, London, N15 — £415,000 • 2 bed • 1 bath • 533 ft²
1 bedroom flat for sale in Hamilton Close, London, N17 — £260,000 • 1 bed • 1 bath • 560 ft²
2 bedroom apartment for sale in Antill Road, London, N15 — £415,000 • 2 bed • 1 bath • 533 ft²
2 bedroom flat for sale in Carew Road, Tottenham N17 — £450,000 • 2 bed • 1 bath • 678 ft²
1 bedroom maisonette for sale in Hamilton Close, London, N17 — £290,000 • 1 bed • 1 bath • 535 ft²


































