Large plot with strong school links and extension potential.
Four bedrooms across flexible layout, currently three self-contained flats
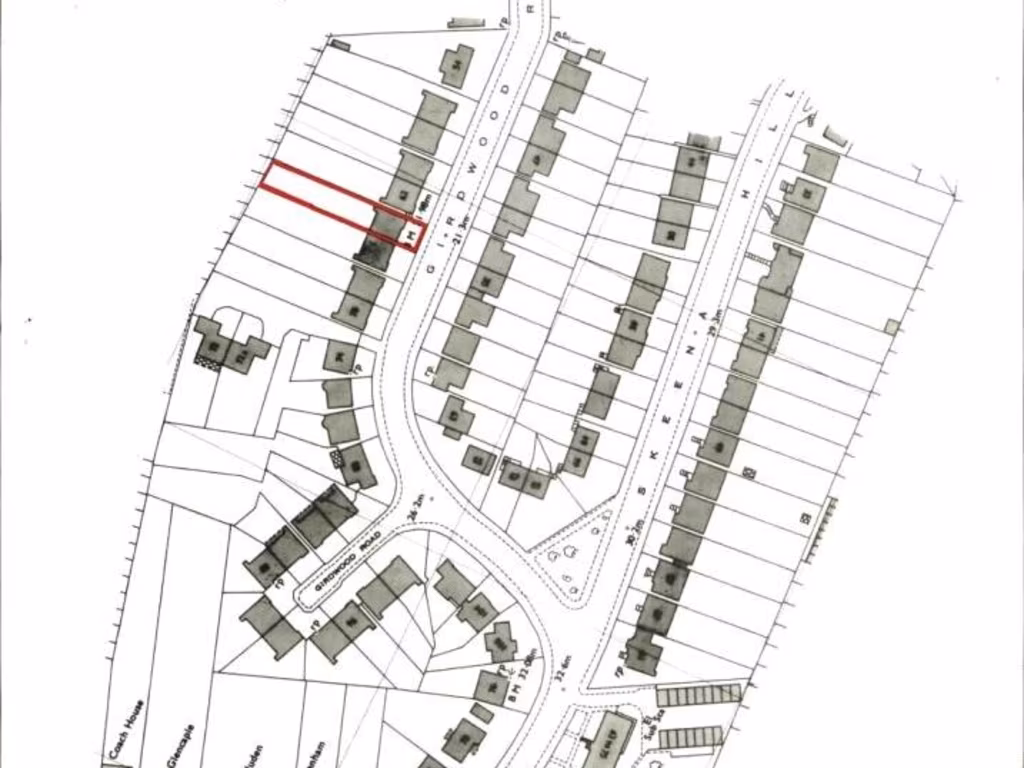
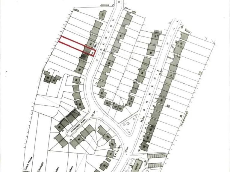
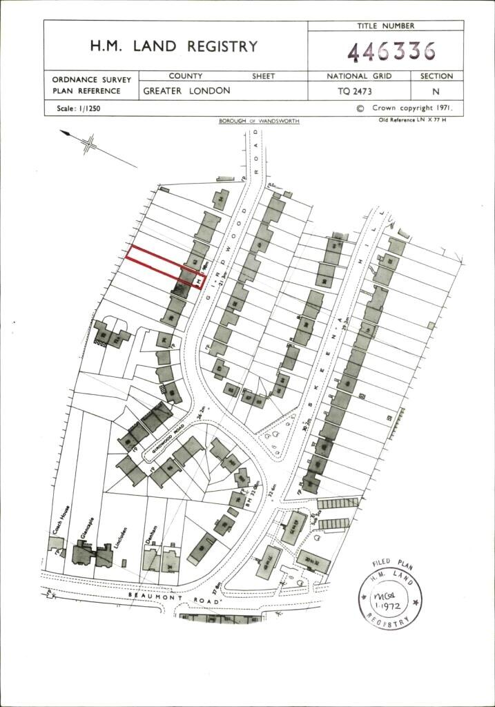
A substantial 1930s semi-detached house on Girdwood Road, arranged currently as three self-contained flats and offering a flexible layout for either family living or rental income. The plot includes a long 116-foot garden, off-street parking with a garage, and scope to extend into the loft, rear and garage (STPP).
The property is unmodernised and will need a full renovation; notable issues include electric storage heating, secondary glazing only, and solid brick walls likely without cavity insulation. The roof and general upkeep require attention; the house is being sold as a fixer-upper and will suit buyers prepared for a refurbishment programme.
For families, the location is strong with several highly rated schools nearby, fast broadband, and Southfields Underground within easy reach. For investors, the current three-flat arrangement presents immediate rental potential, or the space can be reconfigured back to a spacious four-bedroom family home once renovated.
Potential buyers should factor in refurbishment costs, possible planning consents for extensions, and relatively high council tax. When upgraded, the property offers significant uplift potential given the plot size, parking and convenient south-west London location.
5 bedroom semi-detached house for sale in Sutherland Grove, SW18 — £1,375,000 • 5 bed • 2 bath • 1818 ft²
4 bedroom house for sale in Skeena Hill, London, SW18 — £1,350,000 • 4 bed • 2 bath • 1942 ft²
4 bedroom terraced house for sale in Elsenham Street, London, SW18 — £1,350,000 • 4 bed • 2 bath • 1567 ft²
4 bedroom semi-detached house for sale in Rosedene Avenue, London, SW16 — £850,000 • 4 bed • 2 bath • 2115 ft²
5 bedroom semi-detached house for sale in Arcadian Place, Southfields, London, SW18 — £1,700,000 • 5 bed • 4 bath • 2598 ft²
3 bedroom terraced house for sale in Galgate Close, London, SW19 — £630,000 • 3 bed • 1 bath • 807 ft²






























































































