Large garden plot near top schools and strong transport links.
Large five-bedroom layout with flexible ground-floor study/bedroom
Sizeable rear garden with large plot and outhouse/home-office potential
Off-street parking; driveway and front garden need landscaping
Period features and bright rooms throughout; good natural light
Only two bathrooms for five bedrooms — may need reconfiguration
Solid brick walls with no known insulation; potential energy upgrades required
Double glazing present but installation date unknown
Located close to top-rated schools and good transport links
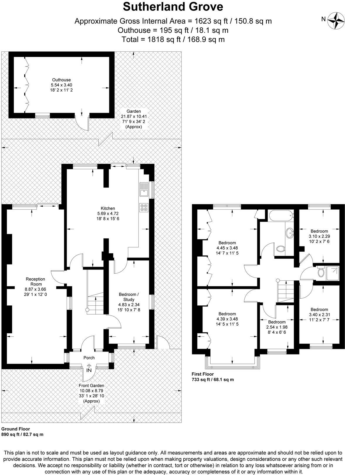
Set back from the road between Putney and Southfields, this 1930s semi-detached house offers substantial family space across approximately 1,818 sq ft. The ground floor layout includes an expansive living room with garden access, a separate kitchen/dining area plus a large study/additional bedroom — useful for home working or flexible family use. Upstairs are five well-proportioned bedrooms served by a family bathroom and separate WC.
Outside, the property sits on a large plot with a sizeable garden, off-street parking and an outhouse that could serve as a home office. The house retains period character and is bright throughout, while its location places it within walking distance of excellent primary and secondary schools, local shops and Tube and bus connections.
Practical considerations: the house was built mid-20th century with solid brick walls (no known cavity insulation), double glazing of unknown age and mains gas central heating via boiler and radiators. The front garden and driveway need landscaping and the accommodation will suit buyers willing to carry out updating and possible insulation improvements. There are only two bathrooms for five bedrooms, which is a material factor for larger families.
This property offers clear scope for improvement and value addition — ideal for an owner-occupier wanting to create a spacious family home, or an investor seeking rental demand in a popular school catchment area.
5 bedroom house for sale in Sutherland Grove, London, SW18 — £1,250,000 • 5 bed • 3 bath • 2001 ft²
4 bedroom house for sale in Skeena Hill, London, SW18 — £1,350,000 • 4 bed • 2 bath • 1942 ft²
6 bedroom semi-detached house for sale in Earlsfield Road, London, SW18 — £3,250,000 • 6 bed • 3 bath • 4000 ft²
5 bedroom semi-detached house for sale in Chartfield Avenue, Putney, London, SW15 — £2,350,000 • 5 bed • 3 bath • 2883 ft²
5 bedroom semi-detached house for sale in Effra Road, London, SW19 — £1,650,000 • 5 bed • 3 bath • 1727 ft²
4 bedroom apartment for sale in Girdwood Road, London, SW18 — £1,000,000 • 4 bed • 3 bath • 1610 ft²






















































