Chain-free family house with large garden and extension potential near top schools.
Chain-free four-bedroom semi-detached family home
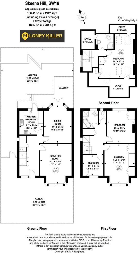
A substantial four-bedroom semi-detached family home in sought-after Southfields, offered chain-free and ready for a sympathetic modernisation. The property retains attractive Tudor/Edwardian character — bay windows, high ceilings and a feature fireplace — while providing a large private garden and raised terrace ideal for family life and entertaining.
Measured at approximately 1,942 sq ft (including eaves), the layout includes a bay-fronted sitting room, dining room opening to the terrace, kitchen with breakfast space, three first-floor bedrooms, family bathroom and a second-floor double bedroom with shower room and eaves storage. Double glazing was installed after 2002 and heating is by mains-gas boiler and radiators.
Key strengths are the location close to highly regarded primary and secondary schools (including two Ofsted Outstanding), easy access to the A3, and clear potential to extend subject to planning permission — a real opportunity to increase living space and value. The property sits in a very affluent area with fast broadband and excellent mobile signal.
Buyers should note this house needs renovation and updating throughout; walls are solid brick with assumed no cavity insulation and the council tax band is relatively high. These are tangible issues but also represent scope for energy-efficiency improvements and value-adding refurbishment or extension (STPP).
3 bedroom semi-detached house for sale in Girdwood Road, London, SW18 — £1,250,000 • 3 bed • 1 bath • 1373 ft²
4 bedroom terraced house for sale in Trentham Street, London, SW18 — £1,350,000 • 4 bed • 2 bath • 1317 ft²
4 bedroom house for sale in Balvernie Grove, London, SW18 — £1,250,000 • 4 bed • 2 bath • 1432 ft²
4 bedroom semi-detached house for sale in Sutherland Grove, Southfields, London, SW18 — £1,150,000 • 4 bed • 1 bath • 1348 ft²
3 bedroom terraced house for sale in Elsenham Street, London, SW18 — £1,150,000 • 3 bed • 1 bath • 1546 ft²
4 bedroom terraced house for sale in Elsenham Street, London, SW18 — £1,350,000 • 4 bed • 2 bath • 1567 ft²






































