Spacious three-bedroom family home with west-facing garden and double garage.
Detached three-bedroom home with sweeping countryside views
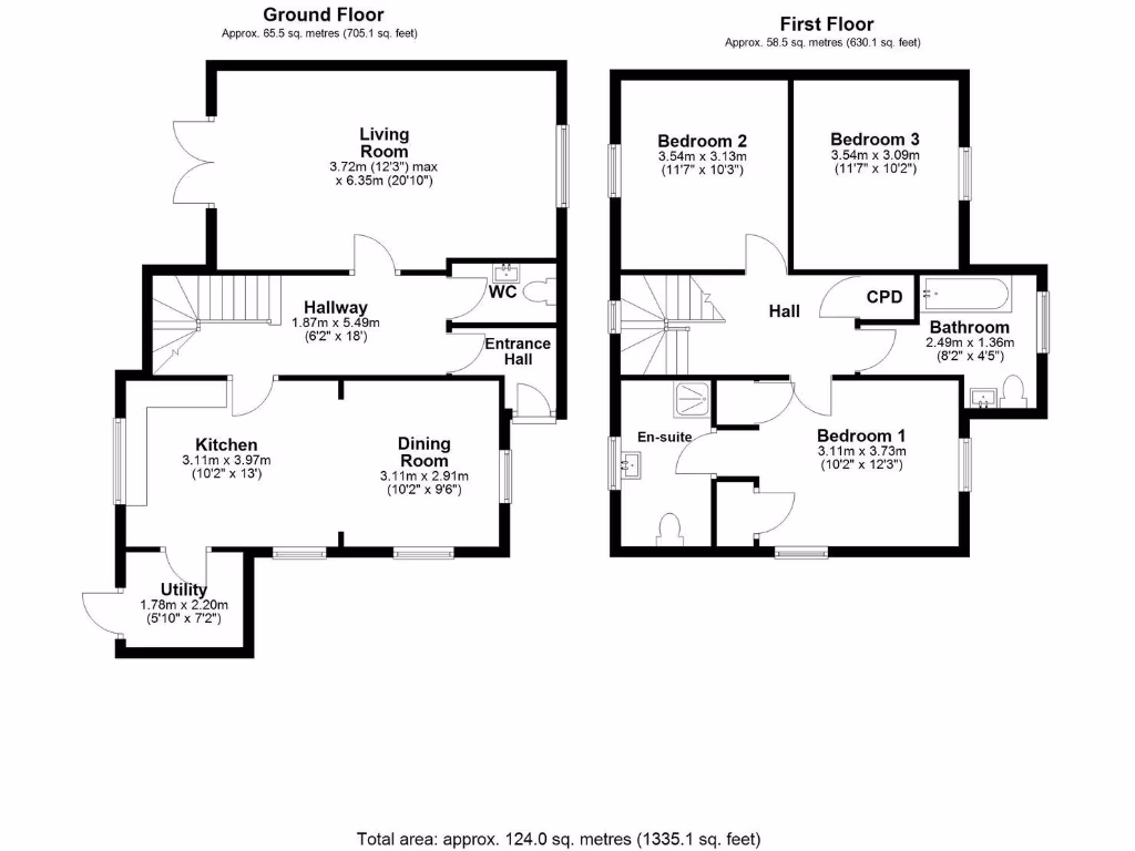
Set in striking countryside on the edge of Littlebury, this detached three-bedroom home offers roomy family living with sweeping views. A welcoming porch and broad hallway lead to a light sitting room with a log burner and French doors onto the west-facing garden — an inviting space for afternoon sun and relaxing evenings. The large kitchen/diner is well suited to everyday family life and entertaining, and a separate utility and cloakroom add practical convenience.
Upstairs are three double bedrooms, including a principal suite with en suite shower room, plus a modern family bathroom and a partly boarded loft for extra storage. The double garage (with power and lighting) and extensive driveway parking for six-plus cars give excellent storage and vehicle space, ideal for families with multiple drivers or hobby needs. Broadband speeds are fast and mobile signal is excellent, supporting home working or streaming.
This property sits in a sought-after village close to Saffron Walden and within easy reach of Audley End station and the M11, combining peaceful countryside life with commuter access. Notable points to check: the property's tenure is not specified in the details provided and should be confirmed, and local crime levels are average. A buyer survey is recommended to confirm condition and services before purchase.
3 bedroom detached house for sale in Littlebury Heights Strethall Road, Saffron Walden, CB11 — £675,000 • 3 bed • 1 bath • 1146 ft²
3 bedroom link detached house for sale in Peggys Walk, Littlebury, CB11 — £485,000 • 3 bed • 2 bath • 1091 ft²
4 bedroom detached house for sale in Peggys Walk, Littlebury, SAFFRON WALDEN, CB11 — £675,000 • 4 bed • 3 bath • 1255 ft²
4 bedroom detached house for sale in Peggys Walk, Littlebury, Nr Saffron Walden, Essex, CB11 — £645,000 • 4 bed • 2 bath • 1550 ft²
4 bedroom semi-detached house for sale in High Street, Littlebury, Saffron Walden, CB11 — £895,000 • 4 bed • 2 bath • 1996 ft²
4 bedroom detached house for sale in Kents Yard, Littlebury, Saffron Walden, Essex, CB11 — £650,000 • 4 bed • 2 bath • 1419 ft²


































































