**Standout Features:**
- Grade II listed property with traditional English architecture
- Four spacious bedrooms and three reception rooms
- Large kitchen/breakfast room with modern amenities
- Adjoining barn with workshop, utility space, and studio
- Generous off-street parking with electric gates
- Beautifully maintained garden ideal for family activities
- Chain-free sale with potential for further renovations (subject to approval)
**Potential Concerns:**
- Listed status may present challenges for renovations
- Average council tax in an affluent area
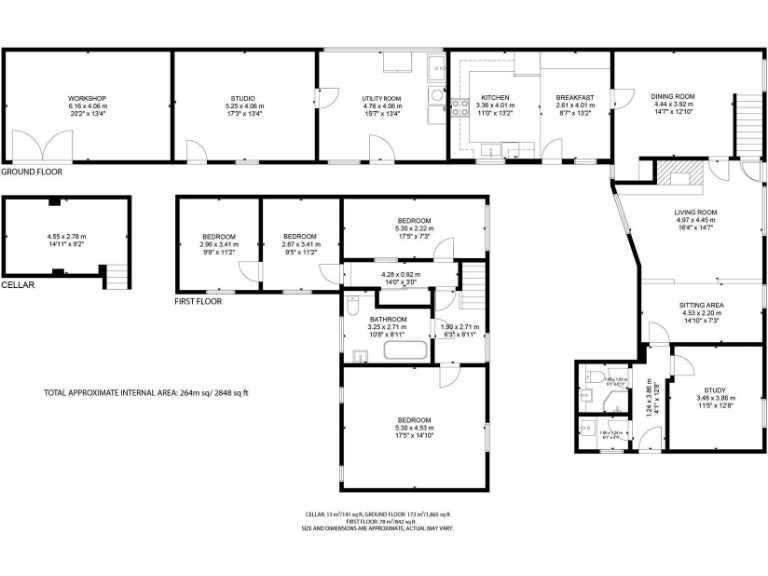
Nestled in the picturesque village of Littlebury, this charming Grade II listed semi-detached home offers a delightful blend of historical character and modern living. Spanning an impressive 1,996 square feet, the spacious layout features four well-proportioned bedrooms and three inviting reception rooms decorated with rustic beams, cozy fireplaces, and an abundance of natural light. The heart of the home is the generous kitchen/breakfast area, complete with high-quality fixtures and ample storage, making it an ideal gathering place for family and friends.
Outside, the property continues to impress with a beautifully landscaped garden, a versatile adjoining barn with a workshop, and added security features like off-street parking behind electric gates. Perfect for families or anyone seeking a tranquil countryside lifestyle, this home combines charm, convenience, and ample space for both relaxation and productivity. Don’t miss the chance to make this unique property your own, as opportunities like this are fleeting in such a highly sought-after area.
5 bedroom detached house for sale in Linton Road, Hadstock, Cambridge, CB21 — £925,000 • 5 bed • 1 bath • 2476 ft²
4 bedroom semi-detached house for sale in High Street, Littlebury, Nr Saffron Walden, Essex, CB11 — £1,195,000 • 4 bed • 2 bath • 2750 ft²
3 bedroom end of terrace house for sale in Walden Road, Littlebury, CB11 — £490,000 • 3 bed • 2 bath • 1177 ft²
4 bedroom cottage for sale in High Street, Littlebury, CB11 — £600,000 • 4 bed • 2 bath • 1564 ft²
3 bedroom cottage for sale in High Street, Littlebury, Saffron Walden, CB11 — £350,000 • 3 bed • 1 bath • 1255 ft²
5 bedroom detached house for sale in High Street, Littlebury, Saffron Walden, Essex, CB11 — £875,000 • 5 bed • 2 bath • 1980 ft²






































































































