Bright two-bedroom apartment with lift access near Clapham transport links.
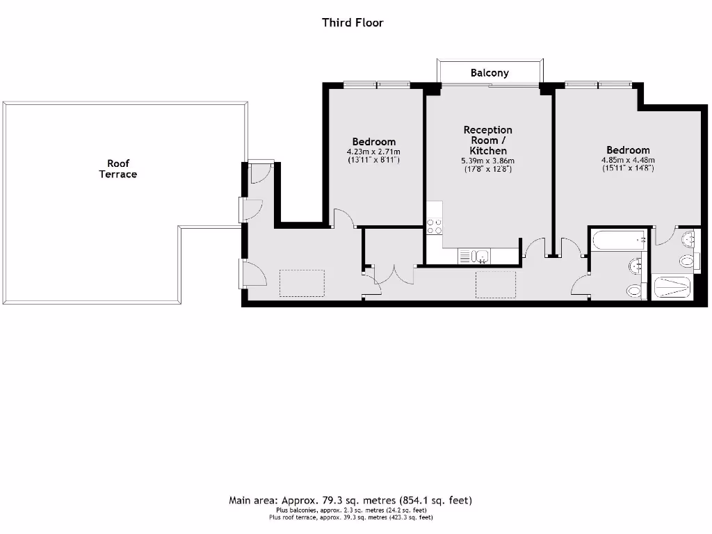
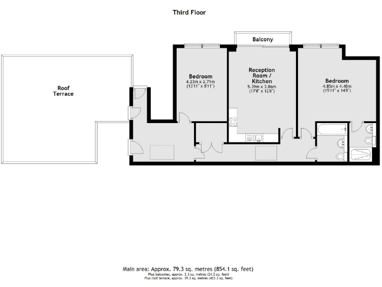
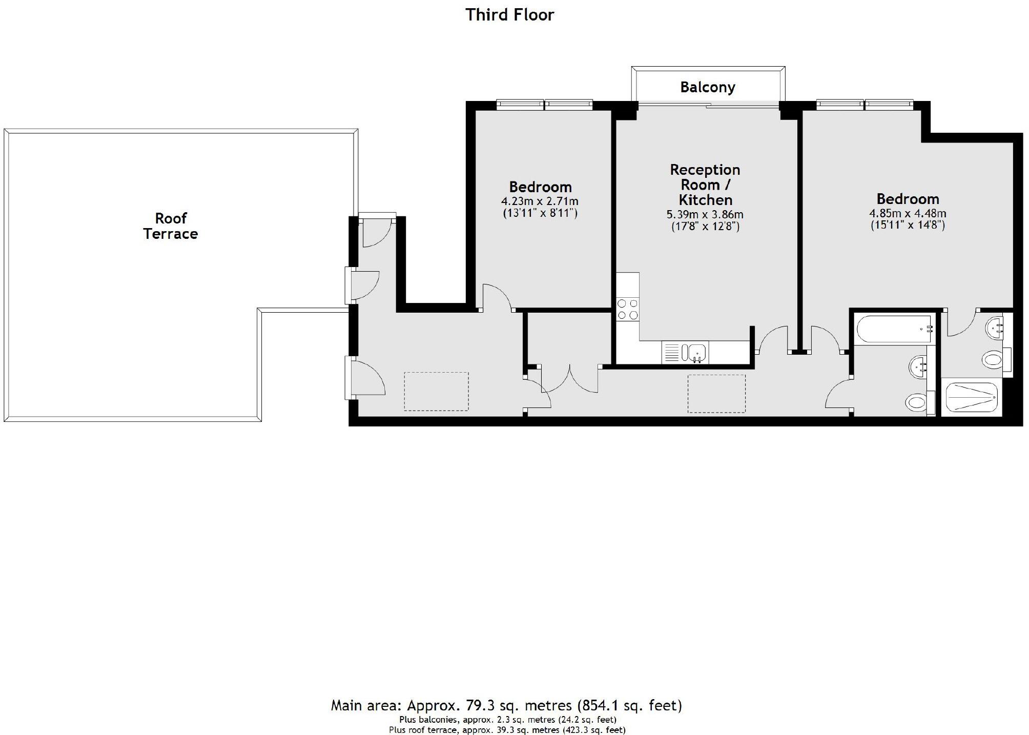
Private oversized roof terrace with excellent outdoor space
A contemporary penthouse with generous private roof terrace and direct lift access, arranged as an open-plan reception with a modern fitted kitchen and two double bedrooms. Large glazed doors and wood floors give strong natural light and create a bright, comfortable living space suited to city living.
The gated development is well maintained and provides landscaped communal gardens and secure entry. The apartment is chain-free and comes with a long lease (105 years), making it straightforward to purchase. Fast broadband and excellent mobile signal support home working; Clapham North and Stockwell stations are an easy walk for quick central London access.
Buyers should note the property carries an annual service charge of about £3,542 and a small ground rent of £200. Council tax is above average and the neighbourhood records higher-than-average crime levels and local area deprivation — factors worth considering for families and some investors.
Overall this property works well as a first home or rental investment for purchasers who value outdoor space, transport links and a modern finish, while accepting the leasehold costs and local area challenges. Internal room sizes are average for a modern two-bedroom, but the roof terrace provides exceptional additional outdoor amenity.
2 bedroom flat for sale in Triangle Place, London, SW4 — £975,000 • 2 bed • 2 bath • 1034 ft²
2 bedroom flat for sale in Wandsworth Road, Lambeth, London, SW8 — £780,000 • 2 bed • 2 bath • 819 ft²
3 bedroom penthouse for sale in The Penthouse, New Park Road, London, SW2 — £1,400,000 • 3 bed • 3 bath • 1800 ft²
2 bedroom flat for sale in Hotspur Street, Kennington, SE11 — £895,000 • 2 bed • 2 bath • 903 ft²
2 bedroom penthouse for sale in This Space, Nine Elms, London, SW8 — £780,000 • 2 bed • 1 bath • 819 ft²
4 bedroom flat for sale in Courtenay House, SW2 — £1,400,000 • 4 bed • 3 bath • 1864 ft²










































