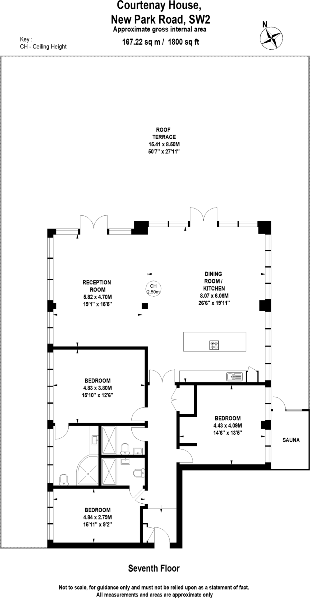
Approx. 1,800 sq ft interior; huge circa 2,000 sq ft roof terrace
Striking penthouse set across an expansive 1,800 sq ft interior with a rare private roof terrace of around 2,000 sq ft. The 40ft-wide open-plan living, dining and kitchen space is designed for modern entertaining and everyday family life, with large windows capturing sweeping views across London.
Three double bedrooms each have a bathroom, including a principal suite with en-suite and generous storage. Contemporary finishes and well-maintained presentation mean the apartment is largely move-in ready. Practical extras include private off-street parking, excellent mobile signal and fast broadband — useful for remote working or streaming.
Buyers should note material costs of ownership: the property is leasehold, carries an above-average service charge (£7,700pa) and a small ground rent (£250pa). Council tax is described as quite expensive. The wider area is inner-city cosmopolitan with above-average crime levels; sensible security and lifestyle considerations are advised.
This penthouse will suit buyers seeking a high-impact London home with exceptional outdoor space — ideal for those who value skyline views, alfresco entertaining and generous internal scale. It also offers clear investment appeal in a well-connected SW2 location, though ongoing running costs and tenure should be factored into any purchase decision.
3 bedroom flat for sale in New Park Road, SW2 — £1,400,000 • 3 bed • 3 bath • 1664 ft²
2 bedroom flat for sale in Triangle Place, London, SW4 — £975,000 • 2 bed • 2 bath • 1034 ft²
2 bedroom penthouse for sale in Hardwicks Square, London, SW18 — £1,250,000 • 2 bed • 2 bath • 1878 ft²
2 bedroom penthouse for sale in Clapham High Street, SW4 — £765,000 • 2 bed • 2 bath • 922 ft²
2 bedroom flat for sale in Long Lane, London Bridge, SE1 — £1,000,000 • 2 bed • 2 bath • 1043 ft²
2 bedroom flat for sale in Streatham High Road, Streatham, SW16 — £550,000 • 2 bed • 2 bath • 900 ft²






































































