Generous plot, private garden and scope to modernise in desirable Shrewsbury.
Large private rear garden, not overlooked
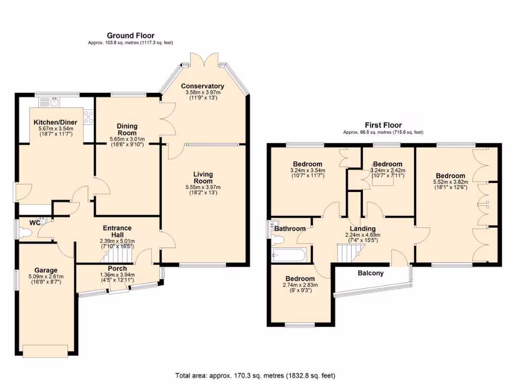
Four well-proportioned bedrooms for family living
Kitchen/diner with scope for open-plan conversion
Garage with internal access and multiple driveway spaces
Conservatory adds extra relaxed living space
Family bathroom updated recently; only one main bathroom
Built 1967–75 — some areas need modernisation
Council tax above average, subject to verification
Set on a generous, private plot in one of Shrewsbury’s most sought-after streets, this detached four-bedroom home suits growing families seeking space and scope. The layout delivers separate living, dining and a conservatory that opens onto a large rear garden — not overlooked — offering plenty of outdoor play and gardening room.
The kitchen/diner is bright and serviceable with farmhouse styling and garden outlook; it could be reconfigured into a contemporary open-plan family hub subject to your design choices. Upstairs are four well-proportioned bedrooms and a recently updated family bathroom — practical for family life but with scope to modernise further to personal taste.
Practical advantages include a garage with internal access, driveway parking for multiple vehicles, mains gas central heating and double glazing installed post-2002. The plot and layout also provide clear potential for extension or improvement, subject to planning, which will appeal to buyers wanting to add value.
Material points to note: the house dates from c.1967–75 and, while fundamentally sound, it will benefit from modernisation in parts to reach contemporary standards. Council tax is above average and there is only one principal bathroom, which could be a consideration for larger families. Overall, this property offers a long-term family setting in a very affluent, well-connected neighbourhood with excellent local schools and easy access to Shrewsbury town centre.
4 bedroom detached house for sale in Shrewsbury, Shrewsbury, SY3 — £469,995 • 4 bed • 2 bath • 1551 ft²
4 bedroom detached house for sale in 18 Grangefields, Shrewsbury, SY3 9DE, SY3 — £500,000 • 4 bed • 3 bath • 1599 ft²
4 bedroom detached house for sale in 25 Fairlawn Avenue, Shrewsbury, SY3 9QQ, SY3 — £500,000 • 4 bed • 1 bath • 1882 ft²
3 bedroom link detached house for sale in Westwood Drive, Shrewsbury, SY3 — £425,000 • 3 bed • 1 bath • 1106 ft²
4 bedroom detached house for sale in 70 Tilstock Crescent, Shrewsbury, SY2 6HQ, SY2 — £425,000 • 4 bed • 2 bath • 1776 ft²
4 bedroom detached house for sale in Latchford Lane, Berwick Grange, Shrewsbury, Shropshire, SY1 — £410,000 • 4 bed • 2 bath • 1491 ft²


















































































