Bright flexible living with south-facing garden and two bathrooms.
Extended end-terrace with large rear reception room/annexe space
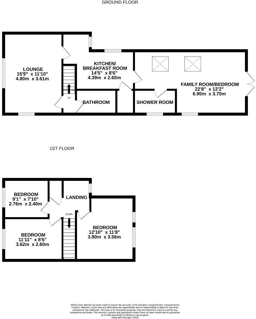
This extended three-bedroom end-terrace in Kingsley offers flexible family living across two floors. The rear extension provides a large, bright reception room previously used as an annexe; it now functions as an open-plan dining/living space with skylights and double doors onto a southerly-facing decked terrace. A re-fitted kitchen, separate refitted bathroom and an additional wet room on the ground floor add convenience for households or multi-generational use.
Practical features include gas central heating, uPVC Georgian-style double glazing and a small front garden with side pedestrian access to the private rear garden. The property is an average-sized family home (approx 1,054 ft²) on a small plot, with solid brick walls typical of a 1930s build and no confirmed insulation in the cavity. Council tax is low and there is no flood risk recorded.
Buyers should note the wider area scores as deprived with higher local crime levels and predominantly social-renting households; this may affect long-term resale or rental values. Parking is limited — a garage is recorded but on-street parking is otherwise typical. The house is presented in good external order but older construction and assumed uninsulated walls mean buyers should budget for energy-efficiency improvements if required.
Overall this home suits first-time buyers or investors seeking a flexible, ready-to-live-in property with scope for further upgrading. The southerly garden and the large rear reception room are clear value drivers; evaluate the local area factors and potential insulation improvements before committing.
3 bedroom terraced house for sale in Kingsland Avenue, Kingsthorpe, Northampton NN2 — £230,000 • 3 bed • 1 bath • 804 ft²
3 bedroom terraced house for sale in Carlton Road, Kingsley, Northampton NN2 — £255,000 • 3 bed • 1 bath • 803 ft²
3 bedroom terraced house for sale in Kingsley Road, Kingsley, Northampton NN2 — £265,000 • 3 bed • 1 bath • 949 ft²
3 bedroom end of terrace house for sale in Bankside | Links View | NN2 — £250,000 • 3 bed • 2 bath • 883 ft²
3 bedroom end of terrace house for sale in Kingsland Avenue, Kingsthorpe, Northampton NN2 — £300,000 • 3 bed • 2 bath • 960 ft²
3 bedroom detached house for sale in North Western Avenue, Kingsthorpe, Northampton NN2 — £485,000 • 3 bed • 2 bath • 1253 ft²






























































