Rare rural building plot with planning consent and panoramic countryside outlooks.
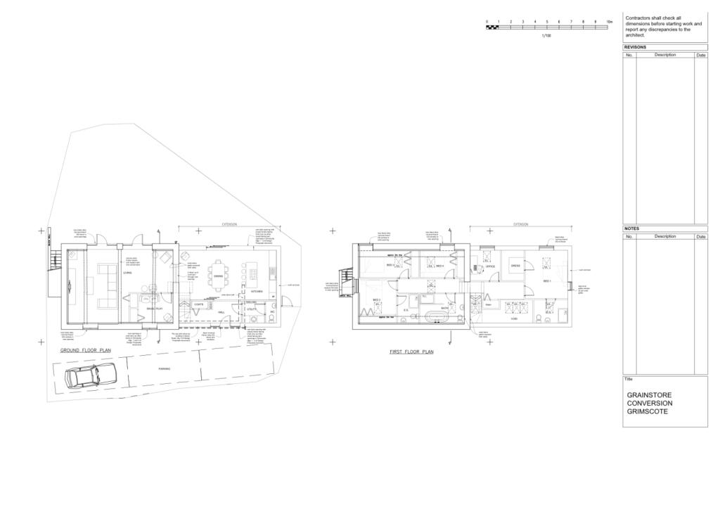
Full Planning Approval granted 22 July 2025 for 223.6 m2 (2,406 ft2)
Historic ironstone barn dating from 1700 with period features
Open countryside views; enclosed rear/side courtyard and small garden
Freehold plot in an affluent, very low crime rural hamlet
Building is derelict/semi-ruinous; likely needs full rebuild or full refurbishment
Access via single-track lane; may restrict construction access
Services provision unknown — mains connections and drainage to be confirmed
No flood risk; fast broadband and average mobile signal
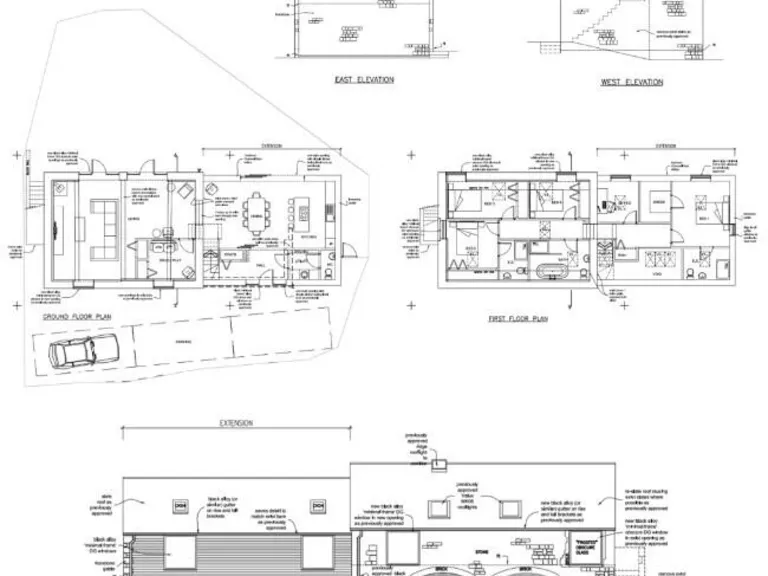
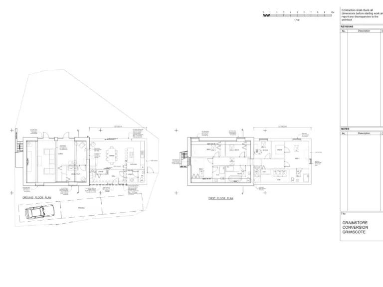
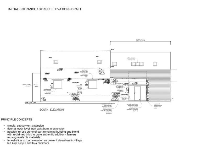
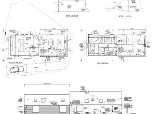
Set within the hamlet of Grimscote, this ironstone barn dates from the 1700s and benefits from Full Planning Approval granted 22 July 2025 for conversion to a 223.6 m2 (2,406 ft2) residential dwelling. The plot enjoys open countryside outlooks, a small enclosed yard/garden, very low local crime and fast broadband — strong location attributes for a rural redevelopment scheme.
The building is presently derelict/semi-ruinous and will require full refurbishment or potential demolition and rebuild to realise the consented dwelling. Essential works and services provision (mains connections, drainage) will materially affect costs and are not specified; the access is via a single-track/estate lane, which could constrain construction traffic and deliveries.
This freehold plot is suited to a developer, investor, or experienced self-builder seeking a period conversion with planning in place. The site’s primary value drivers are the approved residential consent, attractive rural setting, and generous internal floor area once completed. Buyers should factor in restoration, services works and possible site preparation when assessing viability.
Plot for sale in Development Opportunity, The Granary, Potterspury, Towcester, NN12 — £360,000 • 1 bed • 1 bath • 2406 ft²
Barn conversion for sale in Whittlebury, Northamptonshire, NN12 — £465,000 • 1 bed • 1 bath • 3000 ft²
5 bedroom detached house for sale in Steeple Lane, Little Brington, Northampton, NN7 — £1,750,000 • 5 bed • 5 bath • 4000 ft²
3 bedroom barn conversion for sale in Blakesley, Towcester, Northamptonshire, NN12 — £250,000 • 3 bed • 2 bath
6 bedroom detached house for sale in Steeple Lane Little Brington, Northampton, NN7 4HN, NN7 — £1,750,000 • 6 bed • 5 bath • 4738 ft²
5 bedroom detached house for sale in Murcott, Long Buckby, NN6 7QR, NN6 — £1,200,000 • 5 bed • 1 bath • 5418 ft²






















































