Substantial former mill with yard — ideal for developer or investor in Bramley.
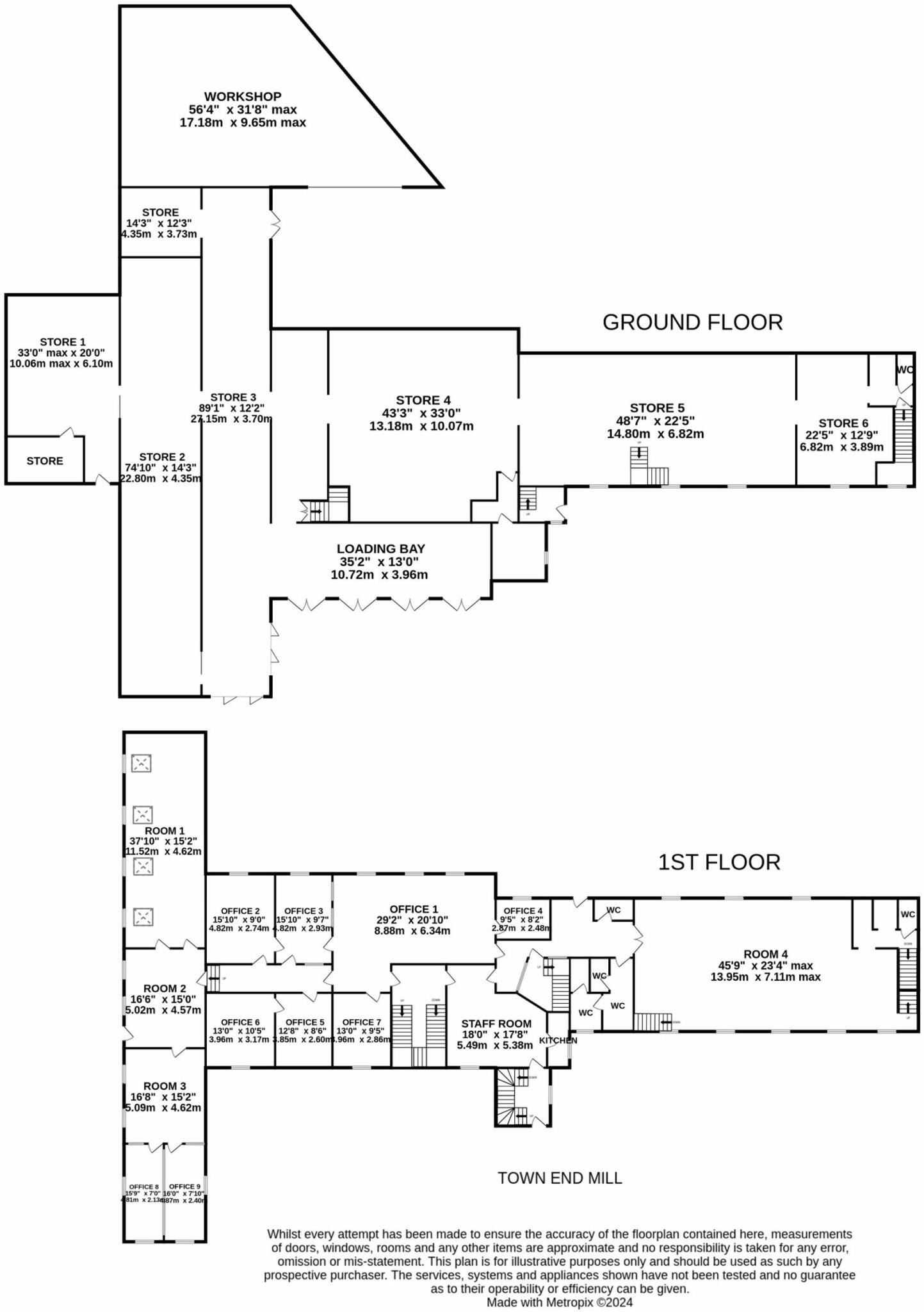
- 17,940 sq ft across three storeys with high ceilings and large windows
- Site of 0.65 acres with substantial gated yard and parking
- Previously granted planning for 28 apartments (now lapsed)
- Freehold guide price £800,000; rateable value £24,750
- Suits developer, investor, owner-occupier or continued industrial use
- Located 3.5 miles west of Leeds city centre; strong local amenities
- Deprived area with high local crime rate — consider security costs
- Likely significant refurbishment and conversion costs required
Town End Works is a substantial three-storey stone former industrial building offering 17,940 sq ft across a 0.65-acre site with a large gated yard and parking. Its solid historic fabric, high ceilings and large windows suit continued industrial/commercial use or conversion to residential or mixed-use (subject to consents). Planning was previously granted for 28 apartments (20 x 2-bed, 8 x 1-bed) — those consents have lapsed but drawings and information are available on request.
This property will particularly interest developers and investors seeking scale and flexibility close to Bramley and 3.5 miles from Leeds city centre. The site sits near retail and leisure amenities (Aldi, PureGym, Greggs) with excellent mobile signal and fast broadband — practical for modern businesses or residential connectivity.
Buyers should note material challenges: the area is described as deprived with a high local crime rate, and the previous planning permission has lapsed, so any residential scheme will require fresh consents. The building is a large, older industrial structure and will likely require refurbishment and conversion works to meet modern residential or higher-spec commercial standards. Current rateable value is £24,750 and the property is offered freehold at a guide price of £800,000.
Light industrial facility for sale in Laurel House 146-148 Garnet Road, Leeds, LS11 5HP, LS11 — £2,000,000 • 1 bed • 1 bath • 16146 ft²
Light industrial facility for sale in Mercury Print, Highfield House, Royds Lane, Leeds, LS12 6DU, LS12 — £1,250,000 • 1 bed • 1 bath • 25345 ft²
Distribution warehouse for sale in New Hold Industrial Estate, Garforth, Leeds, West Yorkshire, LS25 — £750,000 • 1 bed • 1 bath • 9532 ft²
Commercial property for sale in Vacant Unit, Gildersome, Morley, West Yorkshire, LS27 — £299,950 • 1 bed • 1 bath • 1992 ft²
Office for sale in Parkside Lane, Leeds, West Yorkshire, LS11 5TD, LS11 — £816,000 • 1 bed • 1 bath • 10878 ft²
High street retail property for sale in Tower Lane, Armley, Leeds, LS12 — £325,000 • 1 bed • 1 bath • 10890 ft²










































