Large south-facing garden and flexible four-bedroom layout for growing families.
Overlooks woodland; backs onto open fields
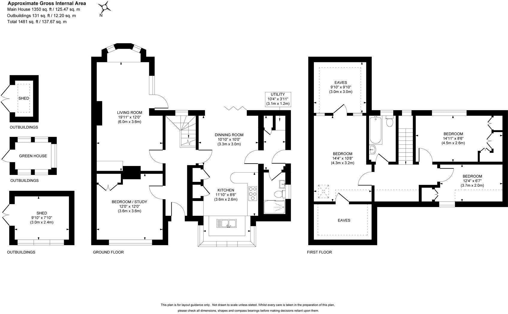
A spacious four-bedroom detached chalet set on a large plot, newly renovated and ready for family life. The house sits overlooking woodland with open fields to the rear, offering privacy and a rural outlook while remaining within easy reach of Woking and Guildford. The heart of the home is a cottage-style open plan kitchen with bi-fold doors onto a south-facing garden that runs in excess of 90ft.
Accommodation is flexible: three first-floor bedrooms (the principal with built-in wardrobes) plus a ground-floor room suitable as a fourth bedroom or family room. Living spaces include a bay-fronted lounge with a feature fireplace, utility room and a downstairs shower room. The property benefits from secondary glazing, mains gas central heating via boiler and radiators, and extensive off-street parking for multiple vehicles.
Buyers should note practical drawbacks: the external walls are cavity-built with no added insulation (assumed), glazing is secondary rather than full replacement double glazing, broadband speeds are slow and the recorded local crime level is high. Council tax is above average for the area. Overall, this freehold chalet marries period character with recent refurbishment and will suit a family seeking space, a large garden and countryside views, while accepting some retrofit and connectivity limitations.
4 bedroom detached house for sale in Arethusa Way, Bisley, Woking, Surrey, GU24 — £599,950 • 4 bed • 2 bath • 1261 ft²
4 bedroom detached house for sale in Snowdrop Way, Bisley, Woking, Surrey, GU24 — £900,000 • 4 bed • 2 bath • 2400 ft²
5 bedroom detached house for sale in Bisley, GU24 — £1,000,000 • 5 bed • 3 bath • 2020 ft²
4 bedroom detached house for sale in Bisley, Surrey, GU24 — £599,950 • 4 bed • 2 bath • 1465 ft²
4 bedroom detached house for sale in Jopling Road, Bisley, Woking, GU24 — £775,000 • 4 bed • 2 bath • 1569 ft²
4 bedroom detached house for sale in Snowdrop Way, Bisley, Woking, Surrey, GU24 — £600,000 • 4 bed • 1 bath • 1281 ft²


















































































