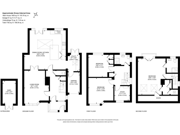
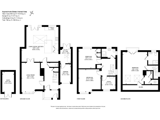
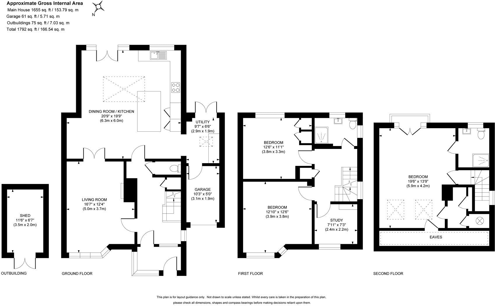
**Standout Features:**
- Spacious semi-detached property with **four bedrooms** and **three storeys**.
- Bright **open-plan kitchen/dining room** featuring a large skylight.
- **Master suite** includes an ensuite bathroom for added privacy.
- South-facing **garden**, perfect for relaxing or entertaining outdoors.
- Conveniently located near local amenities, schools, and transport links (Woking and Guildford).
**Summary:**
Welcome to this immaculate semi-detached home that perfectly blends traditional charm with modern living. Spread across three well-designed floors, this home boasts a bright and airy open-plan kitchen and dining area, ideal for family gatherings and entertaining friends. The stunning skylight allows natural light to flood the space, creating a warm and inviting atmosphere. A sizable master suite with a contemporary ensuite ensures a peaceful retreat, complemented by three additional bedrooms that can adapt to your family's needs.
Enjoy the sun in your generous south-facing garden, a true sanctuary for relaxation or summer barbecues. This property also includes ample off-street parking and a dedicated utility room, enhancing the practicality of the family home. Located in the desirable Bisley village, you're just moments away from local conveniences, reputable schools, and tranquil outdoor spaces.
While the overall aesthetics and condition are excellent, it's important to note the average-sized bedrooms and potential dream enhancements for the future. This delightful family-friendly home is not just a property but a lifestyle waiting to be embraced—don’t miss out on the opportunity to make it yours!
4 bedroom detached house for sale in South Road, Bisley, Woking, Surrey, GU24 — £675,000 • 4 bed • 3 bath • 1718 ft²
4 bedroom semi-detached house for sale in Cobbetts Walk, Bisley, Woking, Surrey, GU24 — £585,000 • 4 bed • 3 bath • 1883 ft²
3 bedroom semi-detached house for sale in Elm Grove, Bisley, Woking, Surrey, GU24 — £579,950 • 3 bed • 2 bath • 1499 ft²
3 bedroom semi-detached house for sale in Pilgrims Way, Bisley, Woking, Surrey, GU24 — £575,000 • 3 bed • 2 bath • 1401 ft²
3 bedroom semi-detached house for sale in Cottesloe Close, Bisley, Woking, Surrey, GU24 — £475,000 • 3 bed • 2 bath • 1028 ft²
3 bedroom semi-detached house for sale in Shaftesbury Road, Bisley, Woking, GU24 — £650,000 • 3 bed • 2 bath • 1259 ft²






















































































