Extensive acreage with strong conversion potential for hobby farmers or developers.
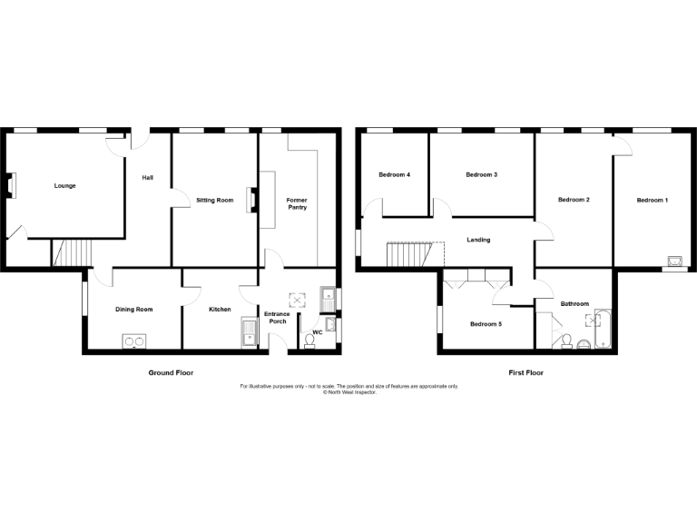
- Grade II listed five-bedroom farmhouse needs complete renovation
- Detached two-bedroom bungalow also requires modernisation
- Circa 10.46 acres productive meadow/pasture with farmhouse (Lot 1a)
- Extensive traditional and modern farm buildings with conversion potential
- Large additional Hampsfell and pasture (Lot 1b) rich in biodiversity
- No planning permissions granted; conversions subject to approval
- Private septic drainage and electricity storage heating; slow broadband
- Listed status, stewardship agreements and council obligations increase constraints
A rare, substantial rural holding in the Cartmel Valley offering around 246.45 acres in Lot 1a and Lot 1b (part of the wider 324.03-acre offering). The centerpiece is a late 17th/early 18th-century, Grade II listed five-bedroom farmhouse with a generous layout and strong period character, currently requiring complete renovation. Adjacent is a detached two-bedroom bungalow also in need of modernisation.
The estate includes a mix of traditional and modern farm buildings with clear potential for conversion to residential units or ancillary uses, subject to planning authority approval. Productive meadow and pasture, plus an expanse of Hampsfell rich in biodiversity, make the land well suited to hobby farming, grazing, equestrian enterprise or environmental stewardship schemes.
Important constraints are plainly stated: the farmhouse and some outbuildings are Grade II listed, which will restrict alterations and increase renovation complexity and cost. No specific planning permissions for conversions have been granted; any development would require separate approvals. Services include mains water and electricity to the dwellings, private septic drainage (subject to strict regulation), slow broadband, and electric storage heating.
This opportunity will suit purchasers seeking large-scale agricultural value, conversion/development potential (planning dependent), or a lifestyle change to smallholding/equestrian use. Buyers should budget for comprehensive renovation, listed-building consent processes, potential stewardship obligations, and the usual costs of servicing and improving rural infrastructure.
5 bedroom house for sale in Borwicks Aynsome - Lot 1, Aynsome Road, Cartmel, Grange-Over-Sands, Cumbria, LA11 — £1,500,000 • 5 bed • 1 bath • 1680 ft²
5 bedroom house for sale in Borwicks Aynsome - Lot 1a, Aynsome Road, Cartmel, Grange-Over-Sands, Cumbria, LA11 — £745,000 • 5 bed • 1 bath • 2160 ft²
Land for sale in Borwicks Aynsome - Lot 3, Aynsome Road, Cartmel, Grange-Over-Sands, Cumbria, LA11 — £200,000 • 1 bed • 1 bath • 1680 ft²
Land for sale in Borwicks Aynsome - Lot 4, Aynsome Road, Cartmel, Grange-Over-Sands, Cumbria, LA11 — £250,000 • 1 bed • 1 bath • 1680 ft²
2 bedroom bungalow for sale in Borwicks Aynsome - Lot 2, Aynsome Road, Cartmel, Grange-Over-Sands, Cumbria, LA11 — £350,000 • 2 bed • 1 bath • 1680 ft²
Land for sale in Land At Wreaks End, Broughton-In-Furness, Cumbria, LA20 — £450,000 • 1 bed • 1 bath






































































































































































