10.46 acres with conversion potential near Cartmel village.
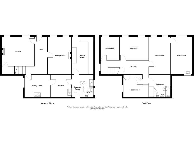
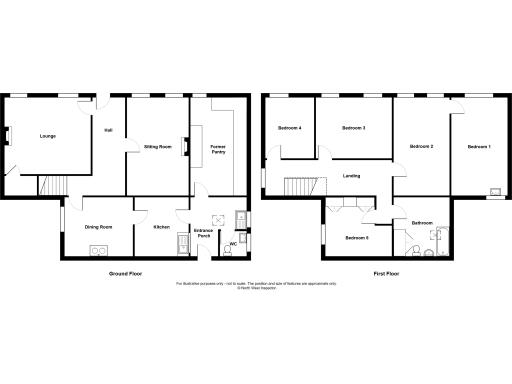
Grade II listed five-bedroom farmhouse, circa 2,160 sqft
A rare Grade II listed five-bedroom farmhouse set within about 10.46 acres of productive meadow and pasture in the Cartmel Valley. The main house provides more than 2,160 sqft but requires complete renovation; original period fabric offers strong potential for a distinctive family home once restored. The property currently has electric storage heating, older double glazing and a private septic tank, all of which will need review or upgrading.
The steading includes a substantial range of traditional and modern agricultural buildings that may suit residential conversion or ancillary uses, subject to Lake District National Park and planning authority approval. The land and outbuildings present opportunities for hobby farming, equestrian use or a smallholding, and a public footpath crosses part of the site. Part of the holding lies within the Lake District National Park, which will affect permitted works.
Practical considerations include listed-building constraints, the requirement to formalise a stockproof fence on completion, existing Countryside Stewardship commitments running until 2028, and slow broadband/mobile signal. The property is offered as Lot 1a and should suit developers, investors or lifestyle buyers who can manage restoration, planning processes and listed-building responsibilities.
5 bedroom house for sale in Borwicks Aynsome - Lot 1, Aynsome Road, Cartmel, Grange-Over-Sands, Cumbria, LA11 — £1,500,000 • 5 bed • 1 bath • 1680 ft²
5 bedroom property for sale in Borwicks Aynsome - Whole, Aynsome Road, Cartmel, Grange-Over-Sands, Cumbria, LA11 — £2,300,000 • 5 bed • 1 bath • 1680 ft²
2 bedroom bungalow for sale in Borwicks Aynsome - Lot 2, Aynsome Road, Cartmel, Grange-Over-Sands, Cumbria, LA11 — £350,000 • 2 bed • 1 bath • 1680 ft²
Land for sale in Borwicks Aynsome - Lot 3, Aynsome Road, Cartmel, Grange-Over-Sands, Cumbria, LA11 — £200,000 • 1 bed • 1 bath • 1680 ft²
Land for sale in Borwicks Aynsome - Lot 4, Aynsome Road, Cartmel, Grange-Over-Sands, Cumbria, LA11 — £250,000 • 1 bed • 1 bath • 1680 ft²
8 bedroom detached house for sale in Woodhouse, Milnthorpe, Cumbria, LA7 — £1,600,000 • 8 bed • 1 bath • 2207 ft²






































































































































