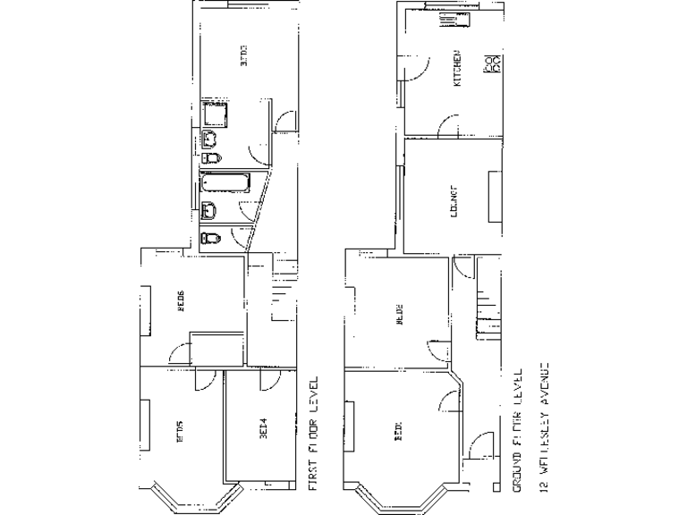
Established six-bed let near university with documented HMO planning and immediate income.
- Six-bedroom freehold HMO, currently let for 2025/26 academic year
- Gross income advertised £24,000 pa; 2022/23 income £27,360 historic
- Advertised gross yield circa 10% (listing states potential to increase)
- Documented Article 4 evidence for C4 HMO use available
- EPC 69 (C) with potential 84 (B); double glazing fitted post-2002
- Solid brick Victorian build; walls likely without insulation (assumed)
- Small plot with no garden; rooms and communal areas typical student size
- Two bathrooms, medium communal lounge, modern fitted kitchen
A mid-terrace Victorian red-brick house converted to a six-bedroom HMO, presented as a freehold investment close to the University of Hull. The property is currently let for the 2025/26 academic year with gross rent shown at £24,000 pa (historic 2022/23 income £27,360), producing an advertised gross yield around 10% with scope for improvement. Accommodation is arranged over two floors with two bathrooms, a modern fitted kitchen and a medium-sized communal lounge.
Documented Article 4 evidence confirms lawful historic use as a C4 HMO, supporting continued multi-occupancy let. The EPC sits at 69 (C) with potential to 84 (B), and double glazing was installed post-2002, both helping future compliance and energy efficiency. Solid brick Victorian construction and period features give the building character while providing straightforward maintenance basics.
Buyers should note the property footprint and plot are small with no visible garden; room sizes and communal areas are typical for student accommodation rather than family living. Walls are likely uninsulated (as built), so further thermal improvements are possible but may be needed to reach the EPC potential. Average local crime and deprivation statistics reflect an urban student neighbourhood; demand from students is strong given the central location.
This is a clear value proposition for an investor seeking an established student HMO with immediate income and documented planning history. The main considerations are ongoing HMO management, potential upgrade costs to raise EPC and insulation, and limited external amenity space.
7 bedroom terraced house for sale in De Grey Street, Hull, HU5 — £300,000 • 7 bed • 6 bath • 1744 ft²
6 bedroom terraced house for sale in St. Hilda Street, Hull, HU3 1UT, HU3 — £190,000 • 6 bed • 2 bath • 1619 ft²
6 bedroom terraced house for sale in Hutt Street, Hull, HU3 — £225,000 • 6 bed • 3 bath • 1233 ft²
3 bedroom house share for sale in Raglan Street, Hull, HU5 — £115,000 • 3 bed • 1 bath • 527 ft²
5 bedroom house share for sale in Beresford Avenue, Hull, HU6 — £210,000 • 5 bed • 2 bath • 1572 ft²
6 bedroom house share for sale in Wellesley Avenue, Hull, HU6 — £225,000 • 6 bed • 2 bath • 1658 ft²






















































