High-yield 3-bed house-share near University of Hull — immediate income, needs some upkeep.
Fully let 3-bedroom house-share generating £15,588 pa (13.56% yield)
Short 5–10 minute walk to University of Hull and local amenities
Bay-front Victorian mid-terrace with period features and double glazing
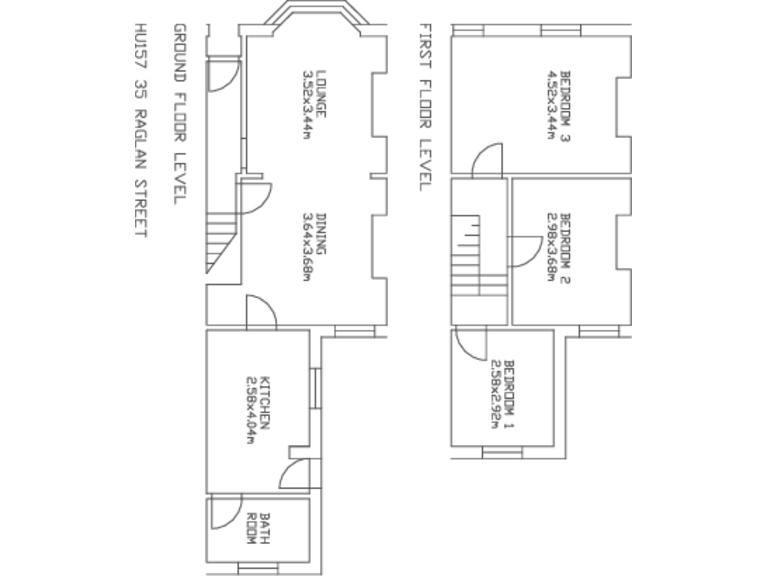
Small overall size and plot (approx. 527 sq ft) — compact room footprint
Solid brick walls assumed without insulation — retrofit likely needed
Some external timber/detail shows wear; minor refurbishment likely
Area classified as deprived with average crime; student tenancy turnover
Freehold tenure; mains gas heating, low flood risk, very cheap council tax
This freehold mid-terrace in HU5 is offered as a fully let 3-bedroom house-share producing a headline annual income of £15,588 (c.13.56% yield at £115,000). Located 5–10 minutes’ walk from the University of Hull, the property is well-placed for student demand and sits within a cosmopolitan student neighbourhood with nearby shops, cafes and transport links.
The house retains period character externally with a bay-fronted Victorian façade and double glazing installed after 2002. Internally the layout suits communal living: three upstairs bedrooms, a through lounge/dining room and a compact footprint (approx. 527 sq ft). The property is let furnished and presents immediate cashflow for a buy-to-let investor targeting students or private renters.
Buyers should note material considerations plainly: overall accommodation and plot are small, the building has solid brick walls assumed without insulation, and some external timber/detail appears worn and may need refurbishment. The area is relatively deprived with average crime statistics — common in high-demand student locations — and the house will require ongoing maintenance and occasional turnover management associated with student lets.
This property is aimed at investors seeking strong yield and immediate income rather than a hands-off long-term residential purchase. It offers clear refurbishment potential to enhance rents, but purchasers must budget for periodic maintenance, possible insulation works, and the operational demands of a student let.
5 bedroom house share for sale in Cranbrook Avenue, Hull, HU6 — £210,000 • 5 bed • 2 bath • 1368 ft²
4 bedroom house share for sale in Walgrave Street, Hull, HU5 — £140,000 • 4 bed • 1 bath • 623 ft²
3 bedroom end of terrace house for sale in Sidmouth Street, Hull, HU5 — £135,000 • 3 bed • 1 bath • 872 ft²
4 bedroom end of terrace house for sale in Melbourne Street, Hull, HU5 2ET, HU5 — £115,000 • 4 bed • 1 bath • 1077 ft²
6 bedroom house share for sale in Ash Grove, Beverley Road, Hull, HU5 — £205,000 • 6 bed • 3 bath • 1346 ft²
3 bedroom semi-detached house for sale in Suffolk Street, Hull, HU5 1PJ, HU5 — £130,000 • 3 bed • 1 bath • 1065 ft²














































