Fully licensed, fully let HMO delivering immediate rental income in Hull.
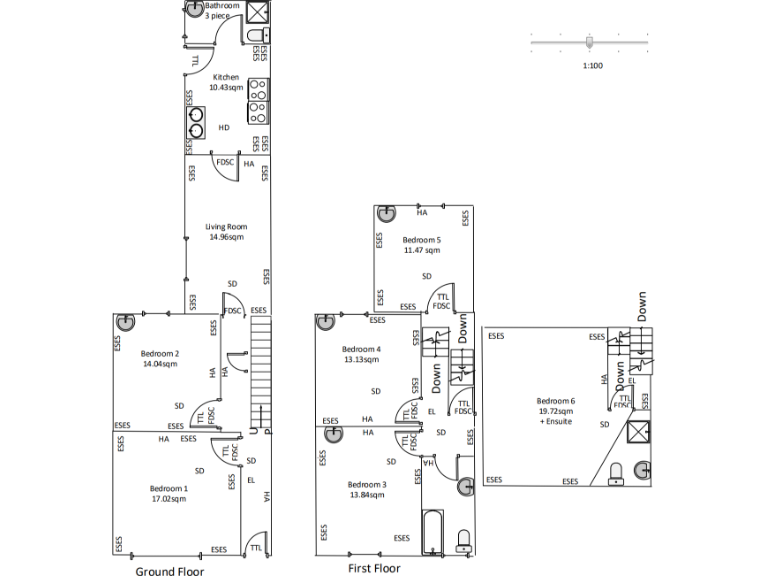
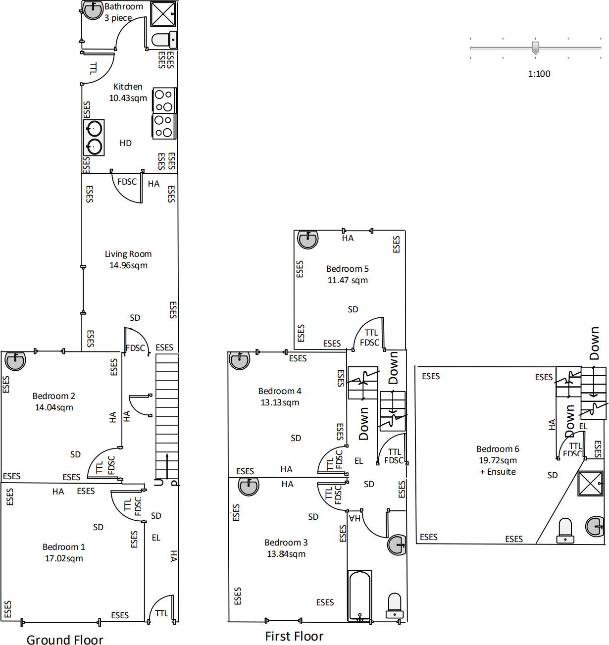
Six double bedrooms — fully let, income £35,100 per annum
A ready-made HMO investment in Hull, offered fully let and income-producing from day one. This six-bedroom, freehold terraced house is licensed and compliant with fire safety measures, mains-linked alarms, and 30-minute fire doors, currently generating £35,100pa in rent. The property is sold fully furnished with records of payments and working-professional tenants in situ.
Operational figures are clear: estimated outgoing utilities and bills total around £5,196pa plus specific supplier costs (gas/electric approx. £3,600pa). The house benefits from a large communal kitchen, a communal lounge, two shared bathrooms and one ensuite, gas central heating and UPVC double glazing — practical features that support ongoing lettings and minimise immediate capital spend.
Location provides strong rental demand: close to local amenities, good transport links and several nearby schools, including outstanding and good-rated options. However, the property sits in a very deprived area with a high local crime rate, and it is within an Article 4 area (HMO use has been established since 2012). Buyers should note this is a small plot and small overall building footprint, and the sale is “as is” with tenants remaining in place.
This is a straightforward buy-to-let for investors seeking immediate income and hands-off occupancy. It suits those who prioritise rental yield over long-term capital growth and who are comfortable operating in higher-deprivation, higher-risk neighbourhoods. Full tenancy and income verification can be provided to serious buyers.
6 bedroom house share for sale in Ash Grove, Beverley Road, Hull, HU5 — £205,000 • 6 bed • 3 bath • 1346 ft²
4 bedroom terraced house for sale in Washington Street, Hull, HU5 — £150,000 • 4 bed • 4 bath • 1141 ft²
5 bedroom terraced house for sale in Boulevard, Hull, HU3 2UD, HU3 — £170,000 • 5 bed • 4 bath • 1600 ft²
5 bedroom terraced house for sale in Chomley Street, HU3, Hull, HU3 — £155,000 • 5 bed • 3 bath • 1399 ft²
7 bedroom terraced house for sale in Princes Road, Hull, HU5 — £240,000 • 7 bed • 2 bath • 1421 ft²
5 bedroom end of terrace house for sale in Pendrill Street, Hull, HU3 — £160,000 • 5 bed • 3 bath • 1281 ft²






































































