Spacious kitchen extension and large sun garden ideal for families.
1930s semi-detached character house with bay-fronted living room
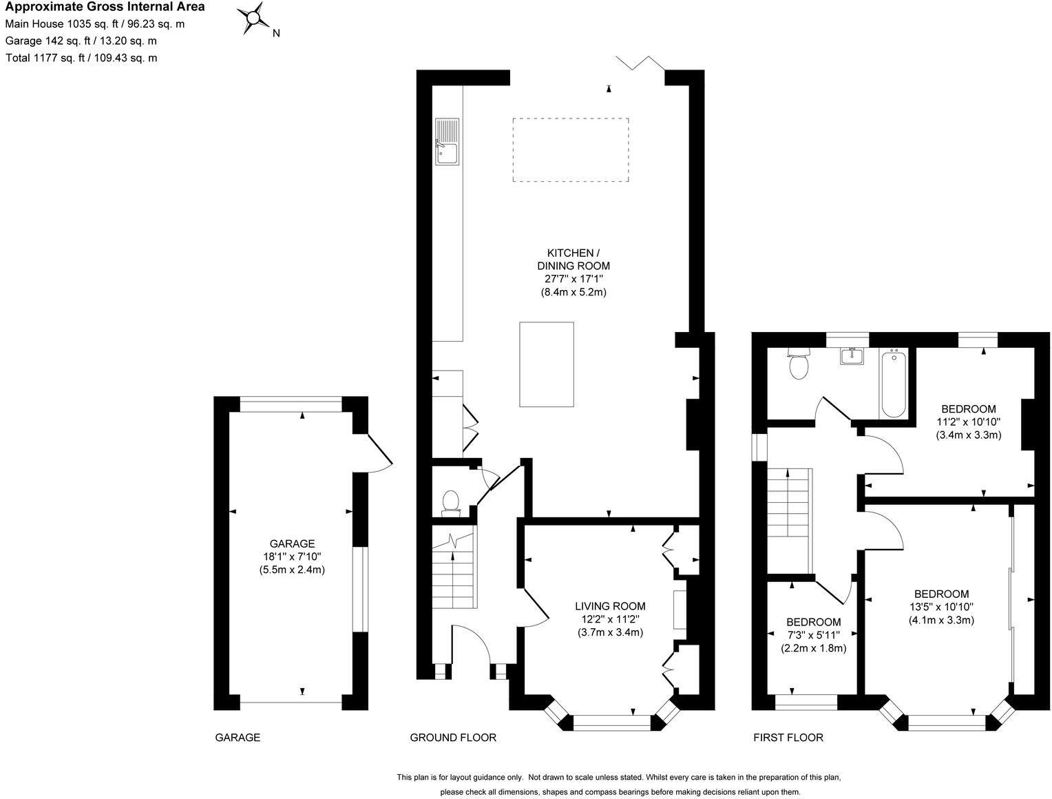
This 1930s semi-detached home sits in south Haywards Heath with strong family appeal and room to grow. A recent kitchen extension creates an expansive kitchen/living space with bifold doors onto a 73' x 25' south/west-facing garden, ideal for day-to-evening entertaining. The front bay living room, two double bedrooms, single bedroom and useful downstairs WC make practical family living on the ground and first floors.
There is clear scope to add value: a loft conversion (subject to planning) would significantly increase accommodation and resale potential. Practical advantages include off-street parking, a detached garage accessed via a narrow side driveway, mains gas central heating and double glazing. EPC is C and the vendors are in a complete onward chain, which can help a faster sale.
Buyers should note some material considerations: the property will benefit from internal modernisation in places and there is evidence of minor external maintenance such as roof moss. The garage access is narrow and may limit larger vehicle movement. Local crime rates are above average for the area and should be considered against the otherwise very affluent neighbourhood profile.
Overall, this is a character-filled family home in a desirable, well-served part of Haywards Heath. It suits buyers wanting ready-to-live-in accommodation with immediate entertaining space and a clear, realistic project to create significant extra value via loft works or further improvements.
3 bedroom house for sale in Western Road, Haywards Heath, RH16 — £375,000 • 3 bed • 1 bath • 1174 ft²
3 bedroom semi-detached house for sale in Western Road, Haywards Heath, RH16 — £439,950 • 3 bed • 2 bath • 947 ft²
3 bedroom semi-detached house for sale in Franklynn Road, Haywards Heath, RH16 — £650,000 • 3 bed • 2 bath • 1574 ft²
3 bedroom semi-detached house for sale in Southdown Close, Haywards Heath, RH16 — £375,000 • 3 bed • 1 bath • 946 ft²
4 bedroom semi-detached house for sale in Western Road, Haywards Heath, RH16 — £500,000 • 4 bed • 1 bath • 1366 ft²
2 bedroom end of terrace house for sale in Petlands Gardens, Haywards Heath, RH16 — £290,000 • 2 bed • 1 bath • 669 ft²






















































































































