Charming two-bed cottage with south garden and loft conversion potential, close to town and hospital..
Two double first-floor bedrooms
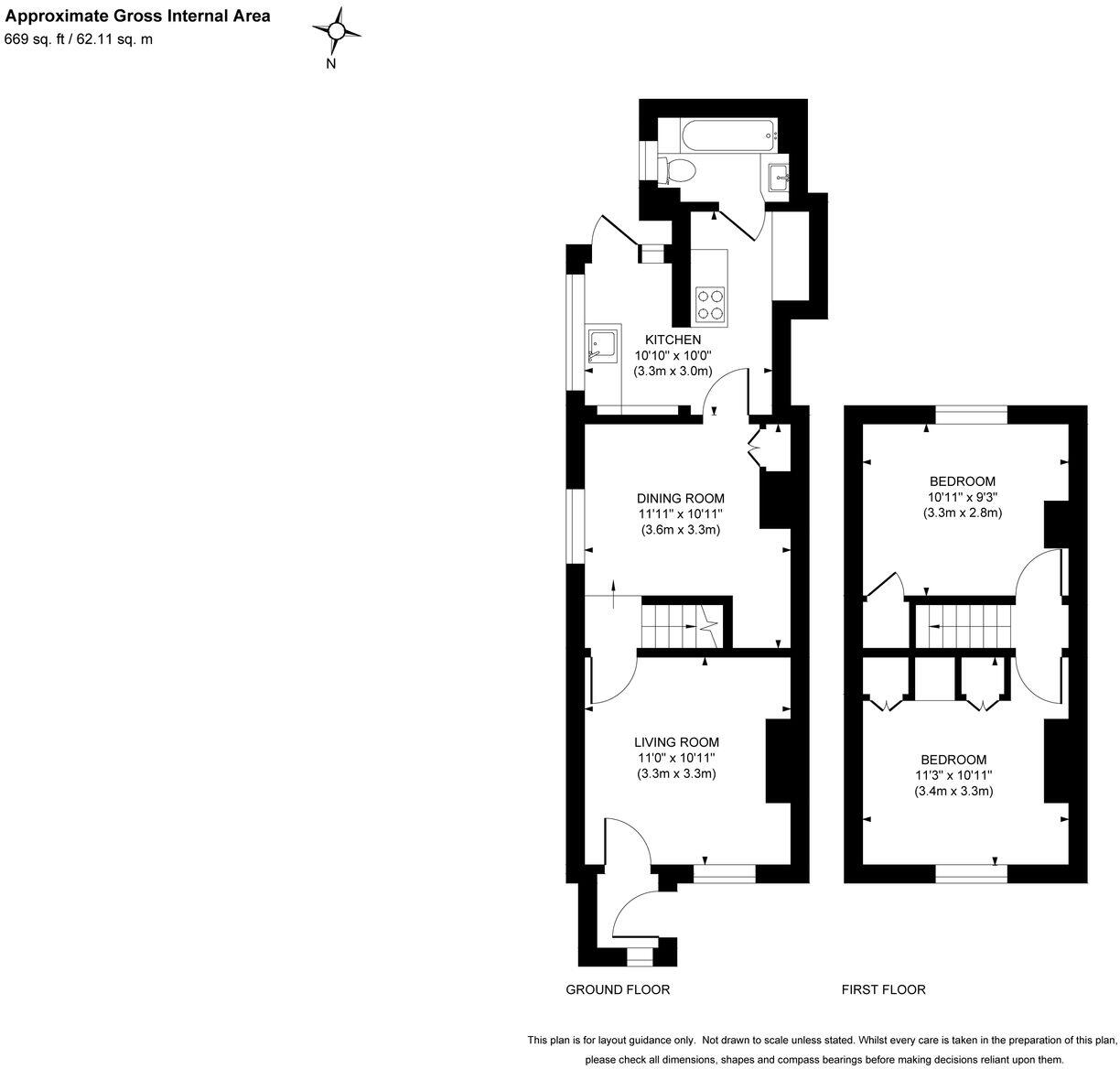
This end-of-terrace Victorian cottage sits in a quiet no-through road between Haywards Heath town centre and the hospital, a ten-minute walk to local shops and St Wilfrid’s primary. The house is well presented throughout with two double first-floor bedrooms, a separate lounge and dining room, and a practical kitchen, utility area and downstairs bathroom. A sunny south-facing rear garden of approximately 40' faces south and includes a useful garden shed.
The property offers clear scope for added value: a loft conversion could be possible subject to planning (STPP), and the layout is well suited to a small family or couple seeking a character home in a convenient location. Gas central heating, double glazing and an overall average internal size (about 669 sq ft) mean it’s comfortable from move-in.
Notable practical points: there is no allocated parking — on-street parking in nearby streets only — and the plot is small. The EPC is rated D, cavity walls appear uninsulated (assumed), and the area records above-average crime; these factors may require attention and potential investment. Sold with no onward chain, offered with a guide price of £290,000–£300,000.
2 bedroom terraced house for sale in Triangle Road, Haywards Heath, RH16 — £375,000 • 2 bed • 1 bath • 769 ft²
2 bedroom semi-detached house for sale in Hazelgrove Road, Haywards Heath, RH16 — £350,000 • 2 bed • 2 bath • 896 ft²
4 bedroom semi-detached house for sale in Western Road, Haywards Heath, RH16 — £725,000 • 4 bed • 3 bath • 1678 ft²
2 bedroom terraced house for sale in Colwell Road, Haywards Heath, RH16 — £325,000 • 2 bed • 1 bath • 490 ft²
2 bedroom terraced house for sale in New England Road, Haywards Heath, RH16 — £325,000 • 2 bed • 1 bath • 612 ft²
3 bedroom semi-detached house for sale in Western Road, Haywards Heath, RH16 — £500,000 • 3 bed • 1 bath • 987 ft²






















































































